Carrier WeatherMaker 50FC handleiding
Handleiding
Je bekijkt pagina 34 van 68

34
To connect the Thermidistat device (33CS2PPRH-01):
1. Route the Thermidistat multi-conductor thermostat cable
(field-supplied) through hole provided in the unit corner post.
2. Feed wires through the raceway built into the corner post (see
Fig. 48) to the 24-v barrier located on the left side of the con-
trol box. The raceway provides the UL-required clearance
between high-voltage and low-voltage wiring.
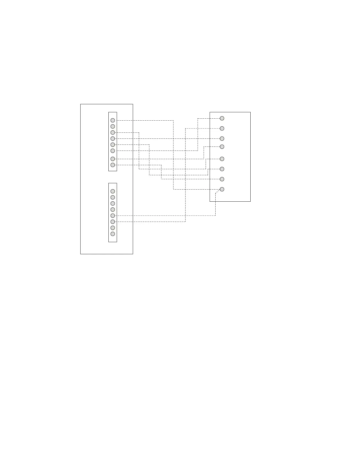
3. The Thermidistat has dry contacts at terminals D1 and D2
for dehumidification operation (see Fig. 56). Connect D1 to
the R terminal on the UCB. Connect D2 to the HUM termi-
nal on the UCB. Refer to the installation instructions
included with the Carrier Edge
®
Pro Thermidistat device for
more information.
Typical Unit Wiring Diagrams
See Fig. 57-61 for examples of typical unit control and power wir-
ing diagrams. These wiring diagrams are mounted on the inside of
the unit control box. Refer to the wiring diagrams in the unit con-
trol box when making field power wiring connections.
Fig. 56 — 50FC-*20-30 Unit with Humidi-MiZer Adaptive Dehumidification System with
Edge
®
Pro Thermidistat Device
Rc
Rh
W1
G
Y2
C
O/W2/B
Y1
OAT
RRS
S RTN
HUM
D1
D2
V+
Vg
C
HUM
G
W2
W1
Y2
Y1
R
Programmable
Thermostat
Unit Control Board
Thermostat Connections
Bekijk gratis de handleiding van Carrier WeatherMaker 50FC, stel vragen en lees de antwoorden op veelvoorkomende problemen, of gebruik onze assistent om sneller informatie in de handleiding te vinden of uitleg te krijgen over specifieke functies.
Productinformatie
Merk | Carrier |
Model | WeatherMaker 50FC |
Categorie | Niet gecategoriseerd |
Taal | Nederlands |
Grootte | 8511 MB |