Carrier 39S handleiding
Handleiding
Je bekijkt pagina 43 van 64

43
Follow these steps to remove and replace coil.
1. Isolate and drain coil from heating/cooling fluid and/or
reclaim refrigerant. Disconnect unit from piping.
2. Remove supply piping to allow access into the coil section
from the side.
3. Remove coil section access panel.
NOTE: If the blower section is on top of coil section, lift the
blower section up to allow removal of cross rail. Blower sec-
tion must be raised up approximately 2 in. during the entire
procedure.
4. Remove screws at filter side of coil and far side from coil.
Remove cross rail.
5. Remove screws that attach the coil to the vertical and hori-
zontal coil mounting pieces (if present).
6. Lift coil up approximately 1 in. and remove from unit. Drain
pan remains in place.
7. If one coil will be installed, skip to Step 8. If two coils are to
be installed, set new coils upright on a flat surface resting on
their bottom edges. Attach coils together along horizontal top
flange using at least (2) screws and at least 1 screw on each
side flange.
8. Set new coil into drain pan, move coil into position and attach
to vertical mounting surfaces using (2) self-drilling sheet
metal screws across the top flange, and at least (1) screw on
each side flange.
9. Install cross rail.
NOTE: If blower section is on top of coil section, set blower
section back down on coil section and secure.
10. Install coil section access panel.
11. Restore unit to service.
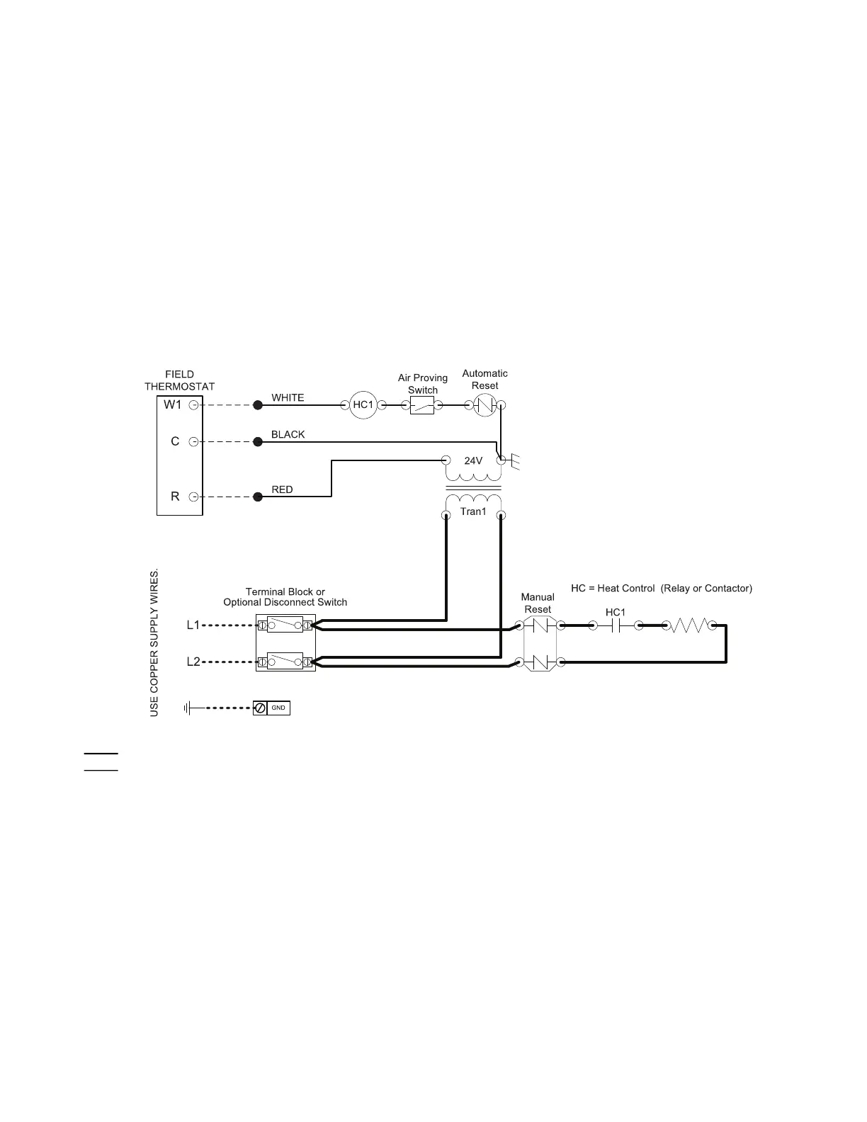
Electric Heaters
Electric heaters may be factory-installed or factory-supplied for
field installation. Fig. 59-67 are electric heater wiring diagrams.
Fig. 59 — Electric Heat Wiring Schematic, Dual Point Power (1 Element), 240V, Single Phase, 1 to 6 kW
a39-4513
LEGEND
High-Voltage Factory Wiring
Low-Voltage Factory Wiring
- - - - - Field-Wiring
Bekijk gratis de handleiding van Carrier 39S, stel vragen en lees de antwoorden op veelvoorkomende problemen, of gebruik onze assistent om sneller informatie in de handleiding te vinden of uitleg te krijgen over specifieke functies.
Productinformatie
| Merk | Carrier |
| Model | 39S |
| Categorie | Niet gecategoriseerd |
| Taal | Nederlands |
| Grootte | 10967 MB |







