Carrier 39S handleiding
Handleiding
Je bekijkt pagina 22 van 64

22
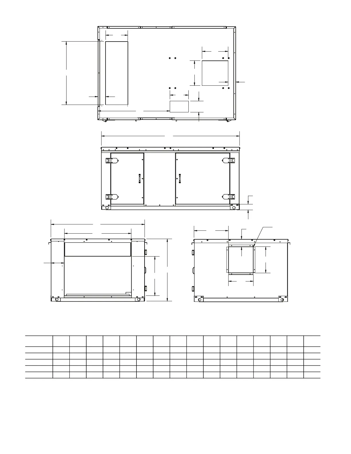
Fig. 17 — 39SR Unit — Double Wall
L
M
C
B
P
A
3.0
4.0
G
4.0
F
D
K
H
J
E
Horizontal
Discharge (Opt)
G
F
N
O
Dimensions (in.)
a,b,c
NOTE(S):
a. Dimensions shown in inches.
b. L1 dimension is for horizontal or bottom return economizer package option.
c. L2 dimension is for fixed air or motorized outside air damper package option.
39SR
UNIT SIZE
A B C D E F G H J K L1 L2 M N O P
02, 03 70.0 42.0 30.5 12.0 26.0 11.9 8.9 10.0 6.0 33.7 17.2 14.2 28.1 8.5 16.6 7.0
04, 05 70.4 50.5 33.6 12.0 34.0 14.1 13.4 10.0 6.0 38.9 21.2 18.2 36.1 4.2 18.6 7.2
07, 09 77.4 55.5 50.9 14.0 44.0 16.4 13.1 15.0 8.0 38.0 35.1 24.3 45.9 19.9 21.2 4.8
13 77.4 55.5 60.6 14.0 44.0 16.4 18.9 15.0 8.0 38.0 48.9 32.8 45.9 29.7 18.3 4.8
17 96.5 76.5 64.1 14.0 62.0 19.0 22.0 15.0 8.0 51.9 48.2 46.9 65.8 24.0 27.3 5.4
Bekijk gratis de handleiding van Carrier 39S, stel vragen en lees de antwoorden op veelvoorkomende problemen, of gebruik onze assistent om sneller informatie in de handleiding te vinden of uitleg te krijgen over specifieke functies.
Productinformatie
| Merk | Carrier |
| Model | 39S |
| Categorie | Niet gecategoriseerd |
| Taal | Nederlands |
| Grootte | 10967 MB |







