Carrier 39S handleiding
Handleiding
Je bekijkt pagina 21 van 64

21
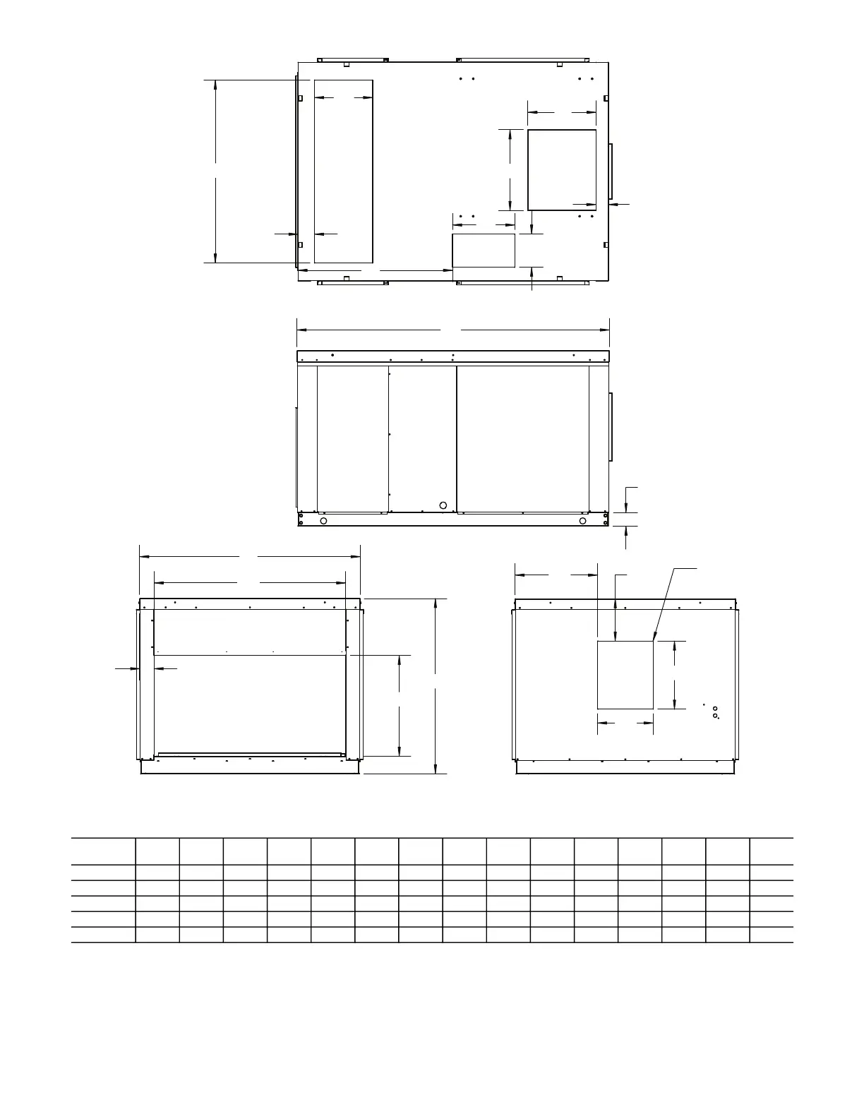
Fig. 16 — 39SR Unit — Single Wall
M
C
B
L
P
Horizontal
Discharge (Opt)
G
F
NO
A
4.0
H
D
F
G
J
K
E
4.0
4.0
Dimensions (in.)
a
NOTE(S):
a. Dimensions are shown in inches.
39SR
UNIT SIZE
A B C D E F G H J K L M N O P
02, 03 67.4 39.6 22.5 12.0 25.8 11.9 8.9 11.0 8.0 35.4 14.2 28.4 2.5 15.3 5.6
04, 05 72.1 48.1 28.5 12.0 34.0 14.1 13.1 11.0 8.0 35.6 18.2 35.8 5.1 17.5 6.2
07, 09 75.0 53.0 42.2 14.0 44.0 16.4 12.1 15.0 8.0 37.2 24.3 46.0 10.1 20.5 3.5
13 75.1 53.0 55.7 14.0 44.0 16.4 19.4 15.0 8.0 37.3 32.7 46.0 23.5 16.8 3.5
17 96.0 76.3 53.3 15.0 62.0 19.6 22.0 15.0 8.0 50.3 47.0 68.2 17.4 27.1 4.1
Bekijk gratis de handleiding van Carrier 39S, stel vragen en lees de antwoorden op veelvoorkomende problemen, of gebruik onze assistent om sneller informatie in de handleiding te vinden of uitleg te krijgen over specifieke functies.
Productinformatie
| Merk | Carrier |
| Model | 39S |
| Categorie | Niet gecategoriseerd |
| Taal | Nederlands |
| Grootte | 10967 MB |







