Carrier 39S handleiding
Handleiding
Je bekijkt pagina 18 van 64

18
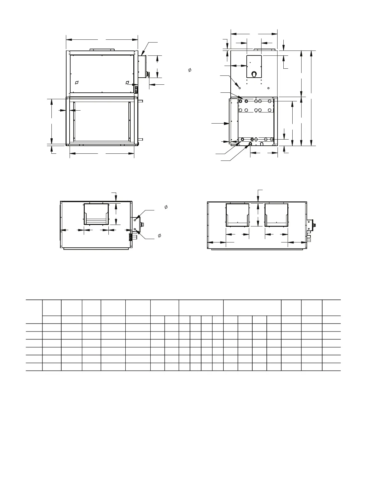
Fig. 13 — 39SM Unit Sizes 04-17 (Vertical Configuration)
Air
Filters
Flow
Motor
Start/stop (MSS)
(Opt)
H
I
A
K
J
12.51
6.35
ViewRear
View
Sizes 04-09
Right
Top View
Control Conn.
O
.875 24v
L
M
O
N
Power Conn.
.875 (Opp Side)
O
M
L
O
L
N
Access Panel
C
S
Area
E
Supply Area
C
Return
S
F
I
L
T
E
R
A
CW/HW
CW/HW
3/4 in. FPT Drain
G
B
P
.98
C
8.18
F
R
Q
.95
D
E
JBOX (w/o MSS)
.875 Power
Conn. 4x4
Top View
Sizes 13, 17
(Height: 1.2 in.)
LEGEND
Dimensions (in.)
a,b,c,d,e
NOTE(S):
a. Dimensions shown in inches.
b. Hand connections are defined by looking at the filters in the direction of airflow.
c. Coil section and blower ship separately and are installed by others.
d. Blower section may be rotated 180 degrees to relocate supply duct.
e. See Fig. 24 for 39SM modular configurations.
39SM
UNIT
SIZE
WIDTH HEIGHT DEPTH
COIL
SECTION
BLOWER
SECTION
MOTOR
START/
STOP (OPT.)
RETURN DUCT
SUPPLY DUCT
(BLOWER OPENING)
SUPPLY
CONN.
RETURN
CONN.
DRAIN
A B C D E F G H I J K L M N O P Q R
04 40.0 53.5 26.0 27.5 26.0 2.8 9.0 36.0 25.5 1.0 2.0 13.6 11.9 1.1 13.1 3.6 20.0 15.2
05 40.0 53.5 26.0 27.5 26.0 2.8 9.0 36.0 25.5 1.0 2.0 13.6 11.9 1.1 13.1 3.6 25.0 15.2
07 50.0 68.5 34.0 34.5 34.0 6.8 13.0 48.0 32.0 1.0 1.0 13.4 16.2 1.2 18.3 3.6 25.0 22.5
09 50.0 68.5 34.0 34.5 34.0 6.8 13.0 48.0 32.0 1.0 1.0 13.4 16.2 1.2 18.3 3.6 30.0 22.5
13 72.0 81.5 34.0 47.5 34.0 6.7 13.0 66.0 45.0 2.0 6.0 16.4 16.4 1.1 14.0 3.6 30.0 23.0
17 72.0 81.5 34.0 47.5 34.0 6.7 13.0 66.0 45.0 2.0 6.0 16.4 16.4 1.1 14.0 3.6 42.6 23.0
CW — Chilled Water
HW — Hot Water
JBOX — Junction Box
w/o MSS — Without Motor Start/Stop Station
Bekijk gratis de handleiding van Carrier 39S, stel vragen en lees de antwoorden op veelvoorkomende problemen, of gebruik onze assistent om sneller informatie in de handleiding te vinden of uitleg te krijgen over specifieke functies.
Productinformatie
| Merk | Carrier |
| Model | 39S |
| Categorie | Niet gecategoriseerd |
| Taal | Nederlands |
| Grootte | 10967 MB |







