Carrier 39S handleiding
Handleiding
Je bekijkt pagina 16 van 64

16
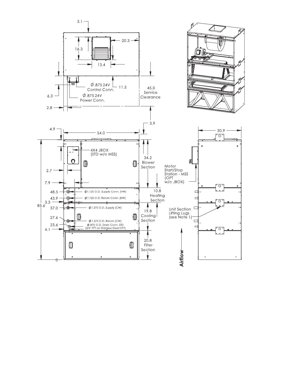
Fig. 11 — 39SV Unit Size 09 — Re-Heat
LEGEND
NOTES:
1. Unit section lifting lugs (shipped loose) for lifting sections only. Do not use lifting lugs for lifting unit assembly.
Top lifting lugs may be removed after unit is secured at job site.
2. All sections shall be shipped loose and field installed by customer.
3. Dimensions shown in inches.
CW — Chilled Water
HW — Hot Water
JBOX — Junction Box
MSS — Motor Start/Stop Station
Top View
Front View
Right View
Bekijk gratis de handleiding van Carrier 39S, stel vragen en lees de antwoorden op veelvoorkomende problemen, of gebruik onze assistent om sneller informatie in de handleiding te vinden of uitleg te krijgen over specifieke functies.
Productinformatie
| Merk | Carrier |
| Model | 39S |
| Categorie | Niet gecategoriseerd |
| Taal | Nederlands |
| Grootte | 10967 MB |







