Carrier 39S handleiding
Handleiding
Je bekijkt pagina 15 van 64

15
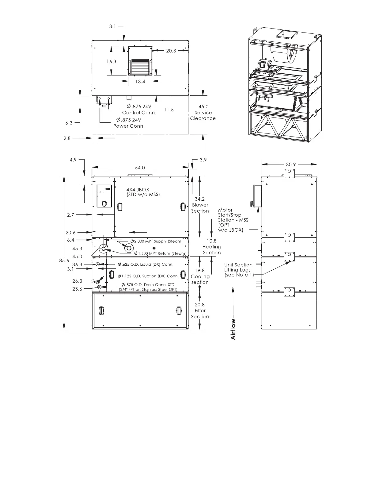
Fig. 10 — 39SV Unit Size 07 — Re-Heat
Top View
Front View Right View
LEGEND
NOTES:
1. Unit section lifting lugs (shipped loose) for lifting sections only. Do not use lifting lugs for lifting unit assembly.
Top lifting lugs may be removed after unit is secured at job site.
2. All sections shall be shipped loose and field installed by customer.
3. Dimensions shown in inches.
DX — Direct Expansion
JBOX — Junction Box
MSS — Motor Start/Stop Station
Bekijk gratis de handleiding van Carrier 39S, stel vragen en lees de antwoorden op veelvoorkomende problemen, of gebruik onze assistent om sneller informatie in de handleiding te vinden of uitleg te krijgen over specifieke functies.
Productinformatie
| Merk | Carrier |
| Model | 39S |
| Categorie | Niet gecategoriseerd |
| Taal | Nederlands |
| Grootte | 10967 MB |







