Vimar 20445.B handleiding
Handleiding
Je bekijkt pagina 9 van 88

ITALIANO - 5
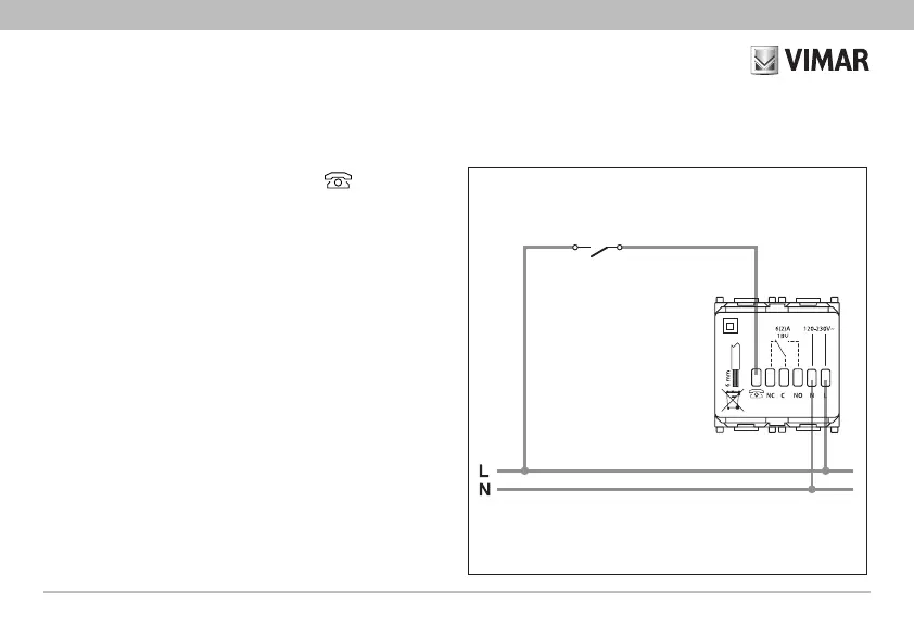
E' possibile comandare il cronotermostato a distanza mediante un
combinatore telefonico.
Chiudendo il contatto che collega il morsetto
alla linea L, il
funzionamento del cronotermostato viene forzato in modalità
manuale e i quattro tasti A, B, C e D vengono bloccati (se si preme
un tasto qualsiasi il display visualizza la scritta Man lampeggiante
per circa 3-s).
Aprendo il contatto il cronotermostato si porta:
- in modalità Antigelo se sta funzionando in riscaldamento;
- in modalità OFF (spegnimento) se sta funzionando in condiziona-
mento.
In questa fase i tasti del cronotermostato non sono bloccati ed è
possibile effettuare qualsiasi operazione sul dispositivo.
5.2 - Comando tramite combinatore telefonico.
Attuatore
telefonico.
Bekijk gratis de handleiding van Vimar 20445.B, stel vragen en lees de antwoorden op veelvoorkomende problemen, of gebruik onze assistent om sneller informatie in de handleiding te vinden of uitleg te krijgen over specifieke functies.
Productinformatie
| Merk | Vimar |
| Model | 20445.B |
| Categorie | Thermostaat |
| Taal | Nederlands |
| Grootte | 5346 MB |







