Stiebel Eltron FCR 28/120 handleiding
Handleiding
Je bekijkt pagina 95 van 124

MAGYAR
www.stiebel-eltron.com FCR 28 | 95
TELEPÍTÉS
Műszaki adatok
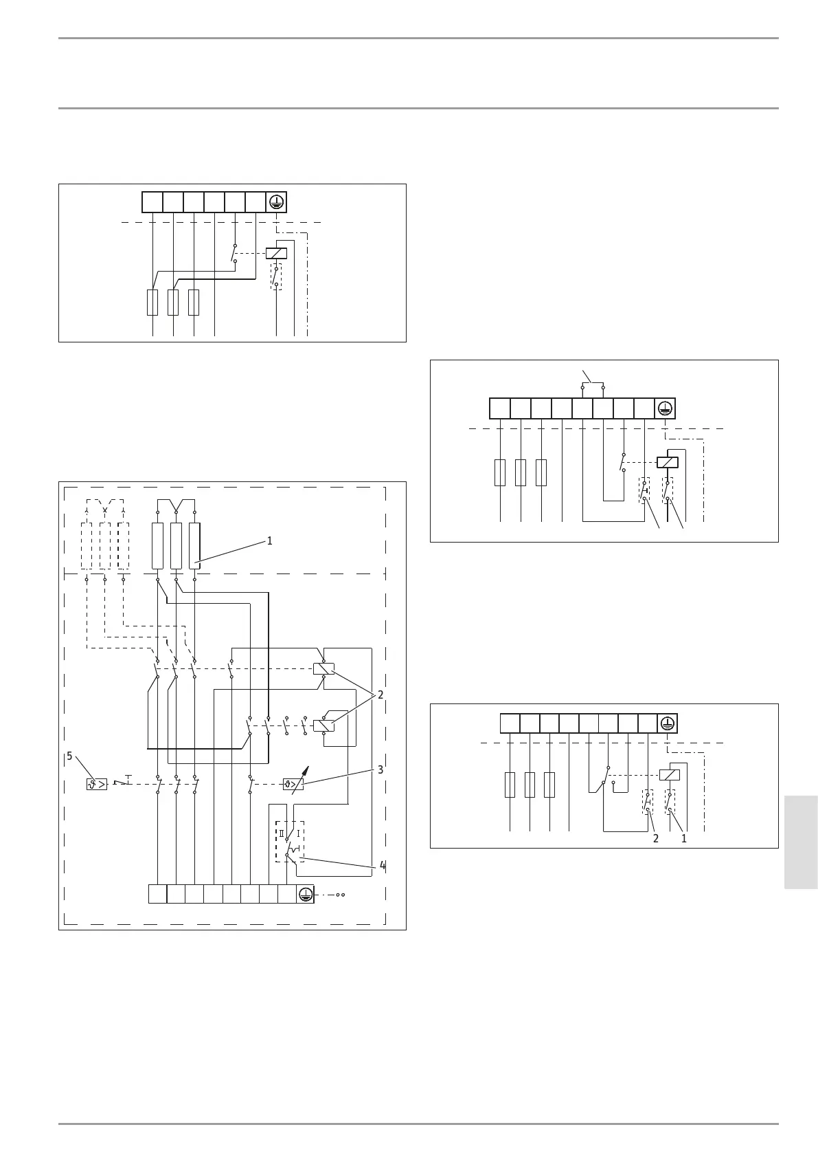
Bekötési példa egykörös üzem esetén áramszolgáltató általi
vezérléssel
L1 L2 L3 N 4 5
D0000117769
D0000117768
1 Szakember által telepített áramszolgáltatói vezérlő
(EVU-érintkező)
14.2.2 Kétkörös / egykörös üzem, 3/N/PE ~ 400V
FCR 28/120, rendelési szám: 071332
FCR 28/120 CrNi, rendelési szám: 234503
FCR 28/180, rendelési szám: 071333
2L3L2
L1 N
1
4
3
D0000117551
4
3
5
1
2
1 Fűtőtest
12kW beépített teljesítmény: 3 x 4 kW
18 kW beépített teljesítmény: 6 x 3kW
2 Kontaktor
3 Hőmérséklet-szabályozó
4 Teljesítménykapcsoló, I / II
5 Biztonsági hőmérsékletkorlát
Bekötési példa kétkörös üzem esetén
FCR 28/120, rendelési szám: 071332
FCR 28/120 CrNi, rendelési szám: 234503
6/12kW Teljesítménykapcsoló, I
12/12kW Teljesítménykapcsoló II
FCR 28/180, rendelési szám: 071333
9/18kW Teljesítménykapcsoló, I
18/18kW Teljesítménykapcsoló II
1.változat:
L1 L2 L3 N 1 2 3 4
D0000117769
D0000117769
12
3
1 Szakember által telepített áramszolgáltatói vezérlő
(EVU-érintkező)
2 Nyomógomb gyors felfűtés távvezérlésére, szakember által
beszerelve
3 Dugaszoló híd
A csúcsidőn kívüli tarifa időszaka alatt (EVU-engedélyezés) a
gyorsfelfűtés bekapcsolható (normál tarifa).
2.változat:
L1 L2 L3 N 1 2 3 4
D0000117755
D0000117555
12
1 Szakember által telepített áramszolgáltatói vezérlő
(EVU-érintkező)
2 Nyomógomb gyors felfűtés távvezérlésére, szakember által
beszerelve
A csúcsidőn kívüli tarifa időszaka alatt (EVU-engedélyezés) csak
a teljesítménykapcsoló II.állásában van lehetőség a gyorsfelfűtés
(normál tarifa) bekapcsolására.
Bekijk gratis de handleiding van Stiebel Eltron FCR 28/120, stel vragen en lees de antwoorden op veelvoorkomende problemen, of gebruik onze assistent om sneller informatie in de handleiding te vinden of uitleg te krijgen over specifieke functies.
Productinformatie
| Merk | Stiebel Eltron |
| Model | FCR 28/120 |
| Categorie | Niet gecategoriseerd |
| Taal | Nederlands |
| Grootte | 20189 MB |







