Stiebel Eltron FCR 28/120 handleiding
Handleiding
Je bekijkt pagina 83 van 124

ČESKY
www.stiebel-eltron.com FCR 28 | 83
INSTALACE
Technické údaje
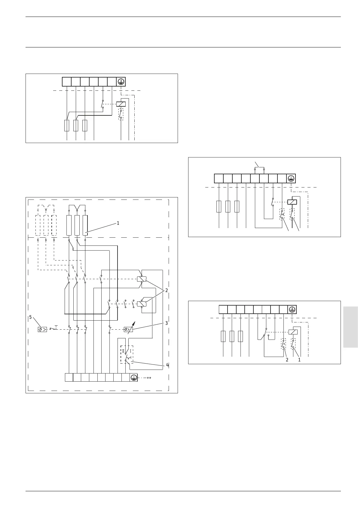
Příklad jednookruhového připojení s kontaktem HDO
L1 L2 L3 N 4 5
D0000117769
D0000117768
1 Kontakt HDO, namontovaný odborníkem
14.2.2 Dvouokruhový/jednookruhový provoz 3/N/PE ~ 400 V
FCR 28/120, objednací číslo 071332
FCR 28/120 CrNi, objednací číslo 234503
FCR 28/180, objednací číslo 071333
2L3L2
L1 N
1
4
3
D0000117551
4
3
5
1
2
1 Topné těleso
příkon 12 kW: 3 x 4kW
příkon 18 kW: 6 x 3 kW
2 Stykač
3 Regulátory teploty
4 Výkonový spínač I / II
5 Bezpečnostní omezovač teploty
Příklad dvouokruhového připojení
FCR 28/120, objednací číslo 071332
FCR 28/120 CrNi, objednací číslo 234503
6/12kW Výkonový spínač I
12/12kW Výkonový spínač II
FCR 28/180, objednací číslo 071333
9/18kW Výkonový spínač I
18/18kW Výkonový spínač II
Varianta 1:
L1 L2 L3 N 1 2 3 4
D0000117769
D0000117769
12
3
1 Kontakt HDO, namontovaný odborníkem
2 Tlačítko pro dálkové ovládání rychlého ohřevu, namontované
odborníkem
3 Svorkový můstek
Během období s nízkou tarifní sazbou (uvolnění ze strany elektro-
rozvodných závodů) je možné zapnout rychlý ohřev (vysoký tarif).
Varianta 2:
L1 L2 L3 N 1 2 3 4
D0000117755
D0000117555
12
1 Kontakt HDO, namontovaný odborníkem
2 Tlačítko pro dálkové ovládání rychlého ohřevu, namontované
odborníkem
Během období s nízkou tarifní sazbou (uvolnění ze strany elektro-
rozvodných závodů) je možné zapnout rychlý ohřev (vysoký tarif)
jen v polozeII přepínače výkonu.
Bekijk gratis de handleiding van Stiebel Eltron FCR 28/120, stel vragen en lees de antwoorden op veelvoorkomende problemen, of gebruik onze assistent om sneller informatie in de handleiding te vinden of uitleg te krijgen over specifieke functies.
Productinformatie
| Merk | Stiebel Eltron |
| Model | FCR 28/120 |
| Categorie | Niet gecategoriseerd |
| Taal | Nederlands |
| Grootte | 20189 MB |







