Stiebel Eltron FCR 28/120 handleiding
Handleiding
Je bekijkt pagina 71 van 124

POLSKI
www.stiebel-eltron.com FCR 28 | 71
INSTALACJA
Dane techniczne
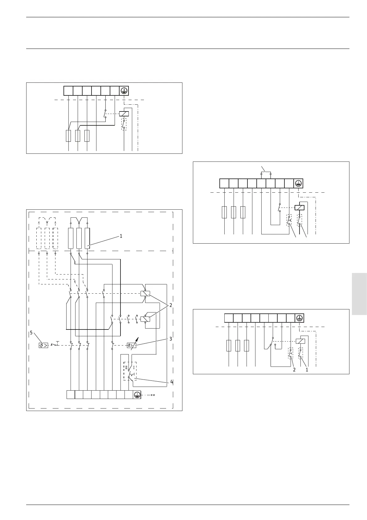
Przykładowe połączenie trybu jednotaryfowego ze stykiem
zakładu energetycznego
L1 L2 L3 N 4 5
D0000117769
D0000117768
1 Styk ZE, zamontowany przez wyspecjalizowanego instalatora
14.2.2 Tryb jedno-/dwutaryfowy 3/N/PE ~ 400V
FCR 28/120, numer katalogowy 071332
FCR 28/120 CrNi, numer katalogowy 234503
FCR 28/180, numer katalogowy 071333
2L3L2
L1 N
1
4
3
D0000117551
4
3
5
1
2
1 Grzałka
12kW Moc przyłączeniowa: 3 x 4kW
18kW Moc przyłączeniowa: 6 x 3 kW
2 Stycznik
3 Regulatory temperatury
4 Wyłącznik mocy I / II
5 Ogranicznik temperatury bezpieczeństwa
Przykładowe połączenie trybu dwutaryfowego
FCR 28/120, numer katalogowy 071332
FCR 28/120 CrNi, numer katalogowy 234503
6/12kW Wyłącznik mocy I
12/12kW Wyłącznik mocy II
FCR 28/180, numer katalogowy 071333
9/18kW Wyłącznik mocy I
18/18kW Wyłącznik mocy II
Wariant 1:
L1 L2 L3 N 1 2 3 4
D0000117769
D0000117769
12
3
1 Styk ZE, zamontowany przez wyspecjalizowanego instalatora
2 Przycisk do panelu obsługowego szybkiego nagrzewania,
montowany przez wyspecjalizowanego instalatora
3 Mostek zaciskowy
W okresie tańszej taryfy (zwolnienie przez zakład energetyczny)
można włączyć funkcję szybkiego nagrzewania (wysoka taryfa).
Wariant 2:
L1 L2 L3 N 1 2 3 4
D0000117755
D0000117555
12
1 Styk ZE, zamontowany przez wyspecjalizowanego instalatora
2 Przycisk do panelu obsługowego szybkiego nagrzewania,
montowany przez wyspecjalizowanego instalatora
W okresie tańszej taryfy (zwolnienie przez zakład energetyczny)
włączenie funkcji szybkiego nagrzewania (wysoka taryfa) jest
możliwe tylko, gdy wyłącznik mocy znajduje się w pozycjiII.
Bekijk gratis de handleiding van Stiebel Eltron FCR 28/120, stel vragen en lees de antwoorden op veelvoorkomende problemen, of gebruik onze assistent om sneller informatie in de handleiding te vinden of uitleg te krijgen over specifieke functies.
Productinformatie
| Merk | Stiebel Eltron |
| Model | FCR 28/120 |
| Categorie | Niet gecategoriseerd |
| Taal | Nederlands |
| Grootte | 20189 MB |







