Sime Murelle 70 Box ErP handleiding
Handleiding
Je bekijkt pagina 4 van 56

4
1.1 INTRODUCTION
MURELLE 70 BOX ErP heat modules are
pre-mixed condensing appliances designed
for heating only, suitable for outdoor instal-
lation thanks to the galvanised sheet metal,
pre-painted, insulated, weather-resistant
cabinet.
1 DEVICE DESCRIPTION
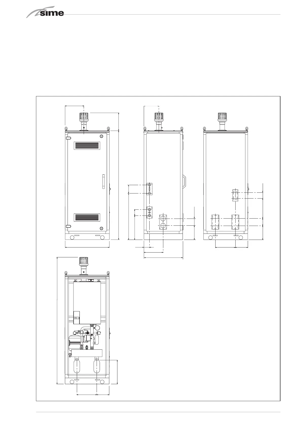
1.2 DIMENSIONS MODULES (fig. 1)
310
248
730
315
91
330
205
330
205
396
2097
1801
768
140
400
100
115
235
232
120
330
100
MB
RB
G
SC
R
M
R
M
RB
MB
R
M
640
296
Fig. 1
200
FIXTURES
M System supply R 2” (UNI - ISO 7/1)
R System return R 2” (UNI - ISO 7/1)
G Gas G 3/4” (UNI - ISO 228/1)
S3 Condensation drain ø 25
M2 D.H.W. tank supply G 1” (UNI - ISO 228/1)
R3 D.H.W tank return G 1” (UNI - ISO 228/1)
Bekijk gratis de handleiding van Sime Murelle 70 Box ErP, stel vragen en lees de antwoorden op veelvoorkomende problemen, of gebruik onze assistent om sneller informatie in de handleiding te vinden of uitleg te krijgen over specifieke functies.
Productinformatie
| Merk | Sime |
| Model | Murelle 70 Box ErP |
| Categorie | Niet gecategoriseerd |
| Taal | Nederlands |
| Grootte | 8576 MB |







