Scotsman HID312X handleiding
Handleiding
Je bekijkt pagina 7 van 55

HID312X, HID525X and HID540X
Installation and User’s Manual
January 2025
Page 5
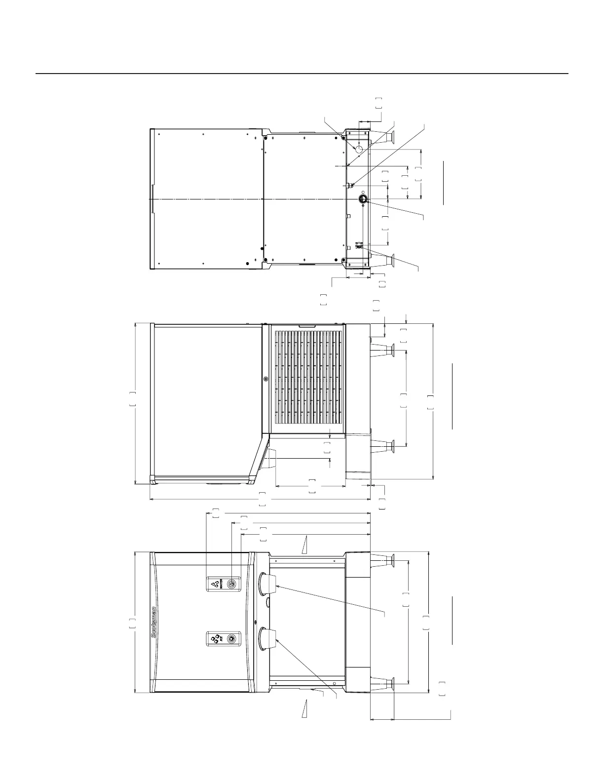
HID525X Cabinet Drawing
54
21.25
54.2
21.36
10.2
4.00
OPTION LEGS
ADJUSTABLE
66
26.00
55.9
22.00
52.1
20.50
47.3
18.62
REMOVABLE
AIR FILTER
ICE CHUTE
WATER CHUTE
AIR
FLOW
AIR
FLOW
61.9
24.38
59.7
23.50
0.3
.12
88.6
34.88
27.9
11.00
5.1
2.01
UTILITY
CHASE
7.7
3.02
36.8
14.50
10.2
4.00
4.6
1.80
3
1.17
9.7
3.80
UTILITY
CHASE
5.1
2.00
18.9
7.45
12.5
4.94
17.8
7.00
3/8" FLARE
WATER INLET
POWER
CORD
3/8 FPT
CONDENSER
WATER INLET
(WC ONLY)
3/4" FPT
DRAIN
1/2 FPT
CONDENSER
DRAIN
(WC ONLY)
BACK VIEW
RIGHT SIDE VIEW
FRONT VIEW
Bekijk gratis de handleiding van Scotsman HID312X, stel vragen en lees de antwoorden op veelvoorkomende problemen, of gebruik onze assistent om sneller informatie in de handleiding te vinden of uitleg te krijgen over specifieke functies.
Productinformatie
| Merk | Scotsman |
| Model | HID312X |
| Categorie | Niet gecategoriseerd |
| Taal | Nederlands |
| Grootte | 8352 MB |







