Scotsman HID312X handleiding
Handleiding
Je bekijkt pagina 8 van 55

HID312X, HID525X and HID540X
Installation and User’s Manual
January 2025
Page 6
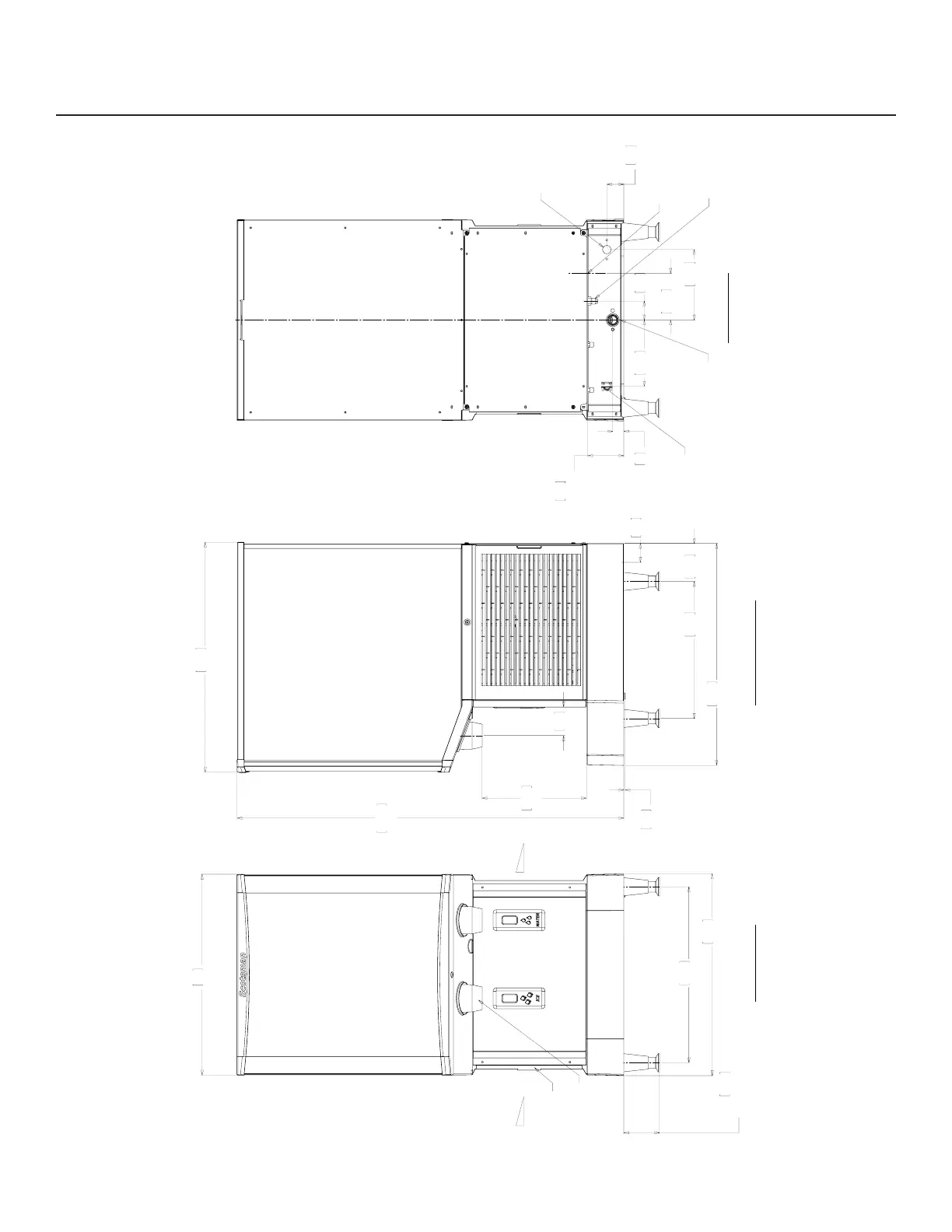
HID540X Cabinet Drawing
54.2
21.36
54
21.25
10.2
4.00
OPTION LEGS
ADJUSTABLE
47.3
18.62
ICE CHUTE
REMOVABLE
AIR FILTER
61.9
24.38
103.8
40.88
27.9
11.00
0.3
.12
59.7
23.50
5.1
2.01
7.7
3.02
10.2
4.00
36.8
14.50
9.7
3.80
UTILITY
CHASE
3
1.17
4.6
1.80
5.1
2.00
18.9
7.45
12.5
4.94
17.8
7.00
POWER
CORD
3/4" FPT
DRAIN
1/2 FPT
CONDENSER
DRAIN
(WC ONLY)
3/8 FPT
CONDENSER
WATER INLET
(WC ONLY)
3/8" FLARE
WATER INLET
AIR FLOWAIR FLOW
BACK VIEW
RIGHT SIDE VIEW
FRONT VIEW
Bekijk gratis de handleiding van Scotsman HID312X, stel vragen en lees de antwoorden op veelvoorkomende problemen, of gebruik onze assistent om sneller informatie in de handleiding te vinden of uitleg te krijgen over specifieke functies.
Productinformatie
Merk | Scotsman |
Model | HID312X |
Categorie | Niet gecategoriseerd |
Taal | Nederlands |
Grootte | 8352 MB |