Scotsman HID312X handleiding
Handleiding
Je bekijkt pagina 6 van 55

HID312X, HID525X and HID540X
Installation and User’s Manual
January 2025
Page 4
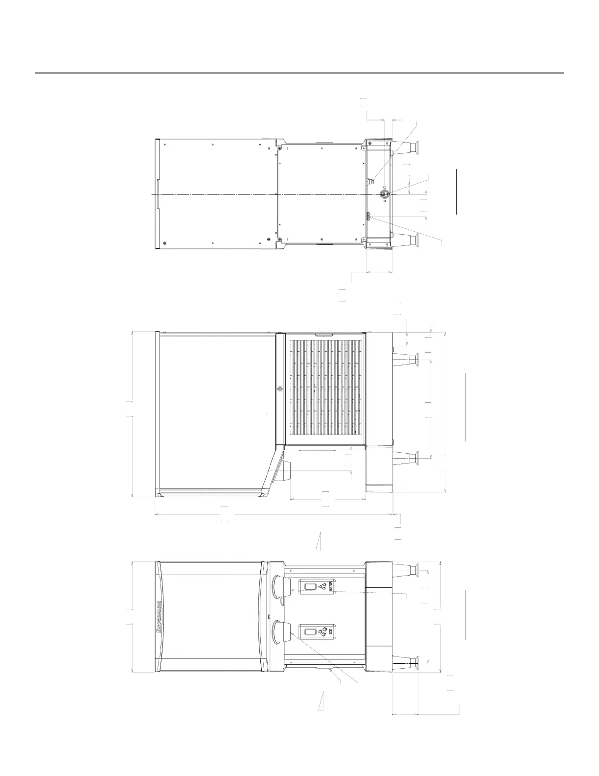
HID312X Cabinet Drawing
41.5
16.36
41.3
16.25
10.2
4.00
OPTION LEGS
ADJUSTABLE
34.6
13.62
REMOVABLE
AIR FILTER
AIR FLOW
ICE CHUTE
WATER CHUTE
88.6
34.88
0.3
.12
27.9
11.00
61.9
24.38
59.7
23.50
5.1
2.01
UTILITY
CHASE
7.7
3.02
10.2
4.00
36.8
14.50
3
1.17
9.7
3.80
UTILITY
CHASE
4.6
1.80
8.3
3.25
3/4" FPT
DRAIN
3/8" FLARE
WATER INLET
POWER
CORD
FRONT VIEW
RIGHT SIDE VIEW
BACK VIEW
AIR FLOW
Bekijk gratis de handleiding van Scotsman HID312X, stel vragen en lees de antwoorden op veelvoorkomende problemen, of gebruik onze assistent om sneller informatie in de handleiding te vinden of uitleg te krijgen over specifieke functies.
Productinformatie
| Merk | Scotsman |
| Model | HID312X |
| Categorie | Niet gecategoriseerd |
| Taal | Nederlands |
| Grootte | 8352 MB |







