Mitsubishi MSZ-GL12NA handleiding
Handleiding
Je bekijkt pagina 8 van 52

8
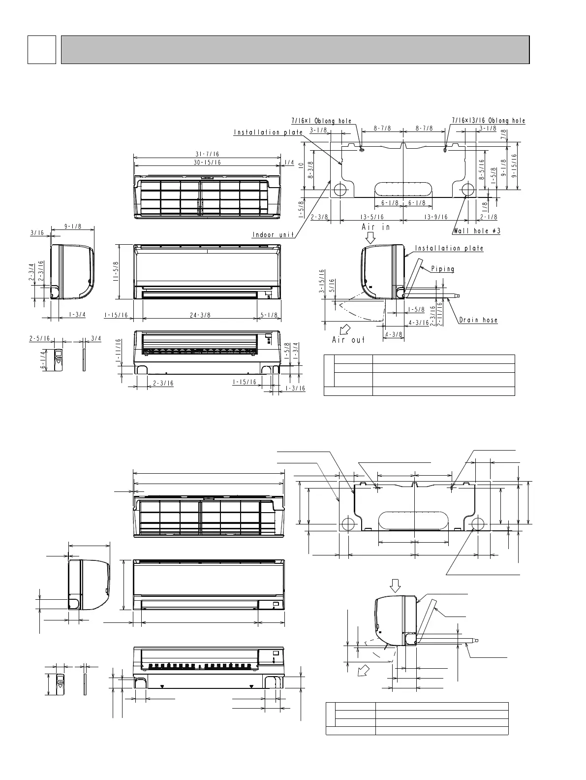
Unit: inch
MSZ-GL18NA
MSY-GL18NA
4
OUTLINES AND DIMENSIONS
Piping
Insulation Ø2 O.D
Liquid line Ø5/16 15-3/8 (Flared connection Ø1/4)
Gas line Ø15/32 13-3/8 (Flared connection Ø1/2)
Drain hose
Insulation Ø1-1/8 Connected part Ø5/8 O.D
3/4
6-1/4
2-5/16
2-1/4
2-1/2
9-13/16
3/16
35-13/16
36-5/16
1/4
27-15/16
6-5/16
2-1/16
12
2-9/16
2-13/16
2-1/2
2-9/16
3-11/16
2-1/16
9-7/16
10-5/16
1/8
8-7/8 8-7/8
3-11/16
8-3/4
10-3/8
2-5/16
15-7/8
8-11/16
3-11/16
7/8
1×7/16 Oblong hole
7/16×13/16
Oblong hole
Installation plate
Indoor unit
Wall hole Ø3
Air in
Installation plate
8-1/16
15-3/16
1-5/8
8-11/16
3
1-11/16
2-9/16
2-9/16
4-1/2
5-3/4
1/4
Air out
Piping
Drain hose
3-15/16
MSZ-GL06NA MSZ-GL09NA MSZ-GL12NA MSZ-GL15NA
MSY-GL09NA MSY-GL12NA MSY-GL15NA
Piping
Insulation ø1 - 3/8 O.D
Liquid line ø1/4 19 - 11/16 (Flared connection ø1/4)
Gas line ø3/8 16 - 15/16
(Flared connection: ø3/8 (GL06/09/12NA), ø1/2 (GL15NA))
Drain hose Insulation ø1-1/8 O.D Connected part ø5/8 O.D
OBH732C
Bekijk gratis de handleiding van Mitsubishi MSZ-GL12NA, stel vragen en lees de antwoorden op veelvoorkomende problemen, of gebruik onze assistent om sneller informatie in de handleiding te vinden of uitleg te krijgen over specifieke functies.
Productinformatie
Merk | Mitsubishi |
Model | MSZ-GL12NA |
Categorie | Airco |
Taal | Nederlands |
Grootte | 9967 MB |