Mitsubishi MSZ-GL12NA handleiding

52 pagina's
PDF beschikbaar

Handleiding

Je bekijkt pagina 9 van 52
9
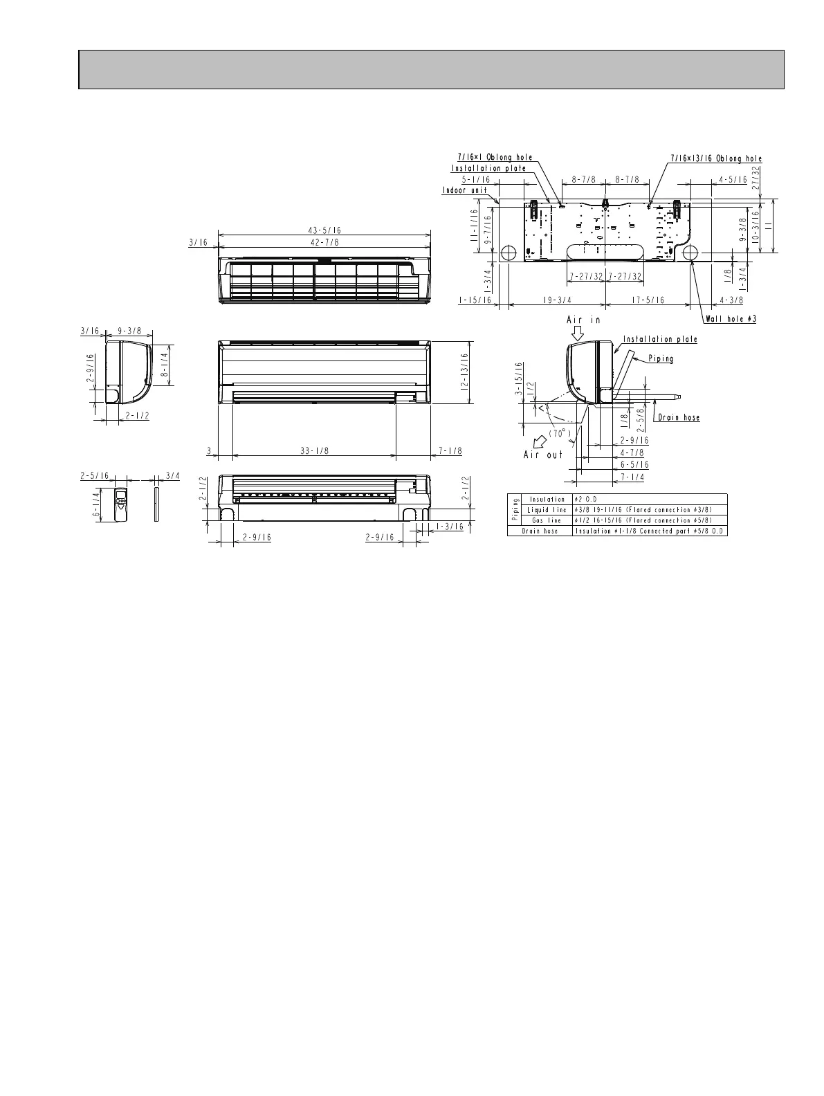
MSZ-GL24NA
MSY-GL24NA
Unit: inch
OBH732C

Bekijk gratis de handleiding van Mitsubishi MSZ-GL12NA, stel vragen en lees de antwoorden op veelvoorkomende problemen, of gebruik onze assistent om sneller informatie in de handleiding te vinden of uitleg te krijgen over specifieke functies.

Productinformatie

MerkMitsubishi
ModelMSZ-GL12NA
CategorieAirco
TaalNederlands
Grootte9967 MB