Master-Bilt QS2 handleiding
Handleiding
Je bekijkt pagina 32 van 104

32
8/22 Rev. R 132617 ©2022 Refrigerated Solutions Group. All rights reserved.
WALK-IN INSTALLATION
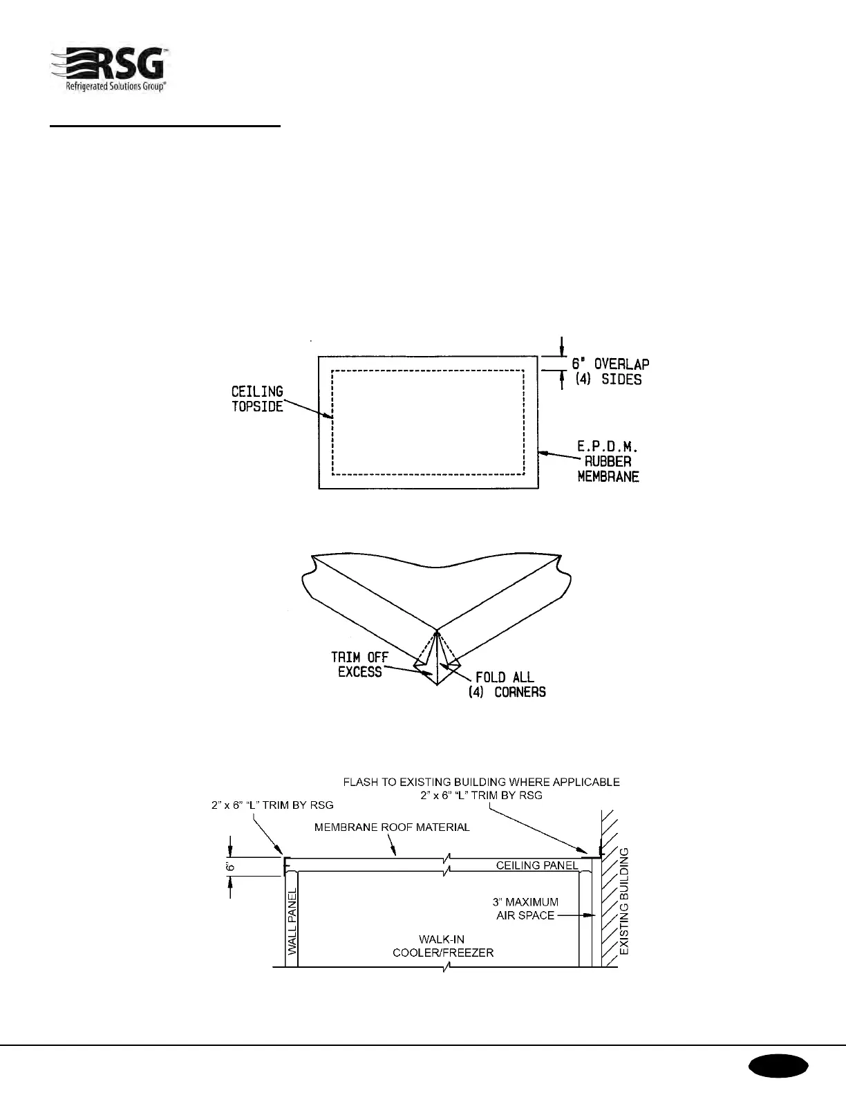
MEMBRANE ROOF INSTALLATION INSTRUCTIONS
IMPORTANT NOTE:
IF THIS WALK- IN INCLUDES CEILING MOUNT CAPSULE-PAK™ REFRIGERATION SYSTEMS, PLEASE
REFER TO CAPSULE-PAK™ REFRIGERATION INSTALLATION MANUAL. ALSO, BE SURE THE INTERIOR
COIL IS HUNG CORRECTLY PER THE REFRIGERATION MANUAL INSTRUCTIONS BEFORE INSTALLING
THE MEMBRANE.
Step #1
After walk-in is completely assembled, lay E.P.D.M. over ceiling topside and trim to a 6" overlap on all four sides.
St
ep #2
Fold all four corners as shown below.
Step #3
Attach trim, refrigeration hood and door hood with sheet metal screws provided. On some models the trim
may have to be cut to fit.
Step #4
Trim off all excess rubber membrane from under aluminum trim and hoods with utility knife. Be careful not to scratch
the surface of the panels with the knife.
Bekijk gratis de handleiding van Master-Bilt QS2, stel vragen en lees de antwoorden op veelvoorkomende problemen, of gebruik onze assistent om sneller informatie in de handleiding te vinden of uitleg te krijgen over specifieke functies.
Productinformatie
| Merk | Master-Bilt |
| Model | QS2 |
| Categorie | Koelkast |
| Taal | Nederlands |
| Grootte | 40845 MB |