Lincoln Electric Prism Wall Mount handleiding
Handleiding
Je bekijkt pagina 14 van 36

A-6
INSTALLATION
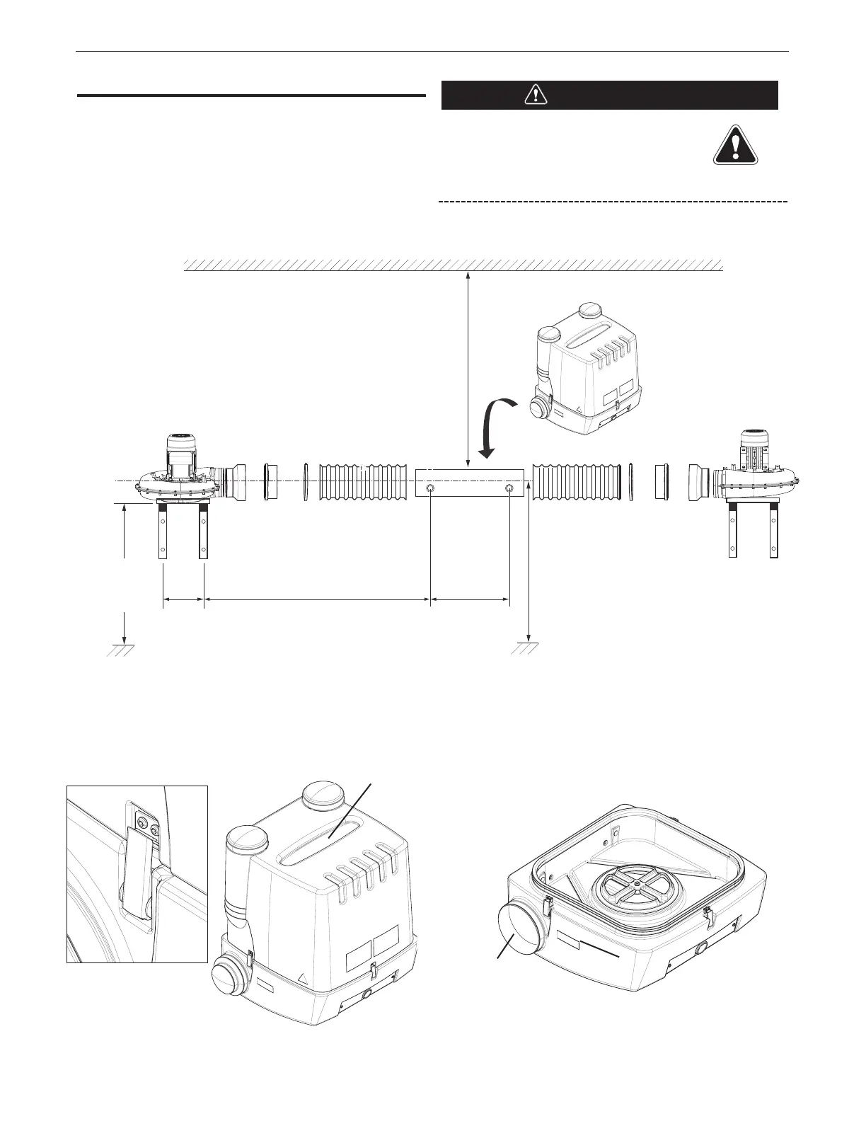
PRISM WALL MOUNT (/HE) DUAL ARM
NOTE: The Prism Wall Mount Dual Arm should be mounted
between two Prism 2400 extraction fans.
NOTE: Wall mounting brackets are not used with the Prism 7 FT
CW arm.
Installation Steps:
1. Loosen latches and remove the lter cover. See Figure A.10.
The Prism 2400 which is mounted right of the
Prism Wall Mount lter unit will be in reverse
position, resulting in centerpoints of fan
outlet and lter inlet not aligning. This will
not affect system performance.
2. Using a multi-purpose power saw cut open through the scribe
marks both inlets of bottom housing; cutouts to be Ø 8 in. (200
mm). See Figure A.11.If using a 6 in. diameter hose, cut open
through the scribe mark on the 6 in. side of the inlets of bottom
housing.
ATTENTION
10. in.
(250 mm)
38-43.5 in.
(965-1105 mm)
9.06 in.
(230 mm)
5 ft (1525 mm)
9
Recommended
Minimum
Recommended
ft
(2745 mm)
8.5 ft
(2600 mm)
FIGURE A.9
BOTTOM
HOUSING
INLET
FIGURE A.10
FIGURE A.11
FILTER COVER
LATCH
PRISM
®
WALL MOUNT
Bekijk gratis de handleiding van Lincoln Electric Prism Wall Mount, stel vragen en lees de antwoorden op veelvoorkomende problemen, of gebruik onze assistent om sneller informatie in de handleiding te vinden of uitleg te krijgen over specifieke functies.
Productinformatie
| Merk | Lincoln Electric |
| Model | Prism Wall Mount |
| Categorie | Niet gecategoriseerd |
| Taal | Nederlands |
| Grootte | 5014 MB |






