JANDY Levolor K-2000 handleiding
Handleiding
Je bekijkt pagina 7 van 20

Section 3. Installation Instructions
3.1 Materials and Tools
Installation Materials Furnished for
Levolor II, Model K-2000
Qty
Three-probeSensorwithWire 1
24VACSolenoidValve 1
1"Coupler 1
ControlBox(K-2000) 1
RemoteSensorHousing 1
HardwareKit 1
Grease-FilledWireNutsforValve
2perkit
Screws
4perkit
Anchors
4 perkit
InstallationandOperationManual-
WarrantyInformation
1
Additional Materials Needed for Installation
DPST(DualPoleSingleThrow)24VDCRelaywith
ContactsProperlyRatedforPumpSelected
Anti-SiphonValve*
2-Conductor18-GaugeSolid-Core BurialCable
WireNutConnectorsfortheSensor,Relay,and
PowerConnections.
*The anti-siphon valve is not necessary if the
connection is made from the irrigation system.
NOTE Youcanordera24VDCrelayratedfor3HP
fromJandy(PartNo.R0658100).
Open the box and check to see that it contains the
contents listed above. If it does not, contact your dealer
or Zodiac technical support at 1 (800)-822-7933.
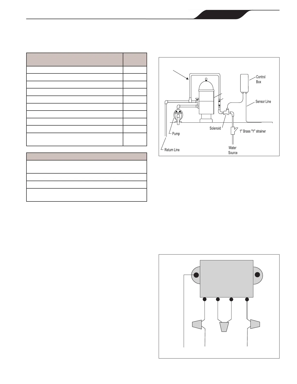
3.2 Installing the Control Box
1. Mount the control box to the wall near the pump
and lter. See Figure 2. Do not install the control
box within 10 feet (3 meters) of the pool edges.
Fill Line
Anti-siphon
Valve
Filter
Figure 2. K-2000 Installation
2. Mount the control box at eye level. Leave
sufcient clearance on all sides of the chassis
backplate.
3. Check the source voltage. (The unit is factory
wired for 220 volt operation.) To modify the
wiring for 110 volt operation, see Section 3.3,
Changing Wiring for 110 Volt Operation.
4. For 220 volt operation, connect the black wire to
line 1 and connect the black wire with the yellow
stripe to line 2. See Figure 3.
Green
Transformer
1
25
6
BLK/RED
BLK/WHT
BLK
BLK/YEL
Ground
Line 1
Line 2
Figure 3. Factory Wiring for 220 Volt Operation
Page 7
ENGLISH
Jandy Pro Series Levolor
®
II Electronic Water Leveler
Models K-2000
|
Installation and Operation Manual
Bekijk gratis de handleiding van JANDY Levolor K-2000, stel vragen en lees de antwoorden op veelvoorkomende problemen, of gebruik onze assistent om sneller informatie in de handleiding te vinden of uitleg te krijgen over specifieke functies.
Productinformatie
Merk | JANDY |
Model | Levolor K-2000 |
Categorie | Niet gecategoriseerd |
Taal | Nederlands |
Grootte | 2855 MB |