Handleiding
Je bekijkt pagina 34 van 44

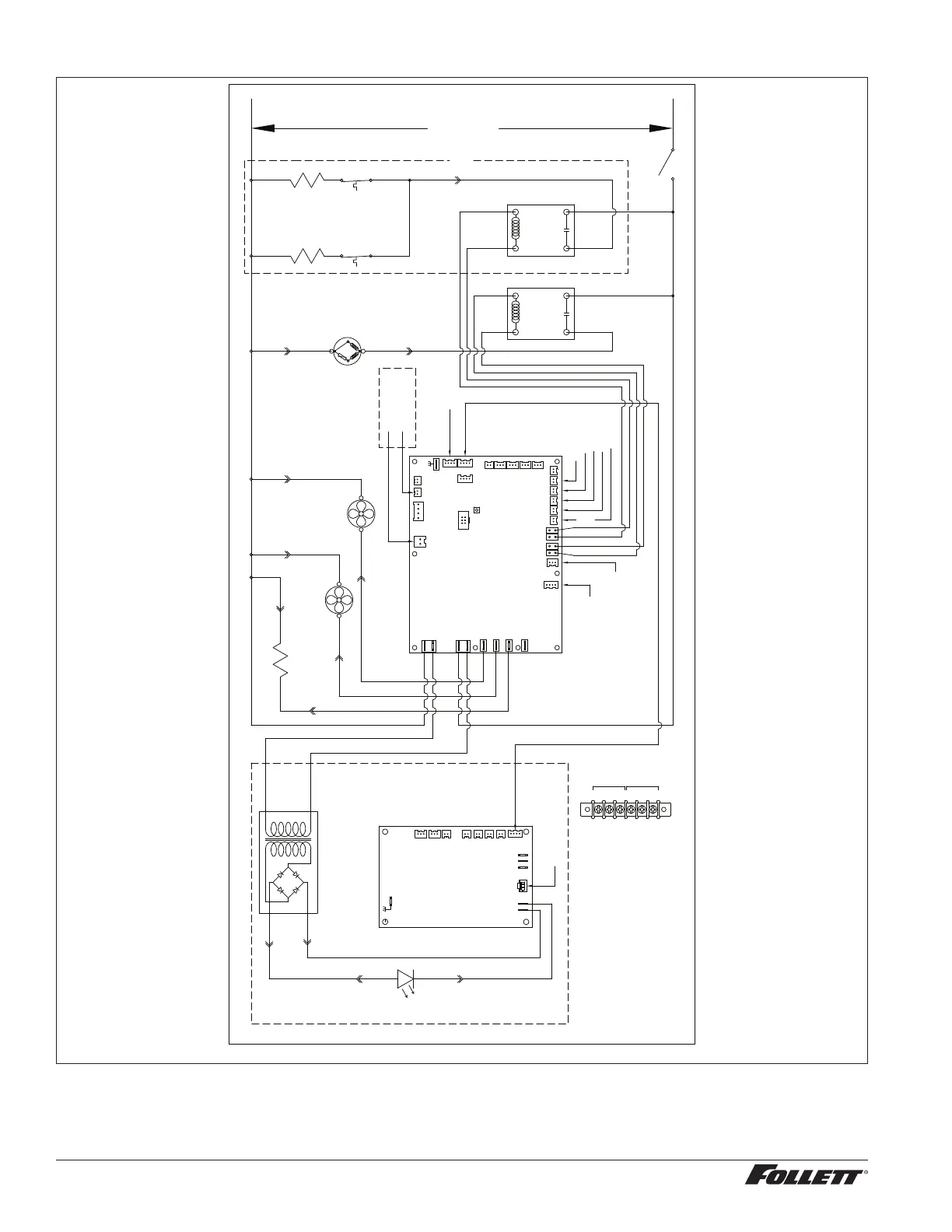
34 FZR4P, FZR5P and FZR5PLP-T Undercounter Freezers
Serial numbers E98967 and below
N
C
BLK
WHT
WHT
WHT
BRN
BLK
BLU
VIO
BRN
EVAP
FAN
COND
FAN
DOOR
HTR
DEF
HTR
PAN
HTR
SFTY
SW
SFTY
SW
COMP
PWR SW
DEF RLY
COMP RLY
ALARM#1
DEF
DFRST
ALARM
BOTL
SUCTDSCHG
COMP
INLET
EVAP FAN
COND FAN
DOOR HTR
RESET
CAB
COND AIR
P7
P3
P2 P1
P6
P8
R30
21
43
INPUT
3-32VDC
240VAC/25A
OUTPUT
21
43
INPUT
3-32VDC
240VAC/25A
OUTPUT
120VAC
BLK
BLK
BLK
ORG
RED
RED
BLK
RED
BLK
BLU
VIO
BRN
BLK
WHT
RED
WHT
WHT
WHT ORG
FZR SERIES ONLY
MACHINE CONTROL
BLK
RED
RED
BLK
ALARM 1
DISPLAY
PAN
COIL
BLK
BLK
BLU
WHT
BLK
BLK
WHT
120VAC
12VDC
LED
LIGHT
ALARM 2
LOCK
12V TRANSFORMER
BRN
BLU
RED
BLK
RED
BLK
BLK RED
RED
RED
P1-CAB
P2-DFST
P3-BOTL
P6-SUCT
P7-DSCHG
DOOR SW.
BATTERY
ENHANCED ONLY
ENHANCED
ENHANCED
CONTROL
HOT (L1)
NEUTRAL (L2)
RELAY
COMP
RELAY
DOOR
SW
BATTERY
COM
N.O.
N.C.
COM
N.O.
N.C.
ALARM 1
REAR PANEL CONNECTIONS
1A/30VDC
ALARM 2
1A/30VDC
Bekijk gratis de handleiding van Follett FZR4P, stel vragen en lees de antwoorden op veelvoorkomende problemen, of gebruik onze assistent om sneller informatie in de handleiding te vinden of uitleg te krijgen over specifieke functies.
Productinformatie
Merk | Follett |
Model | FZR4P |
Categorie | Koelkast |
Taal | Nederlands |
Grootte | 6765 MB |