Handleiding
Je bekijkt pagina 35 van 44

FZR4P, FZR5P and FZR5PLP-T Undercounter Freezers 35
Refrigeration System
The Performance Plus refrigeration system is designed to give many years of trouble-free service. Except for
routine cleaning of the air-cooled condenser and related parts, the refrigeration system requires no service or
maintenance. The system uses a capillary tube and is critically charged. Access ttings are provided for ease
of service. However, the connection of refrigeration service hoses to the ttings will almost invariably result in
a signicant change in the system charge. This change can adversely affect the performance of your freezer.
Therefore, Follett recommends that if hoses are ever connected to the refrigeration system for service, the
refrigerant should be recovered, the system evacuated, and recharged by weighing in the correct refrigerant
charge.
Checking Refrigeration System Pressures
1. Remove the rear access panel.
2. Turn the power switch to the ON position.
3. Verify that the temperature controller is set to the original factory cut-in setting.
4. Allow the freezer to operate and stabilize at least 30 minutes, verifying the cut-out temperature is being
reached.
5. If the compressor doesn't cycle after 20 minutes, the following checks must be completed before
checking refrigeration pressures:
§ condenser coil is clean and clear
§ condenser fan is running
§ evaporator coil is clean and clear
§ evaporator fan motor is running
§ compressor is running at normal amp draw
6. Connect refrigerant hoses to access ttings and measure air temperature at condenser intake grille.
7. Verify correct pressures with the temperature chart below.
8. Troubleshoot refrigeration system as needed.
FZR4P, FZR5P
Condenser inlet air temperature 70 F (21.1 C) 80 F (26.7 C) 100 F (37.8 C)
Suction pressure (psi) 12 13 17
Discharge pressure (psi) 199 226 325
Note: Do not attempt to obtain correct refrigeration pressures by adjusting the system charge.
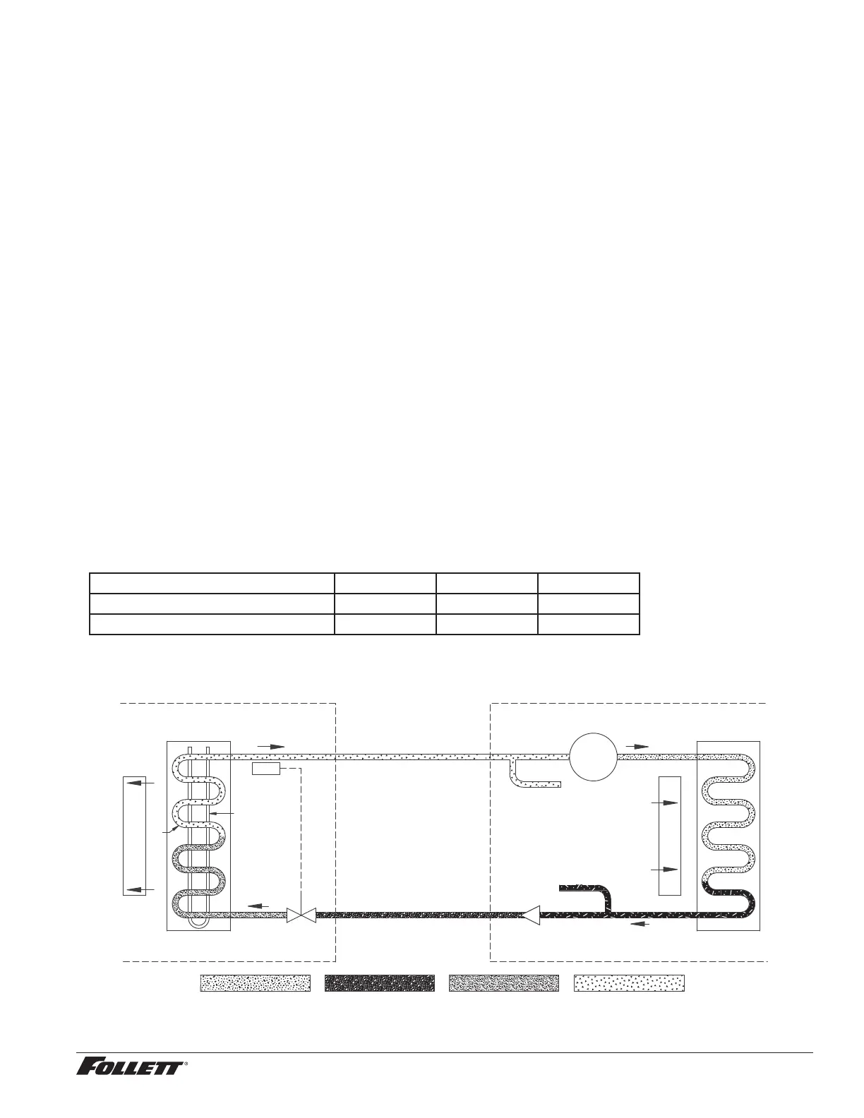
Refrigeration System Diagram
DRYER
HIGH PRESSURE VAPOR LOW PRESSURE VAPORHIGH PRESSURE LIQUID LOW PRESSURE LIQUID
COMPRESSOR
FAN
10oz. Charge
High Psi
Liquid
Low Psi
Liquid
High Psi
Vapor
Low Psi
Vapor
EVAPORATOR FAN
EVAPORATOR/DEFROST UNIT
CONDENSING UNIT
DEFROST HEATER
EVAPORATOR
TXV
Bekijk gratis de handleiding van Follett FZR4P, stel vragen en lees de antwoorden op veelvoorkomende problemen, of gebruik onze assistent om sneller informatie in de handleiding te vinden of uitleg te krijgen over specifieke functies.
Productinformatie
Merk | Follett |
Model | FZR4P |
Categorie | Koelkast |
Taal | Nederlands |
Grootte | 6765 MB |