Ecoteck Unica handleiding
Handleiding
Je bekijkt pagina 9 van 40

Use and maintenance manual - Model: “UNICA 10 V/C”
9
ENGLISH
3.6
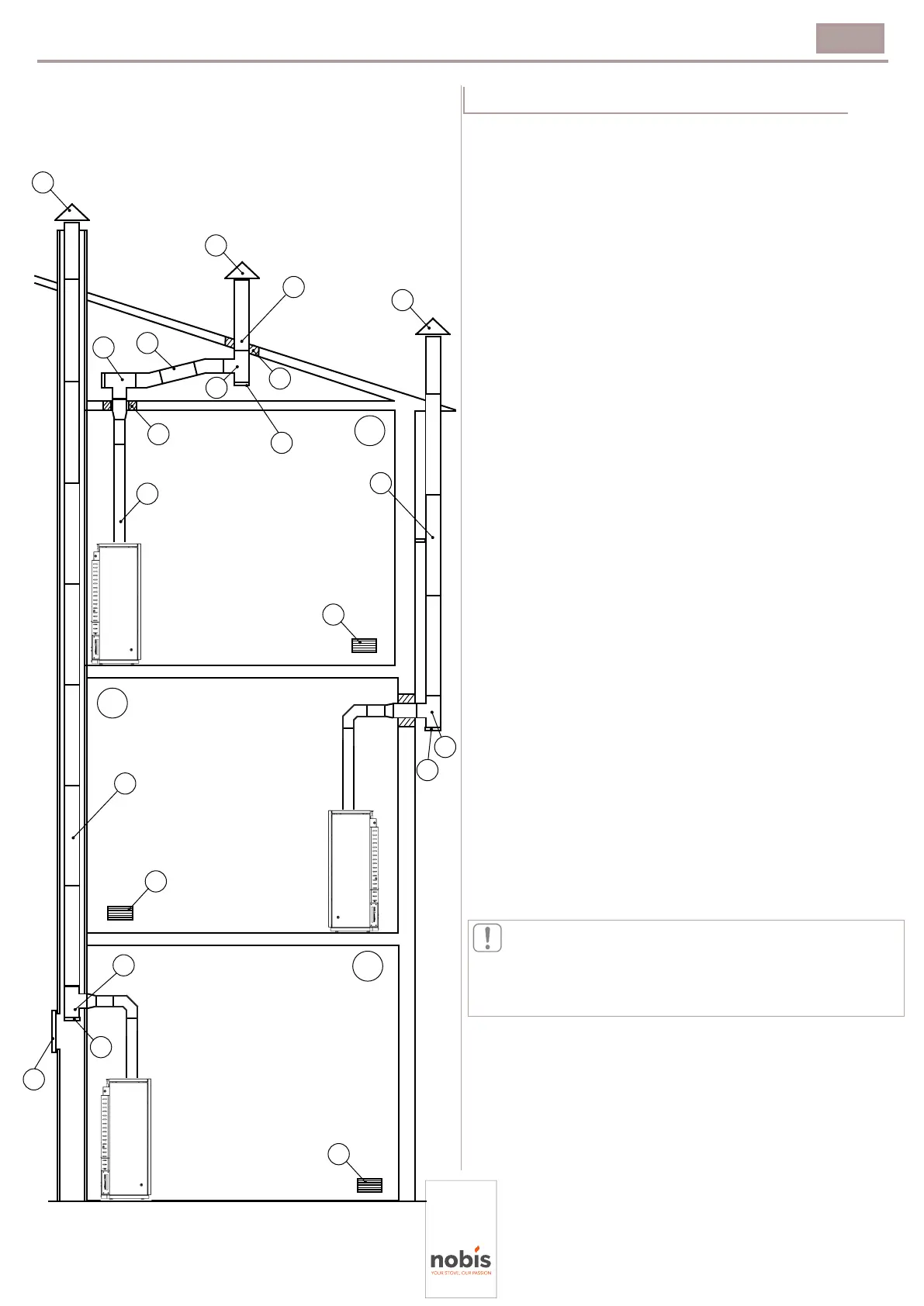
EXAMPLES OF CORRECT INSTALLATION
installation of the product (A) necessary for the
horizontal section for connection to an existing
chimney ue. Based on a slope of 3-5%, to reduce
ash deposit in the horizontal pipe section which must
not be over 3m (1). The existing chimney ue must be
inspectionable (2).
Installation of the product (B) requires an insulated
chimney ue (3) with an internal diameter of no
less than 130mm, since all the smoke piping was
assembled outside the home.
Installation of the product (C) requires a single wall
chimney ue (4) for the section inside the home.
Relating to the part placed in the attic, you are
advised to install a chimney ue Ø150mm, with
perforation for passage of the piping, extended to:
• minimum 150mm around the pipe if in contact with
inammable parts such as cement, bricks, etc.;
• minimum 300mm around the pipe (or as described
in the plate data) if in contact with ammable parts
such as wood etc.
In both cases, insert adequate insulation (5) between
the chimney ue and the attic.
You are advised to check and comply with the
plate data of the chimney ue, in particular the safe
distances from combustible materials.
The previous rules also apply for holes made on walls.
On the lower part of the chimney ue, for all 3
installations, a “T” tting (6) was assembled with an
inspection plug (7), as well as on the inlet of the
chimney ue.
The upper part of the chimney ue, for all 3 installations,
has a wind-proof chimney pot (8) assembled.
In the home, for all 3 installations, a grate is planned
to guarantee correct oxygenation of the premises
where the product is positioned.
Grate not necessary if appliance is hermetically
sealed.
In the event of particular atmospheric conditions
and/or hostile draught conditions, the product can
overcome these situations provided due installation
measures are in place, for example a wind-proof
chimney pot.
9
7
7
A
1
2
3
3
4
8
8
8
9
6
7
B
C
6
3
5
5
6
6
9
Bekijk gratis de handleiding van Ecoteck Unica, stel vragen en lees de antwoorden op veelvoorkomende problemen, of gebruik onze assistent om sneller informatie in de handleiding te vinden of uitleg te krijgen over specifieke functies.
Productinformatie
| Merk | Ecoteck |
| Model | Unica |
| Categorie | Niet gecategoriseerd |
| Taal | Nederlands |
| Grootte | 8886 MB |
