Handleiding
Je bekijkt pagina 30 van 40

12 Technical data
Installer reference guide
30
RZAG71~140L7V1B
Split system air conditioners
4P418663-1 – 2016.02
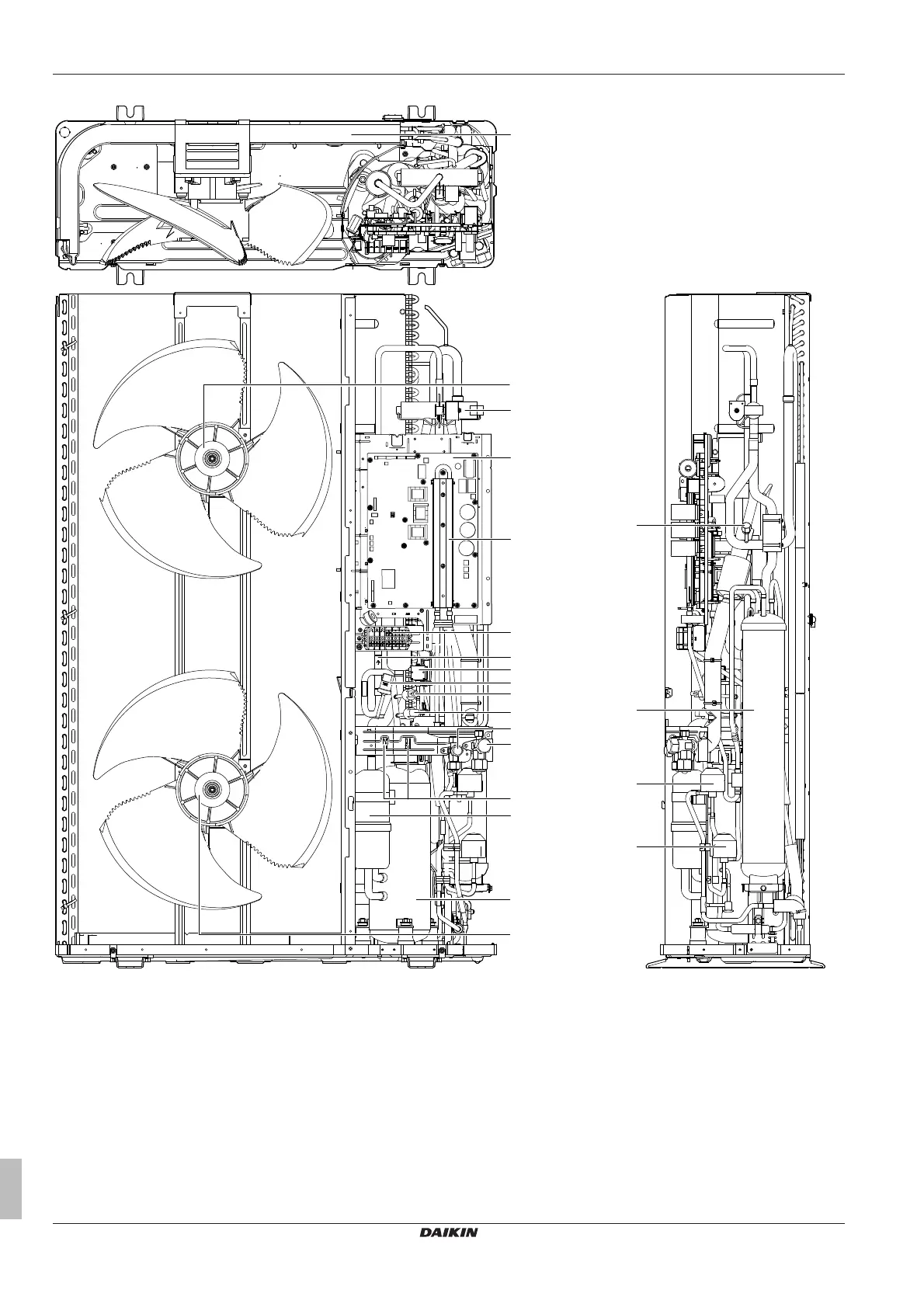
RZAG100~140
b
e
Y1E
Y3E
a
A1P
c
Y1S
S1PL
S1PH-M
S1PH-A
d
Y2S
X1M
g
i
M1C
f
M2F
M1F
h
a Heat exchanger
b Internal service port
c Switch box cooling
d Check valve
e Liquid receiver
f Stop valve with service port (liquid)
g Stop valve with service port (gas)
h Cable tie mountings (to fix the field wiring with cable ties to
ensure stress relief)
i Compressor accumulator
A1P Printed circuit board (main)
M1C Motor (compressor)
M1F Motor (upper fan)
M2F Motor (lower fan)
S1PH-A Automatic high pressure switch
S1PH-M Manual high pressure switch
S1PL Low pressure switch
X1M Terminal (communication and power supply)
Y1E Electronic expansion valve
Y3E Electronic expansion valve
Y1S Solenoid valve (4‑way valve)
Y2S Solenoid valve
Bekijk gratis de handleiding van Daikin RZAG125L7V1B, stel vragen en lees de antwoorden op veelvoorkomende problemen, of gebruik onze assistent om sneller informatie in de handleiding te vinden of uitleg te krijgen over specifieke functies.
Productinformatie
Merk | Daikin |
Model | RZAG125L7V1B |
Categorie | Airco |
Taal | Nederlands |
Grootte | 6272 MB |