Carrier 39S handleiding
Handleiding
Je bekijkt pagina 12 van 64

12
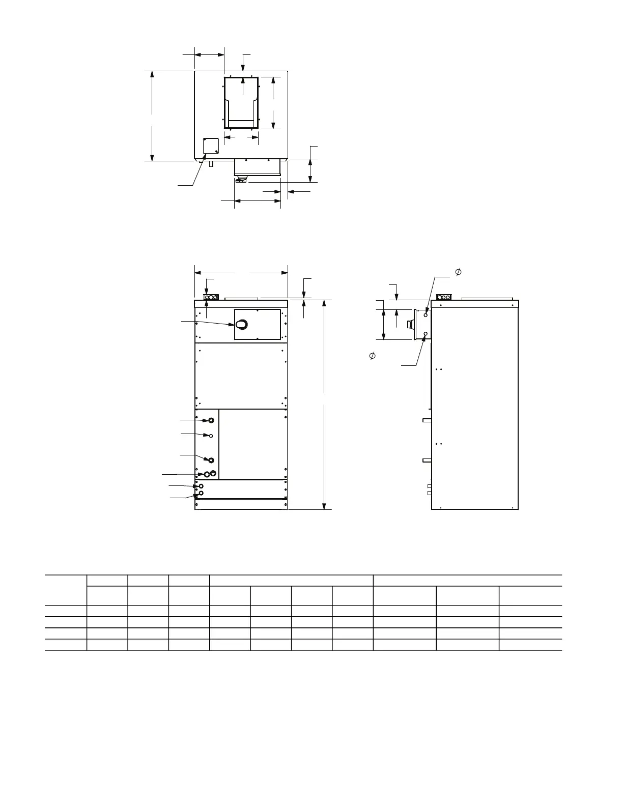
Fig. 7 — 39SV Unit Size 02-05 — Pre-Heat
4 x 4
JBOX (w/o MSS)
F
G
D
12.5
B
E
6.3
1.9
Right View
8.2
2.5
.875
24V Control
Conn.
.875 (OPP SIDE)
Power Conn.
Motor Start/Stop
(MSS) (optional)
Conn.
Liquid Conn. (DX)
Front View
Supply Conn. (CW)
Top View
Supply Conn. (HW)
Return (HW) Conn.
Return (CW)
Suction (DX)/
Cond Drain
w/ Aux (3/4 in. FPT)
C
A
0.8
1.5
LEGEND
Dimensions (in.)
a
NOTE(S):
a. Dimensions are shown in inches.
39SV
UNIT
SIZE
WIDTH DEPTH HEIGHT SUPPLY DUCT CONNECTION SIZES (OD)
A B C D E F G
CW
Supply-Return
HW
Supply-Return
DX
Supply-Return
02 22.3 24.0 50.0 6.9 8.5 3.0 11.8 3/4 - 3/4 7/8 - 7/8 3/8 - 3/4
03 22.3 24.0 50.0 6.9 8.5 3.0 11.8 3/4 - 3/4 7/8 - 7/8 3/8 - 3/4
04 25.1 24.3 56.5 8.0 9.1 1.6 13.9 7/8 - 7/8 7/8 - 7/8 1/2 - 7/8
05 29.5 26.0 59.5 8.4 12.6 1.3 13.9 1-1/8 - 1-1/8 1-1/8 - 1-1/8 1/2 - 1-1/8
CW — Chilled Water
DX — Direct Expansion
HW — Hot Water
MSS — Motor Start/Stop Station
Bekijk gratis de handleiding van Carrier 39S, stel vragen en lees de antwoorden op veelvoorkomende problemen, of gebruik onze assistent om sneller informatie in de handleiding te vinden of uitleg te krijgen over specifieke functies.
Productinformatie
| Merk | Carrier |
| Model | 39S |
| Categorie | Niet gecategoriseerd |
| Taal | Nederlands |
| Grootte | 10967 MB |







