Carrier 39S handleiding
Handleiding
Je bekijkt pagina 10 van 64

10
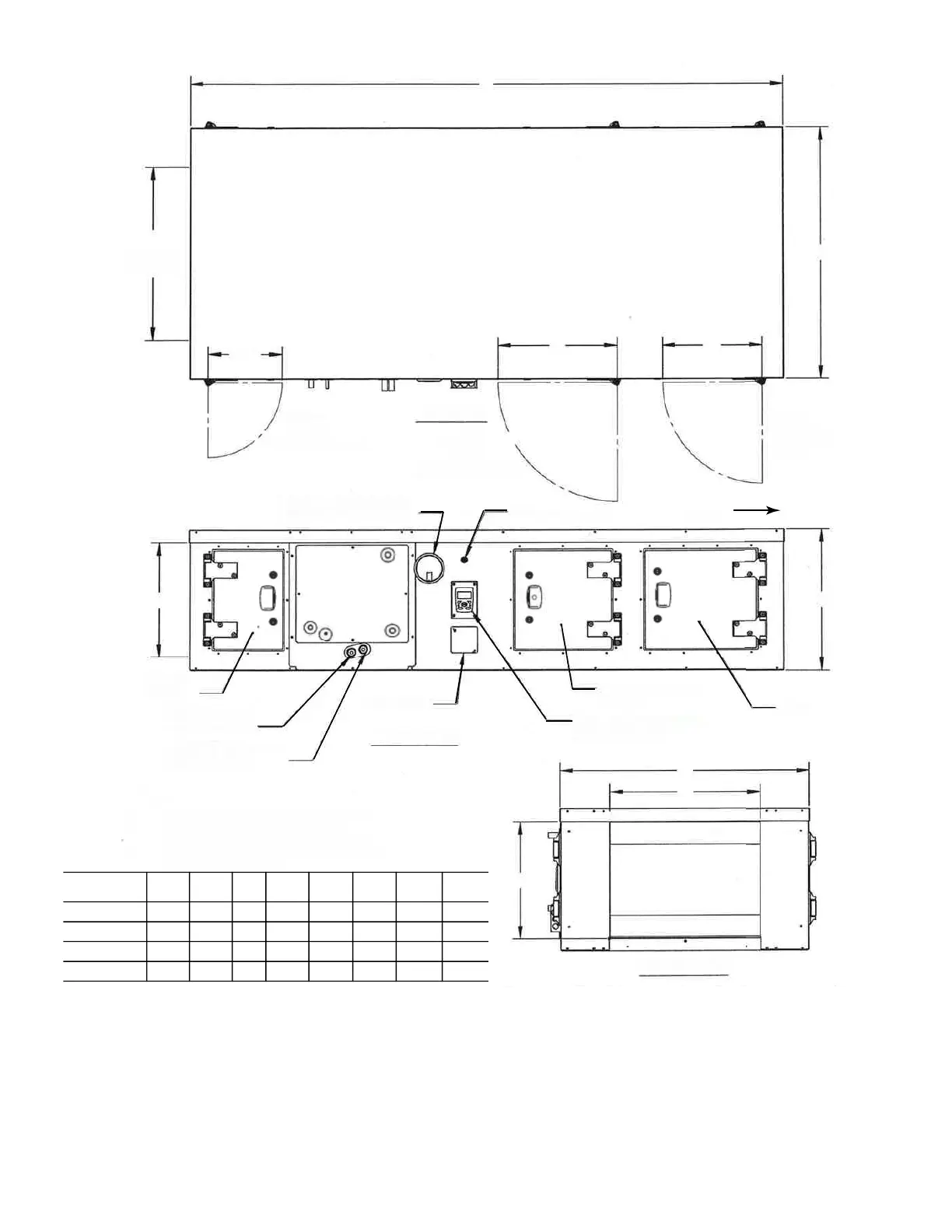
Fig. 5 — 39SHF Unit
Right View
Top View
Front View
Door Swing
(Typ Both Sides)
Door Swing
(Typ Both Sides)
(Typ Both Sides)
Door Swing
Control Entry
HEPA Filter Gauge/
Pressure Ports (OPT)
Airflow
Power Entry
HEPA
Motor/blower
Access
Unit Potentiometer/
VFD Key Pad
Aux 3/4" FPT Drain
Connection
3/4" FPT Drain
Connection
MERV8
MERV13
E C
11.7
HG
E
A
D
F
(RTN Air
Opening)
A
B
Dimensions (in.)
a,b,c
NOTE(S):
a. Dimensions shown in inches.
b. Unit potentiometer may be relocated by others in field.
c. Coil connections shown for reference only.
39SHF
UNIT SIZE
A B C D E F G H
00, 01 33.2 93.4 22 17.8 18.1 21 15.8 18.5
02, 03 39.2 93.4 22 23.8 18.1 27 15.8 18.5
04, 05 48.2 97.5 28 32.8 24.1 36 19.8 18.6
06 48.2 97.5 28 32.8 24.1 36 19.8 18.6
Bekijk gratis de handleiding van Carrier 39S, stel vragen en lees de antwoorden op veelvoorkomende problemen, of gebruik onze assistent om sneller informatie in de handleiding te vinden of uitleg te krijgen over specifieke functies.
Productinformatie
| Merk | Carrier |
| Model | 39S |
| Categorie | Niet gecategoriseerd |
| Taal | Nederlands |
| Grootte | 10967 MB |







