Handleiding
Je bekijkt pagina 13 van 90

13
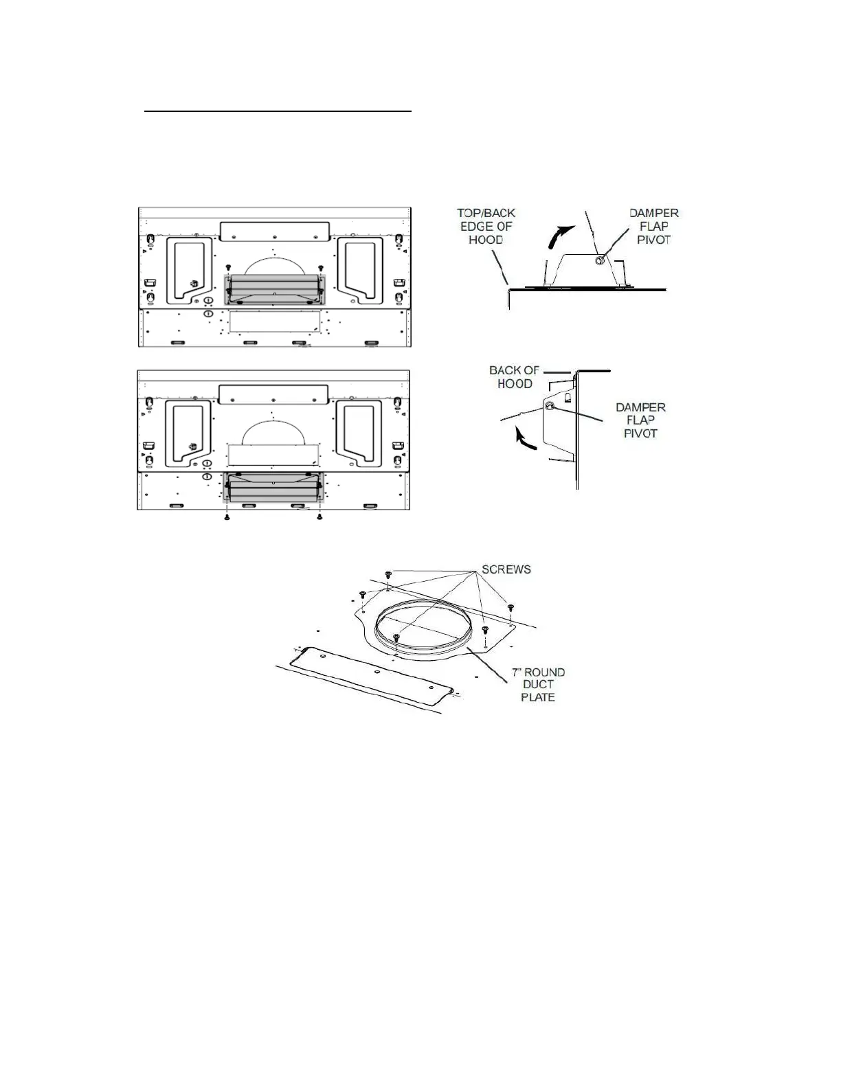
7. FOR DUCTED INSTALLATION ONLY
Use ST 3/16” x 5/16” screw to attach 3¼” x10” Damper Assembly on top OR back of
hood (if using 3¼” x10” duct, see Figure 2 A) or 7” Round Duct Plate (if using 7-inch
round duct, see Figure 3) over the knockout opening. When installed, the 3¼”x 10”
damper assembly must open as shown in Figure 2 B.
Figure 2 A Figure 2 B
Figure 3
TIP: Insert a small length of duct over the 3¼”x 10’’ damper assembly (for rectangular
ducting) or 7” round (for round ducting) and seal the joint using aluminum foil duct tape
to ease connection with the house ductwork.
Bekijk gratis de handleiding van Broan GLA1363WH, stel vragen en lees de antwoorden op veelvoorkomende problemen, of gebruik onze assistent om sneller informatie in de handleiding te vinden of uitleg te krijgen over specifieke functies.
Productinformatie
| Merk | Broan |
| Model | GLA1363WH |
| Categorie | Afzuigkap |
| Taal | Nederlands |
| Grootte | 16752 MB |







