Handleiding
Je bekijkt pagina 12 van 90

12
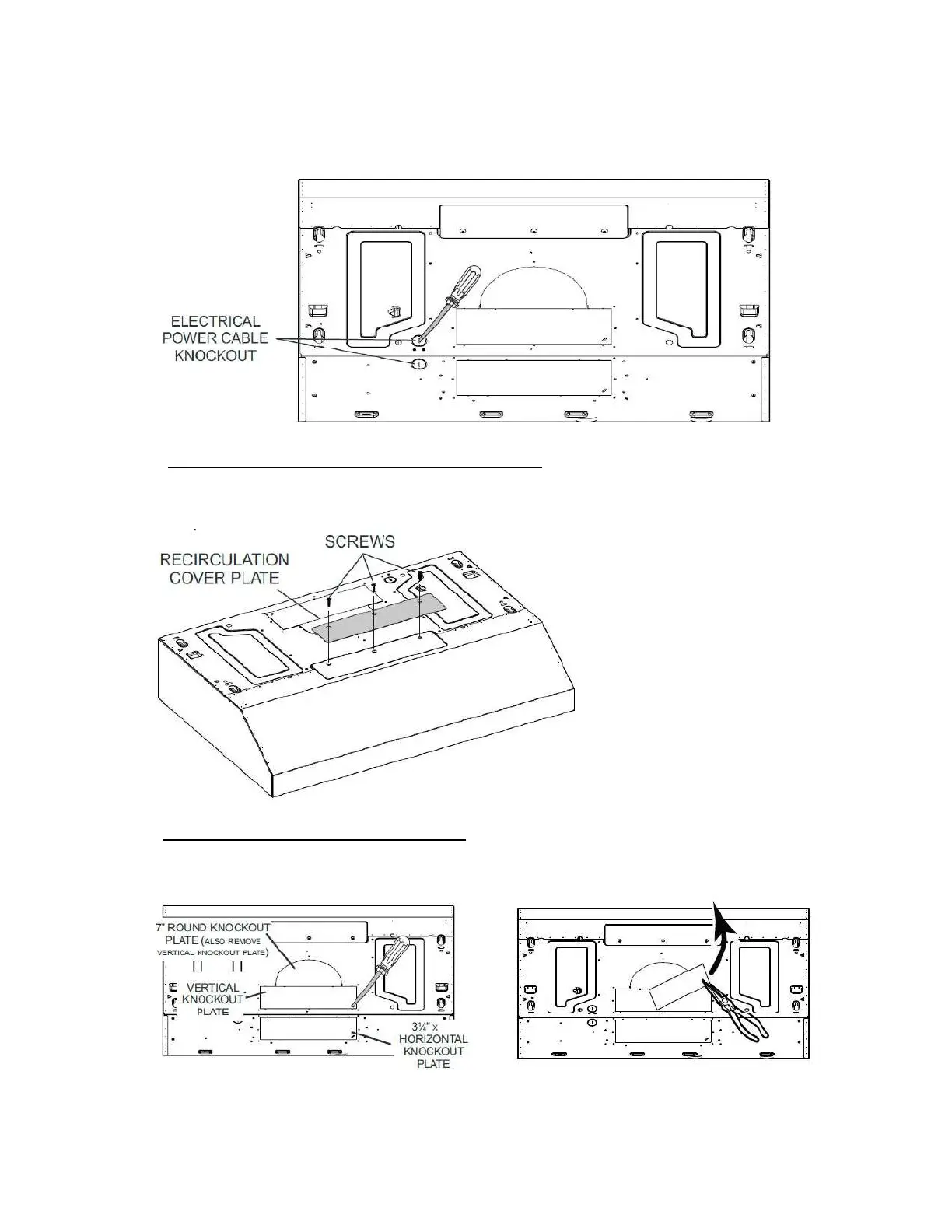
4. Remove Electrical Power Cable Knockout from top (vertical exhaust) or back
(horizontal exhaust) of hood. For knockout removed from back of hood, install an
appropriate strain relief, 1/2” diameter (not included).
5. FOR RECIRCULATION INSTALLATION ONLY
Remove 3 screws retaining the recirculation cover plate to the hood. This plate is not
needed for recirculation. Discard or keep for future use. Peel off and discard the
membrane covering the recirculation grille, ensuring the openings are totally cleared.
6. FOR DUCTED INSTALLATION ONLY
Remove 3¼” x10” vertical, 3¼” x10” horizontal or 7-inch round knockout plate as
appropriate for your ducting method.
Bekijk gratis de handleiding van Broan GLA1363WH, stel vragen en lees de antwoorden op veelvoorkomende problemen, of gebruik onze assistent om sneller informatie in de handleiding te vinden of uitleg te krijgen over specifieke functies.
Productinformatie
| Merk | Broan |
| Model | GLA1363WH |
| Categorie | Afzuigkap |
| Taal | Nederlands |
| Grootte | 16752 MB |







