Wilbur Curtis G4TB handleiding
Handleiding
Je bekijkt pagina 18 van 26

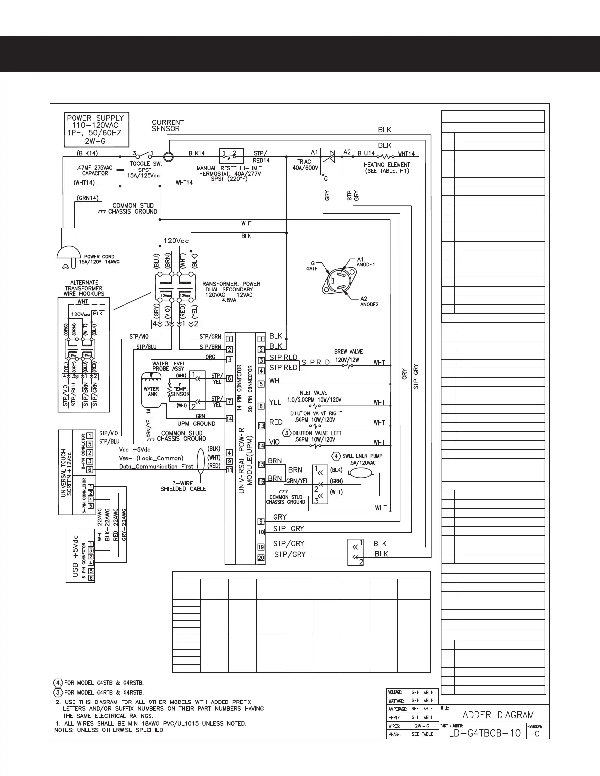
ELECTRICAL SCHEMATICS ES11
G4 TEA BREWERS, ELECTRICAL SCHEMATIC 080416NC
1
12 Vac Input
2
12 Vac Input
3
Tank Water Level Probe
4
Vdd +5Vdc
5
Not Used
6
Tank Temperature Sensor
7
Tank Temperature Sensor
8
Data_Communication Next
(Not Used)
9
Vss- (Logic_Common)
10
Not Used
11
Data_Communication First
12
Not Used
13
Not Used
14
UPM Ground
1
TX - Transmit
2
RX - Receive
3
Not Used
4
Vdd +5Vdc
5
Vss- (Logic_Common)
rotcennoC niP 41
rotcennoC niP 5
1
120V Hot Input
2
120V Hot Input
3
Brew Valve
4
Not Used
5
120V Neutral
6
Inlet Valv e
7
Not Used
8
Not Used
9
Triac Gate
10
Triac A2
11
Not Used
12
Not Used
13
Dilution Valve Right
14
Dilution Valve Left
15
Sweetner Pump
16
Sweetner Pump
17
120Vac Neutral
(Internal Use Only)
18
Not Used
19
Current Sensor
20
Current Sensor
1
12 Vac Input (Back Light)
2
Vdd +5Vdc
3
Vss- (Logic_Common)
4
Not Used
5
12 Vac Input (Back Light)
6
Data_Communication First
7
Not Used
8
Not Used
1
Vss- (Logic_Common)
2
TX - Transmit
3
Vdd +5Vdc
4
RX - Receive
5
Not Used
6
Not Used
(UCM TOUCH SCREEN)
Pin Assignments
(USB) Pin Assignments
6-Pin Connector
(UPM) Pin Assignments
rotcennoC niP 02
rotcennoC niP 8
Model
Voltage
V
Amps
A
WaƩs
W
Hertz
Hz
# of
Conductor
Wires
Phase
# of Tank
Elements
Tank Element
RaƟng
W/V
G4TB
G4CB
G4RTB
G4RSTB
G4STB
G4TB2
G4CB2
G4RTB2
G4RSTB2
G4STB2
211
ELECTRICAL RATING TABLE
1600V/120V
1450V/120V
120
120
13.8 1650 2 1 150/60
50/6012.5 1500
G4 TEA BREWERS
Bekijk gratis de handleiding van Wilbur Curtis G4TB, stel vragen en lees de antwoorden op veelvoorkomende problemen, of gebruik onze assistent om sneller informatie in de handleiding te vinden of uitleg te krijgen over specifieke functies.
Productinformatie
| Merk | Wilbur Curtis |
| Model | G4TB |
| Categorie | Niet gecategoriseerd |
| Taal | Nederlands |
| Grootte | 3681 MB |




