Wesco 260207 handleiding
Handleiding
Je bekijkt pagina 4 van 9

Page4of9
Folding Handle Scissors Lift Table
(Part # 260207 & 260208)
Instruction Manual
ATTENTION: TO INSURE SAFE AND EASY USE OF YOUR SCISSORS LIFT TABLE,
READ THESE INSTRUCTIONS ENTIRELY BEFORE USING.
6. TROUBLE SHOOTING
No
Problem Causes Solutions
1
The table cannot be raised
or reach the max. height
- Steel Ball (23) of the check-valve is
not closed down
- Firing pin (28) withstands the steel
ball (16)
- Short of hydraulic oil
- Clean the valve opening and change the steel
ball (23).
- Adjust the tension rate of the steel wire rope to
set firing pin at suitable place, and add or fill
lubricant to the pin roll(30)
- Add enough hydraulic oil.
2
The table rises, then
descends
- Steel ball (23, 24, 16) of the check-
valve is not closed down
- Firing pin (28) withstands the steel
ball (16)
- Clean the valve opening and change the steel
ball (23) (24) (16).
- Adjust the tension rate of the steel wire rope to
make firing pin at suitable place, and add or fill
lubricant to the pin roll(30)
3
The table does not descend
-The travel of the firing pin (28) is not
enough to open the steel ball (16).
- Adjust the tension rate of the steel wire rope to
make firing pin
4
Oil leakage at firing pin. - The o-ring (29) is damaged.
- Change the o-ring (29)
5
Oil leakage at pump (2),
Pup core (5) and piston rod
(44)
- The seal rings (1, 3, 47, 48) are
damaged.
- Change the seal rings (1, 3, 47, 48).
NOTE: DO NOT ATTEMPT TO REPAIR THE SCISSOR TABLE UNLESS YOU ARE TRAINED AND
AUTHORIZED TO DO SO.
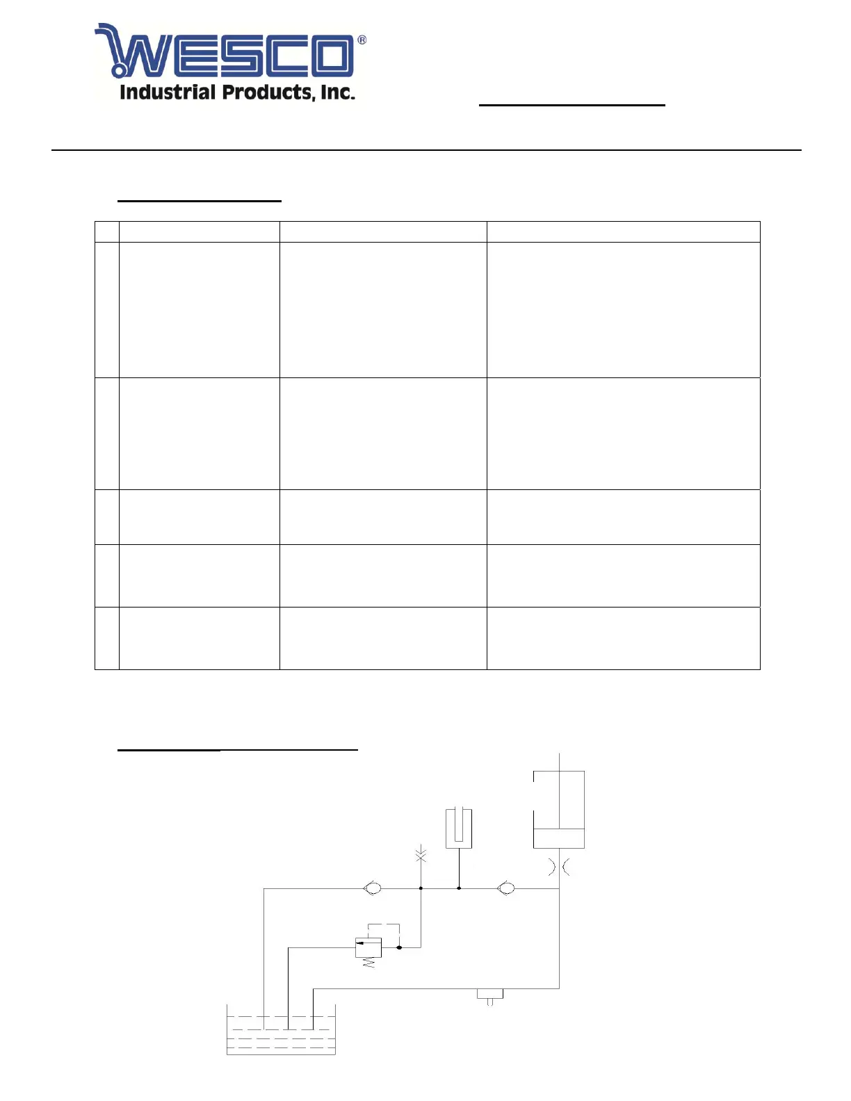
7. HYDRAULIC SYSTEM DIAGRAM
Oil Pump
Working
Cylinder
One-Way Valve
Safety Valve
Oil Reservoi
r
Throttle Valve
One-Way
Valve
Unloading Valve
Bekijk gratis de handleiding van Wesco 260207, stel vragen en lees de antwoorden op veelvoorkomende problemen, of gebruik onze assistent om sneller informatie in de handleiding te vinden of uitleg te krijgen over specifieke functies.
Productinformatie
| Merk | Wesco |
| Model | 260207 |
| Categorie | Niet gecategoriseerd |
| Taal | Nederlands |
| Grootte | 2097 MB |







