Wamsler K 148 handleiding
Handleiding
Je bekijkt pagina 55 van 120

55
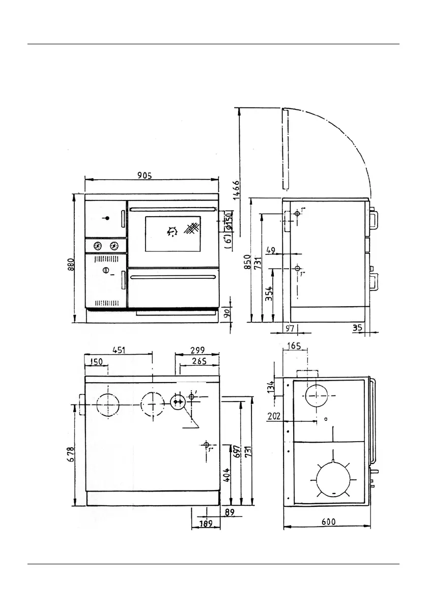
5.4 Dimensional drawing
flow
return
flow 1”
return
heat exchanger con-
nection for tAs 3/8”
back wall of stove
We reserve the right to make changes which relate to technical advances and / or to an improve-
ment in quality. We accept no liability for
printing errors and changes which occur after printing.
Bekijk gratis de handleiding van Wamsler K 148, stel vragen en lees de antwoorden op veelvoorkomende problemen, of gebruik onze assistent om sneller informatie in de handleiding te vinden of uitleg te krijgen over specifieke functies.
Productinformatie
| Merk | Wamsler |
| Model | K 148 |
| Categorie | Niet gecategoriseerd |
| Taal | Nederlands |
| Grootte | 17370 MB |







