Vimar ELVOX 6680/V04 handleiding
Handleiding
Je bekijkt pagina 6 van 40

6/40
6680
7
13
1
CHCH CH 6S53
7
4
3
2
5
6
10
8
9
12
11
21 V
V1
M
V3
V2
6E
6
6S
6P
C
A
1
AU
3
5
2
V3
CH
CN1 CN2
+
+D
+A
-
CN1
V1
M
V2
M
CH 6S 5321 V
PRI
V1M1
3AUM2V2
1
C2 2
A
B
+
-
S76-8AM+T 015 S1 C1
D
C
L1
A
7
B
+T
M
V
8
CT
3
4
6
CH
7
2
1
5
6
3
4
12
10
11
8
9
M
13
V
C2
E
E
E
C2
ELVOX
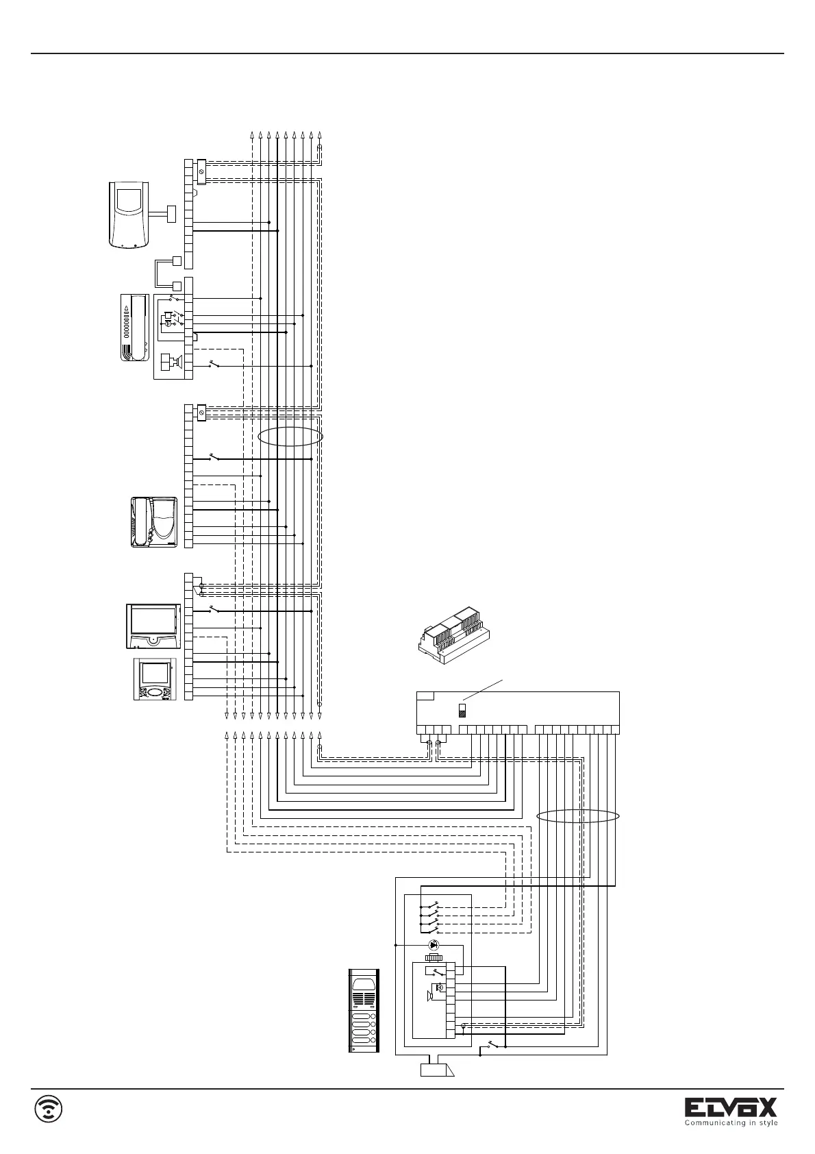
"SOUND SYSTEM" SINGLE AND MULTIPLE RESIDENCE VIDEO DOOR ENTRY SYSTEM WITH POWER SUPPLY
TYPE 6680 AND WITHOUT CONVERSATION PRIVACY
MONITOR CABLE RISER
B/W MONITOR
type 6341
POWER SUPPLY
type 6680
N.B.
In the event of buzzing on the audio
line, move the switching module
"A-B" located under the cover to
position "A".
Mains
A- Video entrance panel
1200, 1300, 3300, 8000, 8100
PATAVIUM and letter box 2550/301-302 series
B- Additional door lock button
C- 12V~ electric lock
D- Camera with speech unit
type 0559, 559A, 559B, 559G, 0570,
570G, 559C and 570C+930A
Note: For the connection of camera type 559A
and 559B see variation 16.
E- Outdoor call push-button
L1- Led module for entrance panel
(10 module LED max.)
30 module LED con Art. M832
40 module LED con Art. 0832/030
B/W MONITOR
type 6020 +
type 6200 +
type 6145
Connect 75 Ohm resistor (sup-
plied) to the last monitor, between
terminals V2-M.
*
*
COLOUR
MONITOR
type 6023 +
type 6200 +
type 6145
COLOUR MONITOR
type 6351
CABLE
type 0061/001...
type 0061/003...
COLOUR
MONITOR
type 6620
type 662A
type 6720
Note: Power supply type 6680 can
power simultaneously two video
interphones type 6341, 6351,
6020, 6023 without the help of ad-
ditional power supplies.
COLOUR
MONITOR
type 7200
CABLE
type 0061/001...
type 0061/003...
Bekijk gratis de handleiding van Vimar ELVOX 6680/V04, stel vragen en lees de antwoorden op veelvoorkomende problemen, of gebruik onze assistent om sneller informatie in de handleiding te vinden of uitleg te krijgen over specifieke functies.
Productinformatie
| Merk | Vimar |
| Model | ELVOX 6680/V04 |
| Categorie | Niet gecategoriseerd |
| Taal | Nederlands |
| Grootte | 7131 MB |







