Videotec NXW handleiding
Handleiding
Je bekijkt pagina 14 van 64

MNVCNXW_2222_EN
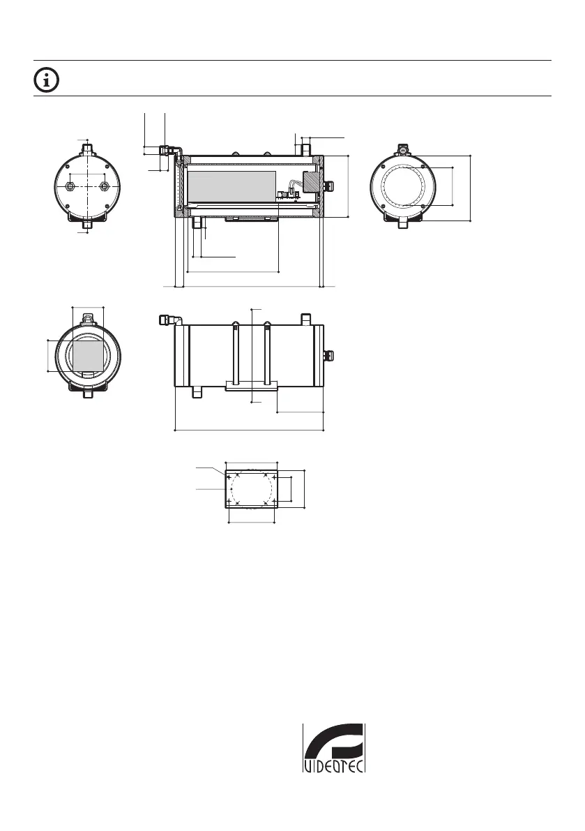
11 Technical drawings
The indicated measurements are expressed in millimetres.
78
130
Ø 101.5
M5
115
78
164
60
94
A
A
87
B - B
Ø 95
21 345
223
9
Ø 154
20
A - A
1/2" GAS
1/4" GAS
28
28
1/2" GAS
1/2" GAS
375
116.5
B
B
USABLE AREA
(WITH POWER SUPPLY)
USABLE
AREA
FIXING BASE
Fig. 12 NXW.
Headquarters Italy VIDEOTEC s.r.l.
Via Friuli, 6 - I-36015 Schio (VI) - Italy
Tel. +39 0445 697411 - Fax +39 0445 697414
Email: info@videotec.com
www.videotec.com
Bekijk gratis de handleiding van Videotec NXW, stel vragen en lees de antwoorden op veelvoorkomende problemen, of gebruik onze assistent om sneller informatie in de handleiding te vinden of uitleg te krijgen over specifieke functies.
Productinformatie
Merk | Videotec |
Model | NXW |
Categorie | Niet gecategoriseerd |
Taal | Nederlands |
Grootte | 5841 MB |