Vestil EHLT-TL-30180-4-58 handleiding
Handleiding
Je bekijkt pagina 13 van 22

Operator’s Manual 10/23/2023 EHLT-TL MANUAL
Table of Contents Copyright 2023 Vestil Manufacturing Co. Page 13 of 22
more information. The end-user is responsible for supplying the required ground-fault and short-circuit
protection on the supply. Motor overload protection is provided by a thermostat built into the motor.
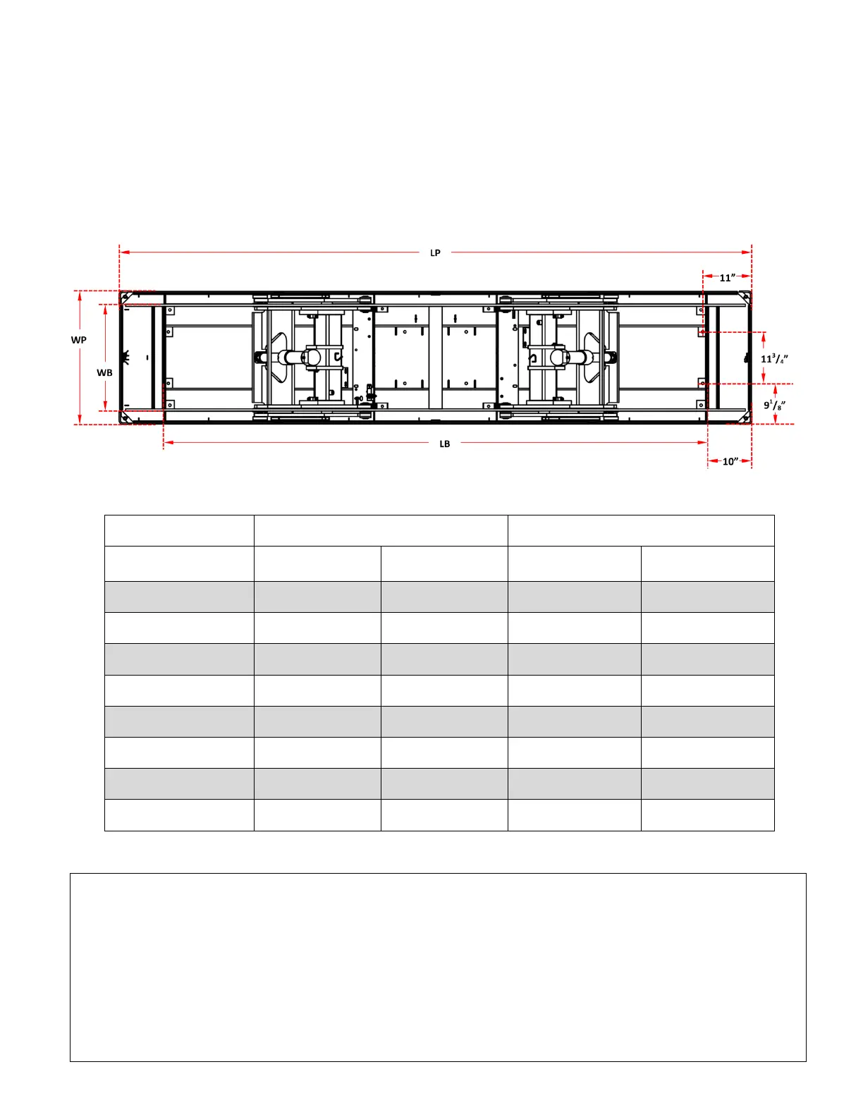
Installation Dimensions.
The bottom view of an EHLT-TL is shown. Dimensions listed for quick-ship items. Contact the factory for build-
to-order lift tables. When installing in a floor pit, provide a clearance of at least 1/4” but no more than 7/8”
clearance on all sides.
BASE DIMENSIONS
PLATFORM DIMENSIONS
MODEL
WB
(width of base)
LB
(length of base)
WP
(width of platform)
LP
(length of platform)
EHLT-TL-30144-2-46
30”
124”
30
3
/
8
”
144”
EHLT-TL-30144-4-46
30”
124”
30
3
/
8
”
144”
EHLT-TL-30180-2-58
30”
160”
30
3
/
8
”
180”
EHLT-TL-30180-4-58
30”
160”
30
3
/
8
”
180”
EHLT-TL-48144-2-46
30”
124”
48
3
/
8
”
144”
EHLT-TL-48144-4-46
30”
124”
48
3
/
8
”
144”
EHLT-TL-48180-2-58
30”
160”
48
3
/
8
”
180”
EHLT-TL-48180-4-58
30”
160”
48
3
/
8
”
180”
Installation.
1. The platform must be lowered and fully supported under its frame when moved. Support the lift table with
straps or forks that span the entire width or length of the base frame. Remove the 4x4 wood dunnage from
the base. Use care to avoid damaging the electrical and hydraulic components in the lift table.
2. Move the lift table into position.
3. Temporarily connect the power supply to the power cable supplied with the lift table. Raise the platform to
nearly its fully raised height. Rotate all 4 of the temporary maintenance props (2 on each leg set) forward
so that their free ends drop down onto the base frame. Lower the platform until the props slide up against
the end of the base frame. See diagram on following page.
Bekijk gratis de handleiding van Vestil EHLT-TL-30180-4-58, stel vragen en lees de antwoorden op veelvoorkomende problemen, of gebruik onze assistent om sneller informatie in de handleiding te vinden of uitleg te krijgen over specifieke functies.
Productinformatie
Merk | Vestil |
Model | EHLT-TL-30180-4-58 |
Categorie | Niet gecategoriseerd |
Taal | Nederlands |
Grootte | 5647 MB |