Vestil CBFC-500 handleiding
Handleiding
Je bekijkt pagina 6 van 13

Rev. 3/6/2017 CBFC, manual.doc
Copyright 2017 Vestil Manufacturing Co. Page 6 of 13
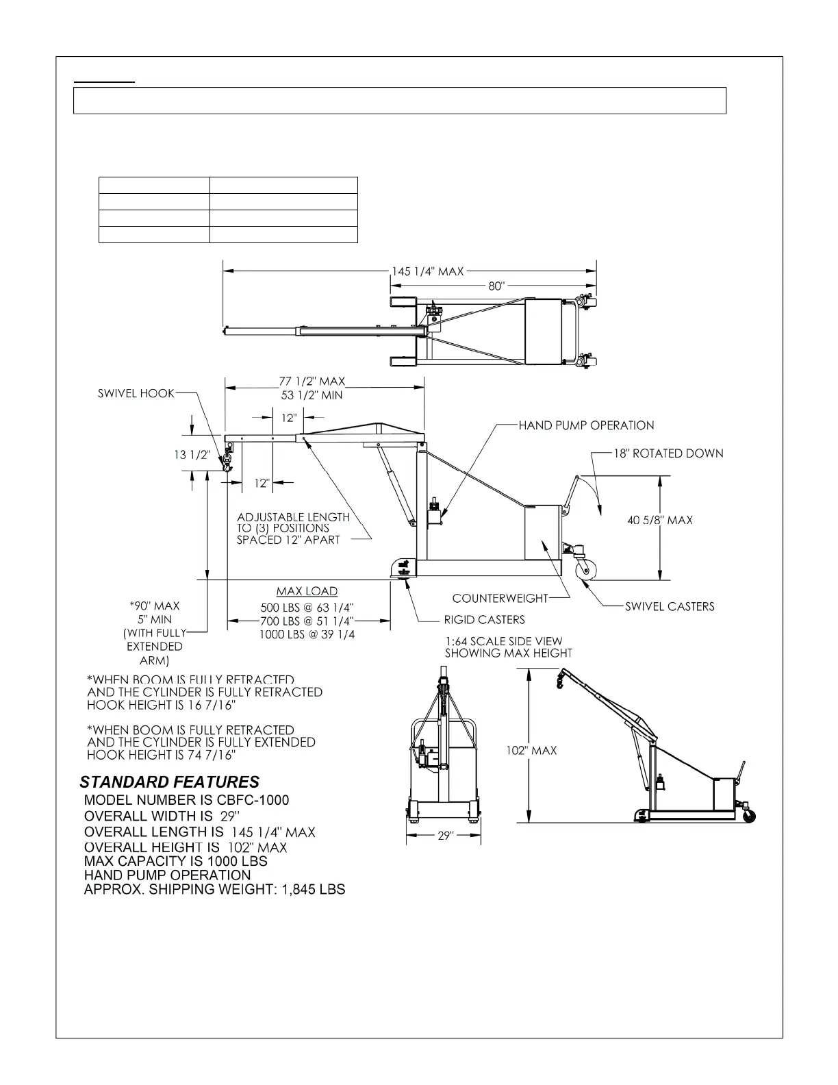
FIG 2B: CBFC-1000 rated loads for specified boom lengths
Although the outer boom has only one set of pin holes, the inner boom has 3 sets to allow boom length to be
adjusted. Boom length increases in 12 inch increments. Boom length determines the maximum rated load of the
crane, which decreases as boom length increases as indicated in the table below:
Boom length Maximum rated load
39
1
/
4
inches 1000 lb. (454.5kg)
51
1
/
4
inches 700 lb. (318.2kg)
63
1
/
4
inches 500 lb. (227.3kg)
NOTE:
DO NOT use the crane unless the inner and outer booms are securely pinned together.
Bekijk gratis de handleiding van Vestil CBFC-500, stel vragen en lees de antwoorden op veelvoorkomende problemen, of gebruik onze assistent om sneller informatie in de handleiding te vinden of uitleg te krijgen over specifieke functies.
Productinformatie
Merk | Vestil |
Model | CBFC-500 |
Categorie | Niet gecategoriseerd |
Taal | Nederlands |
Grootte | 3419 MB |