Valcom EZ-SP36 handleiding
Handleiding
Je bekijkt pagina 3 van 4

3 9471007
Setup
Information specific to your application will need
to be programmed into the EZ-SP36 using a
computer. The PC used in the programming
should be connected to the same subnet as the
EZ-SP36. Setup will be done using the IP
Solutions Setup Tool. Download the latest
version of the free IP Solutions Setup Tool from
the Valcom website at
www.valcom.com/vipsetuptool.
Technical Assistance
Assistance in troubleshooting is available from
the factory. Call (540) 563-2000 and press 1 for
Technical Support or via email at
support@valcom.com.
When requesting assistance, you should include all
available information. It is strongly suggested that you go
to the website and review the information at
www.valcom.com.
Valcom equipment is not field repairable. Valcom Inc.
maintains service facilities in Roanoke, VA. Should
repairs be necessary, attach a tag to the unit clearly
stating your company name, address, phone number,
contact person and the nature of the problem Sent the
unit to:
Valcom, Inc.
Repair & Return Dept.
5614 Hollins Road
Roanoke, VA 24019-5056
Warranty
Warranty information may be found on our website at
www.valcom.com/warranty
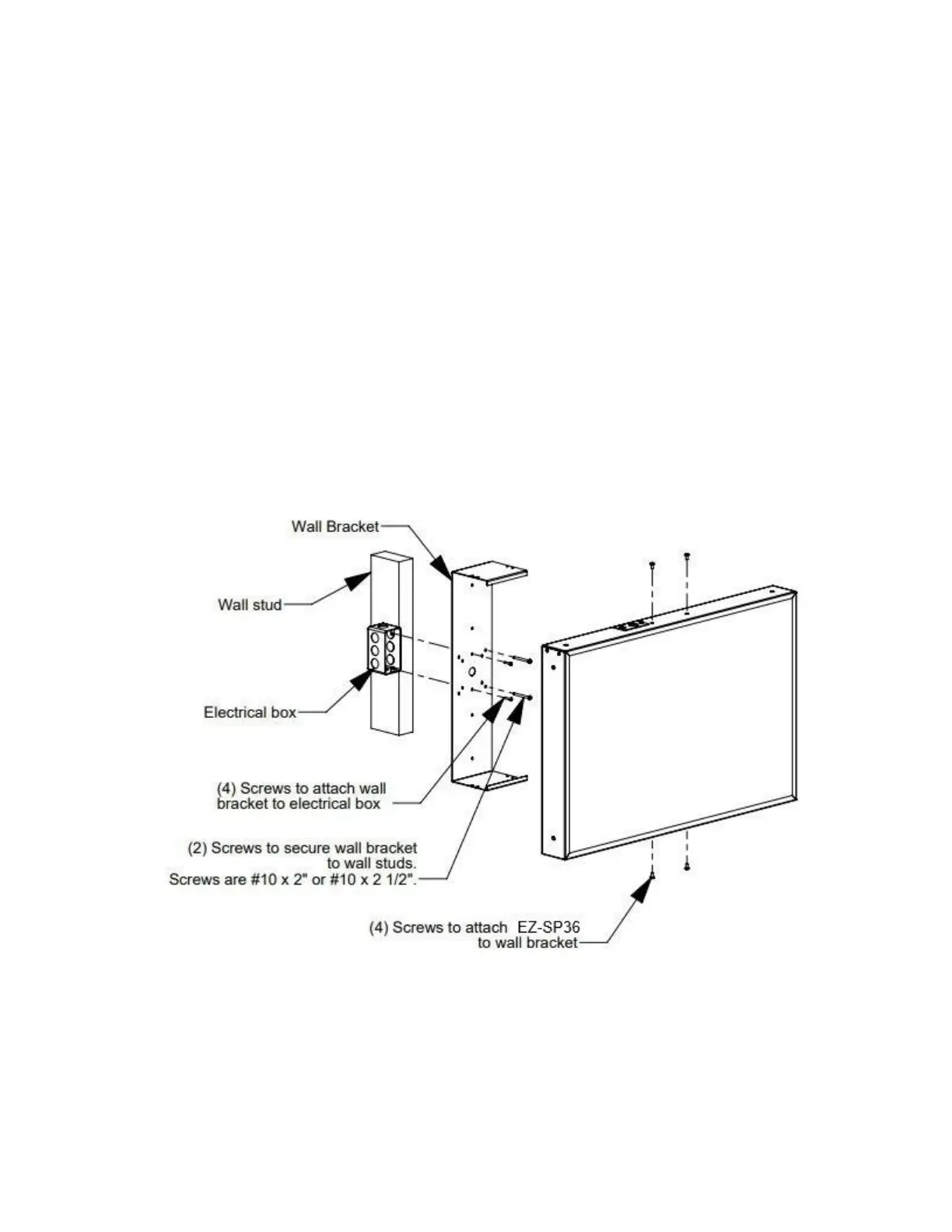
Figure 1: Wall or Surface Mounting
Bekijk gratis de handleiding van Valcom EZ-SP36, stel vragen en lees de antwoorden op veelvoorkomende problemen, of gebruik onze assistent om sneller informatie in de handleiding te vinden of uitleg te krijgen over specifieke functies.
Productinformatie
| Merk | Valcom |
| Model | EZ-SP36 |
| Categorie | Niet gecategoriseerd |
| Taal | Nederlands |
| Grootte | 972 MB |







