Uniprodo UNI_SAUNA_S6.0KW handleiding
Handleiding
Je bekijkt pagina 13 van 23

2524
03.06.2022
FR
3.3. UTILISATION DE L‘APPAREIL
1. Mettez l‘appareil en marche
a) Utilisez le bouton de réglage de l‘heure pour
mettre l‘appareil en marche.
b) Réglez le temps de fonctionnement souhaité en
tournant le bouton de réglage de l‘heure.
2. Réglez la température
a) Réglez la température souhaitée à l‘aide du
bouton de réglage de température
3. Patientez jusqu‘à ce que l‘appareil atteigne la
température souhaitée.
4. Une fois que vous avez ni d’utiliser l’appareil :
a) Si le minuteur est en cours de décompte, mettez-
le à « zéro ».
b) Si le compte à rebours est terminé et que le
minuteur est en position « zéro », attendez que
l‘appareil atteigne la température ambiante.
Protection contre la surchaue et fonctionnement du
bouton "RESET"
Si la température de l'appareil atteint la limite de
sécurité, l'alimentation sera coupée et l'appareil
s'éteindra pour éviter une surchaue. Pour redémarrer
l'appareil, refroidissez l'appareil et appuyez sur le
bouton "RESET". Il est également recommandé de
vérier si une surchaue n’a pas endommagé l’appareil.
3.4. NETTOYAGE ET ENTRETIEN
a) Attendez que l‘appareil ait atteint la température
ambiante avant d‘eectuer des travaux de
maintenance.
b) Pour nettoyer les diérentes surfaces, n‘utilisez
que des produits sans agents corrosifs.
c) Laissez bien sécher tous les composants après
chaque nettoyage avant de réutiliser l’appareil.
d) Il est conseillé de laver l’appareil uniquement avec
un chion mou et humide.
e) Pour le détartrage les détergents à cet eet sont
recommandés.
La mise en place des pierres chauantes dans le poêle
sauna
Les pierres doivent avoir un diamètre de 4 à 8 cm.
1. Avant de poser les pierres chauantes, assurez-
vous que l‘appareil n‘est pas en marche et que
sa température ne présente pas de risque de
brûlure.
2. Placez les pierres à l‘intérieur du poêle an que le
poids de la pierre à poser repose sur la pierre déjà
posée.
3. Veillez à ce que le poids des pierres ne repose pas
sur les appareils de chauage.
4. Placez les pierres lâchement les unes sur les
autres pour permettre à l‘air de circuler librement.
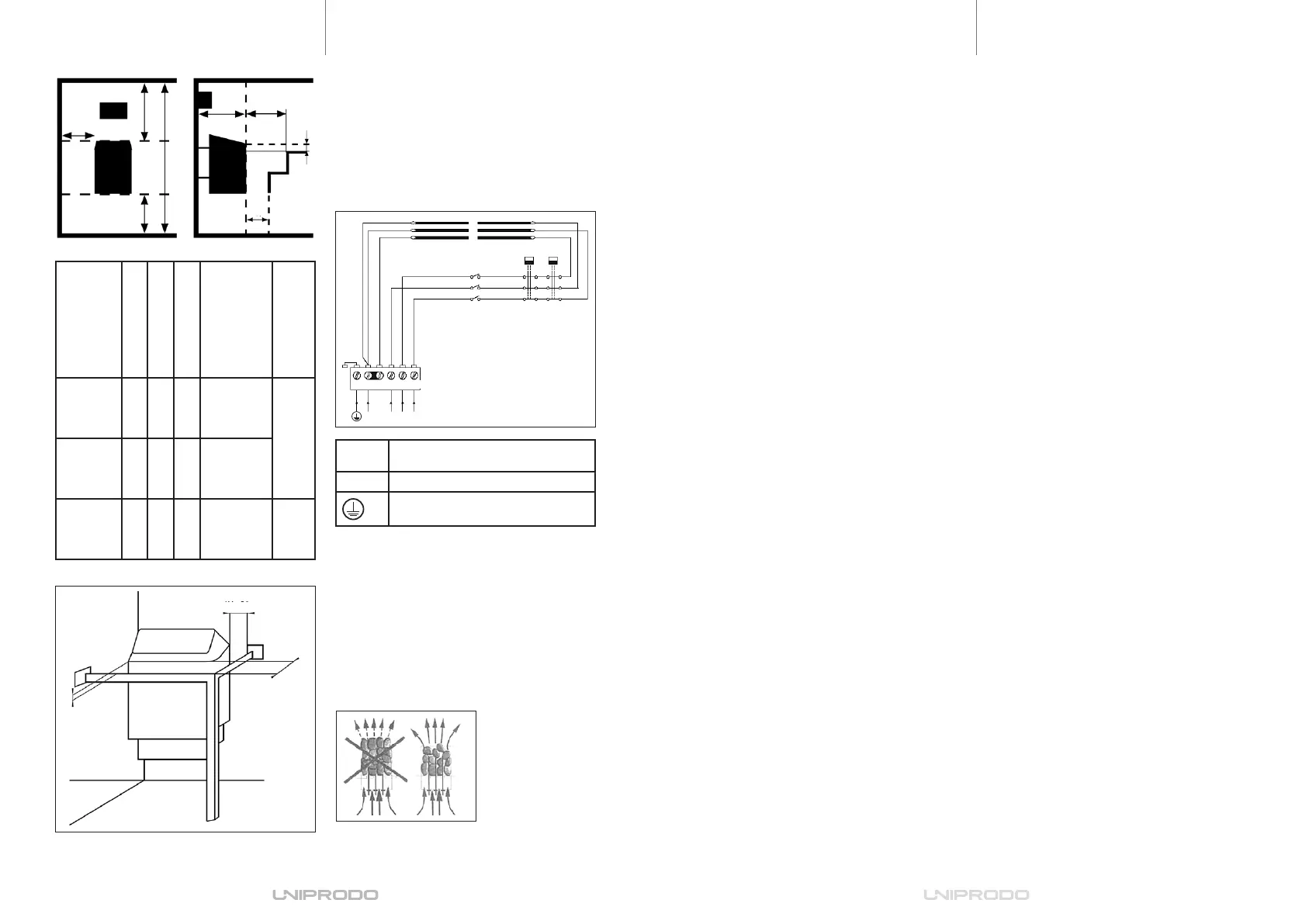
Raccordement à l‘installation électrique
Attention : Le poêle doit être branché par un électricien
professionnel.
• Le câble utilisé pour raccorder le poêle au secteur
doit être recouvert de caoutchouc REVE (ou
équivalent).
• La boîte de jonction doit être étanche à l‘eau et à
au moins 50 cm du sol.
• La boîte de jonction doit être hermétique et
imperméable, avec un trou de condensation avec
des parois de 7 mm d‘épaisseur.
L1 L2 L3
Ports de raccordement pour câbles sous
tension.
N
Ports de raccordement pour câbles neutres
Ports de raccordement de terre
N L1 L2 L3
1 2 3 4 5 6
1
2
3
Installation de garde-corps
Min 50mm
Min 50mm
Min 20mm
Modèle de
poêle
A min [cm]
B min [cm]
C min [cm]
Distance
minimale du
poêle [cm]
(Si à 500 mm
au-dessus
du sol, le
garde-corps
du couvercle
du poêle)
Câbles
[mm
2
]
(400V
3ph)
UNI_SAUNA
_B4.5W
UNI_SAUNA
_S4.5KW
8 28 10 8
5x1,5
UNI_SAUNA
_B6.0KW
UNI_SAUNA
_S6.0KW
10 28 15 15
UNI_SAUNA
_S8.0KW
UNI_SAUNA
_S9.0KW
13 30 20 20 5x2,5
A
C
2cm
min. 120cm
min. 190cm
min. 18cm
X
X
B
5cm
X – Capteur
FR
Bekijk gratis de handleiding van Uniprodo UNI_SAUNA_S6.0KW, stel vragen en lees de antwoorden op veelvoorkomende problemen, of gebruik onze assistent om sneller informatie in de handleiding te vinden of uitleg te krijgen over specifieke functies.
Productinformatie
Merk | Uniprodo |
Model | UNI_SAUNA_S6.0KW |
Categorie | Niet gecategoriseerd |
Taal | Nederlands |
Grootte | 3868 MB |