Handleiding
Je bekijkt pagina 16 van 76

TEC_TM_009 REV. L_EN
01/02/2025
Page 16 of 76
TRUE RESIDENTIAL
®
#212530
PRIOR TO INSTALLATION
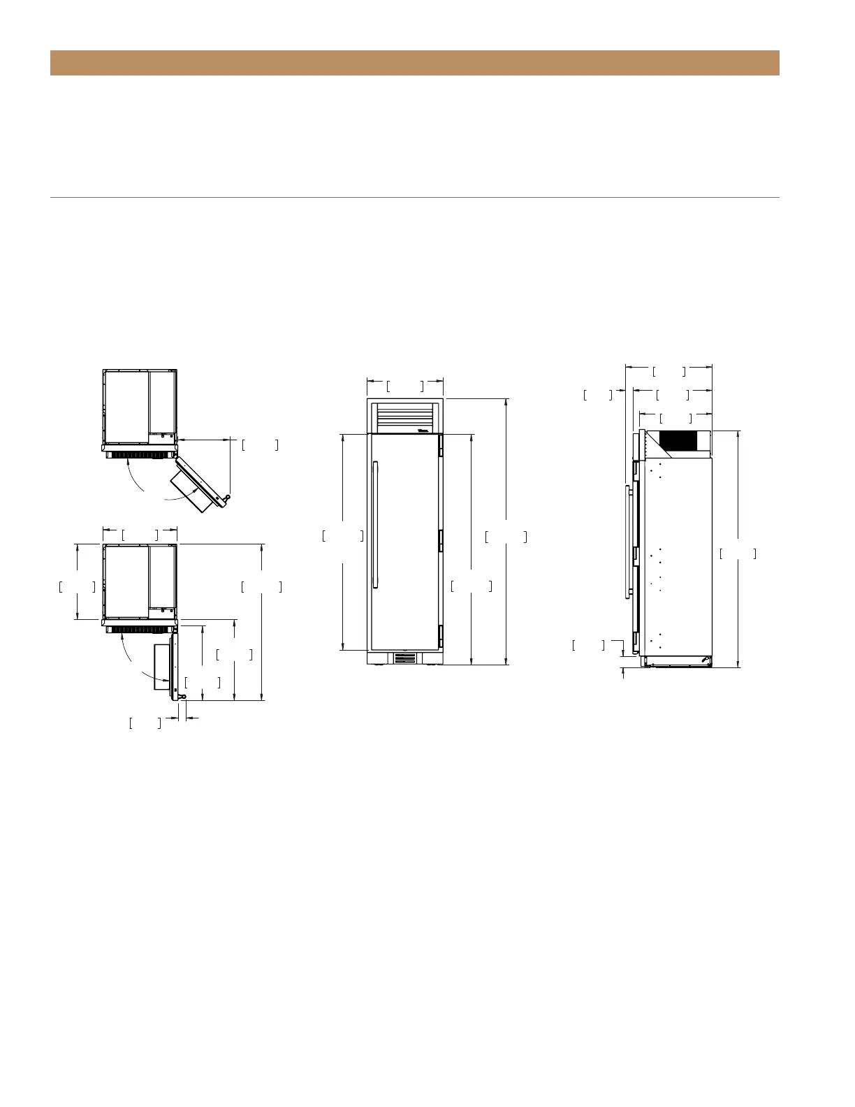
TR-24 – TOP VIEW
PLAN VIEWS
TR-24 – FRONT VIEW TR-24 – SIDE VIEW
NOTE: Dimensions may vary by ± 1/8" (3.2 mm)
67 29/32"
1725mm
DOOR
HEIGHT
83 15/16"
2132mm
24"
610mm
72 5/8"
1845mm
3 15/16"
100mm
2 19/32"
66mm
27 15/16"
710mm
25 25/32"
655mm
30 17/32"
776mm
83 15/32"
2120mm
23 5/16"
592mm
23 25/32"
604mm
49 1/4"
1251mm
23 15/32"
596mm
25 15/32"
647mm
2 1/2"
64mm
90°
135°
16 13/32"
417mm
TR-24REF-R-SS-A
ERROR!:Part Number
67 29/32"
1725mm
DOOR
HEIGHT
83 15/16"
2132mm
24"
610mm
72 5/8"
1845mm
3 15/16"
100mm
2 19/32"
66mm
27 15/16"
710mm
25 25/32"
655mm
30 17/32"
776mm
83 15/32"
2120mm
23 5/16"
592mm
23 25/32"
604mm
49 1/4"
1251mm
23 15/32"
596mm
25 15/32"
647mm
2 1/2"
64mm
90°
135°
16 13/32"
417mm
TR-24REF-R-SS-A
ERROR!:Part Number
67 29/32"
1725mm
DOOR
HEIGHT
83 15/16"
2132mm
24"
610mm
72 5/8"
1845mm
3 15/16"
100mm
2 19/32"
66mm
27 15/16"
710mm
25 25/32"
655mm
30 17/32"
776mm
83 15/32"
2120mm
23 5/16"
592mm
23 25/32"
604mm
49 1/4"
1251mm
23 15/32"
596mm
25 15/32"
647mm
2 1/2"
64mm
90°
135°
16 13/32"
417mm
TR-24REF-R-SS-A
ERROR!:Part Number
Bekijk gratis de handleiding van True TR-24FRZ-R-SS-A, stel vragen en lees de antwoorden op veelvoorkomende problemen, of gebruik onze assistent om sneller informatie in de handleiding te vinden of uitleg te krijgen over specifieke functies.
Productinformatie
| Merk | True |
| Model | TR-24FRZ-R-SS-A |
| Categorie | Vriezer |
| Taal | Nederlands |
| Grootte | 23621 MB |







