Handleiding
Je bekijkt pagina 14 van 16

14
14. DIGITAL PROCESSOR FILTERING
14.1. Single-Amplifier Drive (Factory-Setting)
Although the speaker can be operated without a digital processor, it is recommended that the speaker be
used in conjunction with a digital processor for better sound reproduction. Recommended setting parameters
are as follows.
14.2. Bi-Amplifier Drive
Digital processing is required after the drive system has been changed to bi-amplifier operation. By inputting
an optimum signal to the woofer and tweeter using the digital processor, a high sound quality output can be
realized. Recommended setting parameters are as follows.
Channel Gain Polarity
Filter
Delay
TYPE
Frequency Gain Q
LOW 0 dB Normal HPF (12 dB) 60 Hz
–
1.226 0 ms
PEQ 63 Hz 2 dB 1.707
PEQ 1.5 kHz
-
5 dB 0.700
LPF (12 dB) 4.0 kHz
–
0.500
HIGH
-
2 dB Normal HPF(12 dB) 4.0 kHz
–
0.707 0.125 ms
PEQ 4.0 kHz 3 dB 2.997
PEQ 6.3 kHz
-
3 dB 1.512
PEQ 16.0 kHz 5 dB 1.414
TYPE Frequency Gain Q
HPF (12 dB) 60 Hz
–
1.226
PEQ 16 kHz 5 dB 1.414
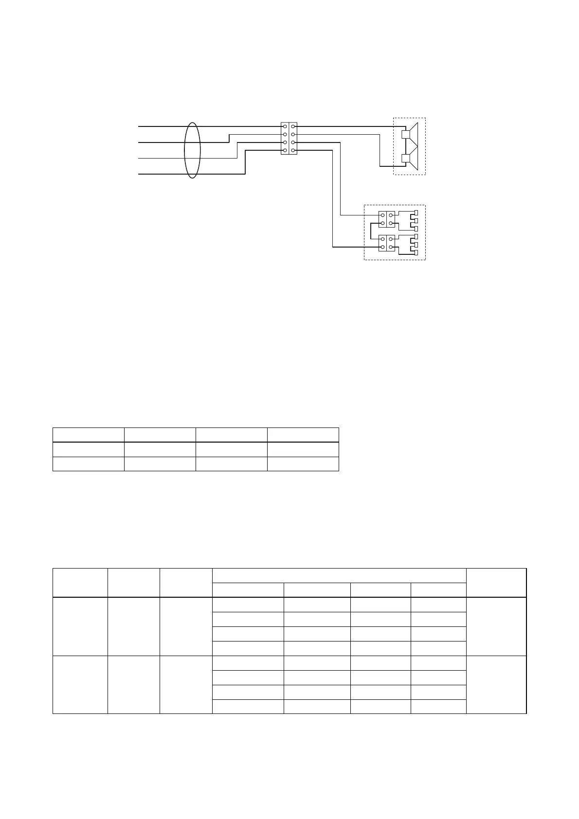
13. INTERNAL WIRING DIAGRAM FOR THE BI-AMPLIFIER DRIVE SYSTEM
The diagram below is an internal wiring after the speaker's drive system is changed to a bi-amplifier system.
x 4
x 4
Speaker cord
LOW +
LOW –
HIGH +
HIGH –
Green
Black
Red
White
Tweeters
Woofers
Bekijk gratis de handleiding van Toa SR-S4SWP, stel vragen en lees de antwoorden op veelvoorkomende problemen, of gebruik onze assistent om sneller informatie in de handleiding te vinden of uitleg te krijgen over specifieke functies.
Productinformatie
Merk | Toa |
Model | SR-S4SWP |
Categorie | Speaker |
Taal | Nederlands |
Grootte | 1313 MB |
Caratteristiche Prodotto
Kleur van het product | Wit |
Gewicht | 16000 g |
Breedte | 160 mm |
Diepte | 303 mm |
Hoogte | 892 mm |