Stiebel Eltron FCR 21/60 handleiding
Handleiding
Je bekijkt pagina 9 van 100

DEUTSCH
www.stiebel-eltron.com FCR 21 | 9
INSTALLATION
Technische Daten
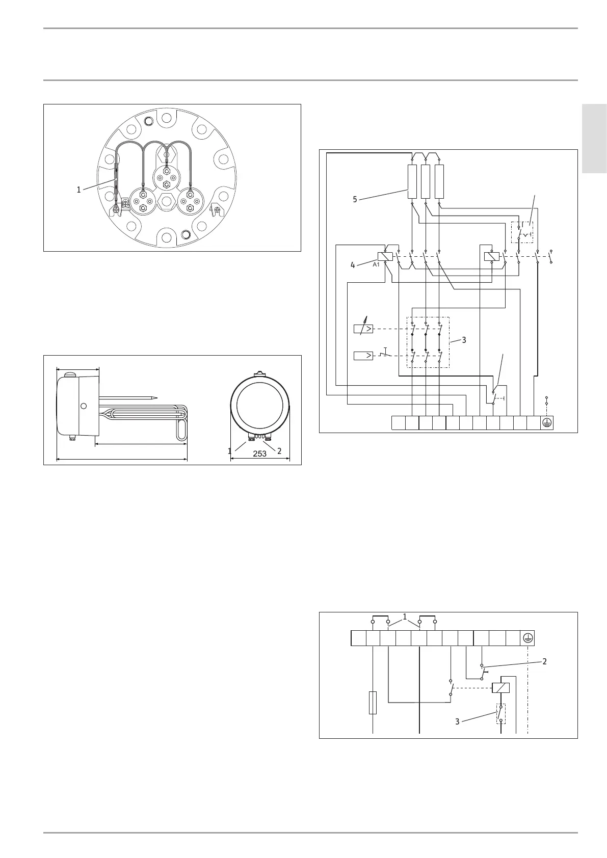
1
26�02�09�0003
1 Korrosionsschutz-Widerstand 390 Ω
f Verbinden Sie die Heizkörper über den Korrosionsschutz-Wi-
derstand mit dem Speicherbehälter.
14. Technische Daten
14.1 Maße, Eintauchtiefen und Anschlüsse
253
565
185
400
D0000058402
21
1 Durchführung elektrische Leitungen (groß) für
Spannungsversorgung
2 Durchführung elektrische Leitungen (klein) für Steuerspan-
nung (verschlossen)
14.2 Elektroschaltpläne und Anschlüsse
14.2.1 FCR 21/60, Bestellnummer 071330
L1 L2 L3 N456789
1
II
3
I
2
122232
112131
642
1 3 5 7
8
A2
A1
642
1 3 5 7
8A2
A1
ϑ
ϑ
L1‘
D0000065441
2
1
4
5
3
1 Leistungsschalter im Schaltraum
2 Taster für Schnellaufheizung
3 Regler-Begrenzer-Kombination
4 Schaltschütz
5 Heizkörper 2 kW
Anschlussbeispiele Zweikreis-Betrieb Einzählermessung:
Bei den folgenden Anschlussbeispielen ist die Leistung der
Schnellaufheizung während der Hochtarifzeit nach dem Schräg-
strich angegeben.
f Beachten Sie die Stellung des Leistungsschalters im
Schaltraum.
Schalterstellung I: 2/4kW, 1/N/PE ~ 230V
Schalterstellung II: 4/4kW, 1/N/PE ~ 230V
L1‘
L1
L2
L3 N 4 5 6 7 8 9
D0000065552
3
2
1
1 Klemmbrücke
2 Taster für Schnellaufheizung
3 EVU-Kontakt
Bekijk gratis de handleiding van Stiebel Eltron FCR 21/60, stel vragen en lees de antwoorden op veelvoorkomende problemen, of gebruik onze assistent om sneller informatie in de handleiding te vinden of uitleg te krijgen over specifieke functies.
Productinformatie
| Merk | Stiebel Eltron |
| Model | FCR 21/60 |
| Categorie | Niet gecategoriseerd |
| Taal | Nederlands |
| Grootte | 16693 MB |







