Steinberg SBS-THE-600 handleiding
Handleiding
Je bekijkt pagina 29 van 49

56 57
Rev. 22.02.2022
Rev. 22.02.2022
b. Wycelować na pryzmat P (rys. c), nacisnąć F1 MEAS,
obrócić urządzenie, a następnie wycelować na (A0).
(rys. d)
c. Wciśnąć CODE aby sprawdzić współrzędne punktu
(A0). Wcisnąć DIST aby sprawdzić odległość do
punktu (A0).
d. Następnie nacisnąć F1 NEXT, aby przejść dalej.
Uwaga: Przed pomiarem przesunięcia, należy
najpierw zdeniować wysokość instrumentu/
wysokość celu.
B. EKSCENTR ODLEGŁOŚCI
Jeśli promień drzewa lub jeziora jest znany, aby zmierzyć
odległość i współrzędne środka, należy wprowadzić znaną
wielkość HD jak na poniższym wykresie i zmierzyć (P1)
w trybie przesunięcia odległości. Odległość i współrzędne
(P0) zostaną wyświetlone na ekranie.
Jeżeli mierzony punkt (P1) znajduje się przed punktem,
który ma być pomierzony (P0), wartość ekscentru ma znak
dodatni, gdy jest dalej niż punkt (P0) ma wartość ujemną.
a. Wprowadzić wartość przesunięcia, nacisnąć ENT aby
potwierdzić (rys. d).
b. Wycelować na pryzmat P, wcisnąć MEAS (rys. e).
c. Wcisnąć CORD, aby sprawdzić współrzędne punktu
(A0). Wcisnąć DIST, aby sprawdzić odległość do
punktu A0.
d. Następnie wcisnąć F1 NEXT aby przejść dalej.
C. EKSCENTR PŁASZCZYZNY
Jeżeli punkt (P0) leży na krawędzi płaszczyzny, która nie
może być mierzona bezpośrednio przez tryb bez reektora,
należy zmierzyć trzy losowe punkty graniastosłupa (P1/P2/
P3) leżące na tej samej płaszczyźnie.
Następnie wycelować w punkt (P0). Urządzenie
automatycznie obliczy współrzędne.
P0 – punkt docelowy
P1, P2, P3 – losowe punkty graniastosłupa
a) Wycelować na P1 i nacisnąć F1 MEAS. Wycelować na
P2 /P3 i nacisnąć F1 MEAS (rys. e).
b) Obrócić urządzenie, wycelować w punkt (P0).
Wyświetli się odległość pomiędzy stacją a punktem
(P0) (rys. f).
c) Wcisnąć CORD, aby sprawdzić współrzędne punktu
(P0) i wcisnąć DIST, aby sprawdzić odległość (rys g).
d) Następnie wcisnąć F1 NEXT, aby przejść dalej.
UWAGA: w tym przypadku, urządzenie zostało wcześniej
przełączone na "tryb bezreektorowy". Nacisnąć F1 HT
z menu pomiaru współrzędnych, aby ustawić wysokość
urządzenia jako 0.
D. EKSCENTR KOLUMNY
Przesunięcie kolumny jest powszechnie stosowane do
pomiaru środka kolumny. Jak pokazano na rysunku,
załóżmy, że punkt (P0) jest środkiem kolumny.
Punkt (P1) jest punktem przecięcia prostej (P0) i łuku,
natomiast (P2) i (P3) są lewym i prawym punktem końcowym
średnicy cylindrycznej. Urządzenie automatycznie obliczy
współrzędne 3D punktu P.
a) Wycelować na punkt (P1) i nacisnąć F1 MEAS (rys. c).
Wycelować w punkt (P2) i nacisnąć F4 SET; wycelować
w punkt (P3) i nacisnąć F4 SET. (rys. f).
b) Wcisnąć CORD, aby sprawdzić współrzędne punktu
(P0) i wcisnąć DIST, aby sprawdzić odległość (rys g).
c) Następnie wcisnąć F1 NEXT, aby przejść dalej.
F2 S.O.:
Wyodrębnianie SD/VD/HD w prosty sposób za pomocą
menu wyodrębniania N6.
a) Wprowadzić wartość tyczenia 2.0m, wcisnąć F4 ENT,
aby potwierdzić.
b) Obrócić urządzenie, aby upewnić się, że odczyt HR
jest zgodny z odczytem tyczenia HR.
c) Poprosić o przesunięcie pryzmatu układu do pola
widzenia. Wycelować w pryzmat i wcisnąć F2 MEAS,
wynik będzie pokazany jak na rysunku (e).
d) dHD= rzeczywiste HD - tyczenie HD = -6.8265m.
Oznacza to, że pryzmat układu powinien oddalić
się od sprzętu o 6,8265m. Po przesunięciu należy
nacisnąć F2 MEAS, aby potwierdzić.
F3 FILE:
Instrukcja obsługi dla tego menu jest taka sama jak dla
trybu pomiaru kąta. Użytkownicy mogą dowolnie zmieniać
bieżący plik, tworzyć nowe pliki, zmieniać ich nazwy,
usuwać lub eksportować.
UWAGA: Przy otwieraniu plików przez txt, istnieją pewne
różnice między 600.txt i .dat.
6. POMIAR WSPÓŁRZĘDNYCH
Gdy aktualnym trybem jest tryb pomiaru kąta lub
odległości, nacisnąć CORD, aby przejść do trybu pomiaru
współrzędnych.
Użytkownik może wprowadzić współrzędne zajmowanego
punktu w standardowym formacie CASS: "Nazwa punktu;
Kod; E, N, Z". Można wprowadzić maksymalnie 200
punktów.
6.1. KLAWISZE FUNKCYJNE
W tym menu współrzędnych użytkownicy mogą mierzyć
lub wytyczać punkty.
Należy wybrać lub utworzyć nowy prol, aby zapisać
współrzędne, ustawić zajęty punkt i celownik wsteczny,
wprowadzić wysokość instrumentu i wysokość celu.
Dlatego w tym rozdziale nie zostaną wprowadzone
przyciski funkcyjne według kolejności stron.
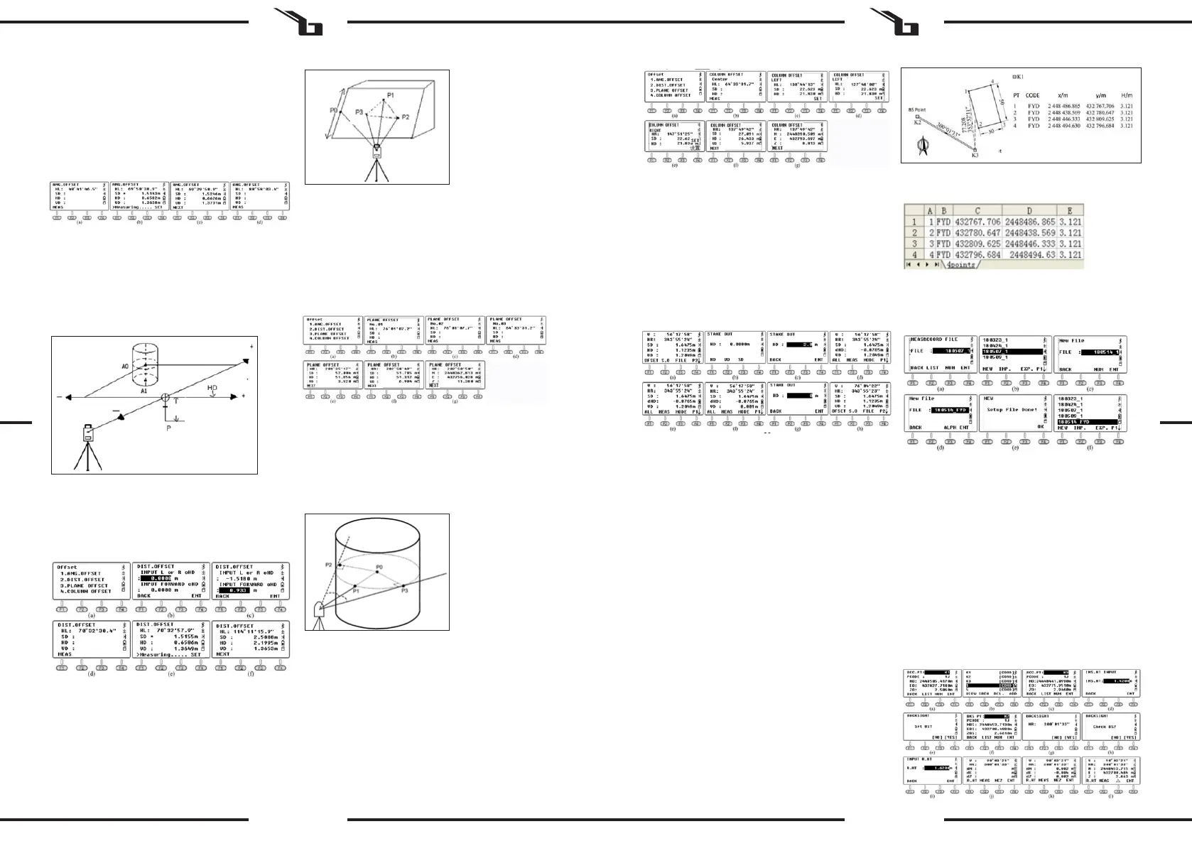
Poniższy budynek posłuży jako przykład do opisania
kroków menu tyczenia. Współrzędne zajętego punktu K1/
K2/K3, jak pokazano na rysunku, zostały zaimportowane
do urządzenia. Należy założyć, że sprzęt został osadzony
w punkcie K3, a K2 jest punktem obserwacji wstecznej.
W projekcie należy określić położenie punktów tyczenia
1/2/3/4 w terenie.
Edycja prolu tyczenia na komputerze: Wprowadzić żądane
współrzędne dla punktów 1/2/3/4, zapisać je jako "4points.
csv".
F3 FILE/P3:
Wyświetlanie listy plików lub tworzenie nowego pliku:
Nacisnąć F3 FILE, F2 LIST i F1 NEW, aby utworzyć nowe
zadanie (rys. c). Końcówkę nazwy prolu określić jaki FYD
(rys. d) Nacisnąć F4 ENT aby potwierdzić.
F3 OCC, ZAJMOWANY PUNKT/P2:
Wcisnąć F3 OCC, aby wejść na stronę ustawień dla punktów
zajętych (rys. a), pokaże ona współrzędne ostatnio zajętego
punktu. Wcisnąć F2 LIST, aby wejść na listę punktów (rys.b).
Na liście punktów jako pierwszy pojawi się punkt ze znanego
pliku, następnie kolejny punkt z pliku bieżącego. Przesunąć
kursor na K3 i wcisnąć ENT. Wyświetlą się szczegóły
dotyczące tego punktu, w tym kody i współrzędne. Wcisnąć
F4 ENT i wprowadzić wysokość instrumentu, wcisnąć
ponownie F4 ENT, aby wejść na stronę ustawień wstecznego
pomiaru (rys. e). Nacisnąć klawisz F4 YES, aby wyświetlić
ostatni punkt pomiaru wstecznego (rys. f). Punkt ten powinien
być taki sam jak punkt poprzednio ustawiony. Nacisnąć F4
ENT, aby wejść na stronę, która jest pokazana jako rysunek
g. Odczyt poziomy HR powinien być równy azymutowi
z punktu K3 do K2, który można obliczyć z punktu zajętości
K3 i punktu tylnego K2. Obrócić urządzenie, wycelować na
pryzmat K2, nacisnąć F4 YES, aby ustawić kąt poziomy równy
azymutowi z punktu K3 do punktu K2 (rys. h).
PL PL
Bekijk gratis de handleiding van Steinberg SBS-THE-600, stel vragen en lees de antwoorden op veelvoorkomende problemen, of gebruik onze assistent om sneller informatie in de handleiding te vinden of uitleg te krijgen over specifieke functies.
Productinformatie
| Merk | Steinberg |
| Model | SBS-THE-600 |
| Categorie | Niet gecategoriseerd |
| Taal | Nederlands |
| Grootte | 19988 MB |







