Sime Murelle Equipe 220 BOX ErP handleiding
Handleiding
Je bekijkt pagina 5 van 72

5
ES
ENG
ES
EN
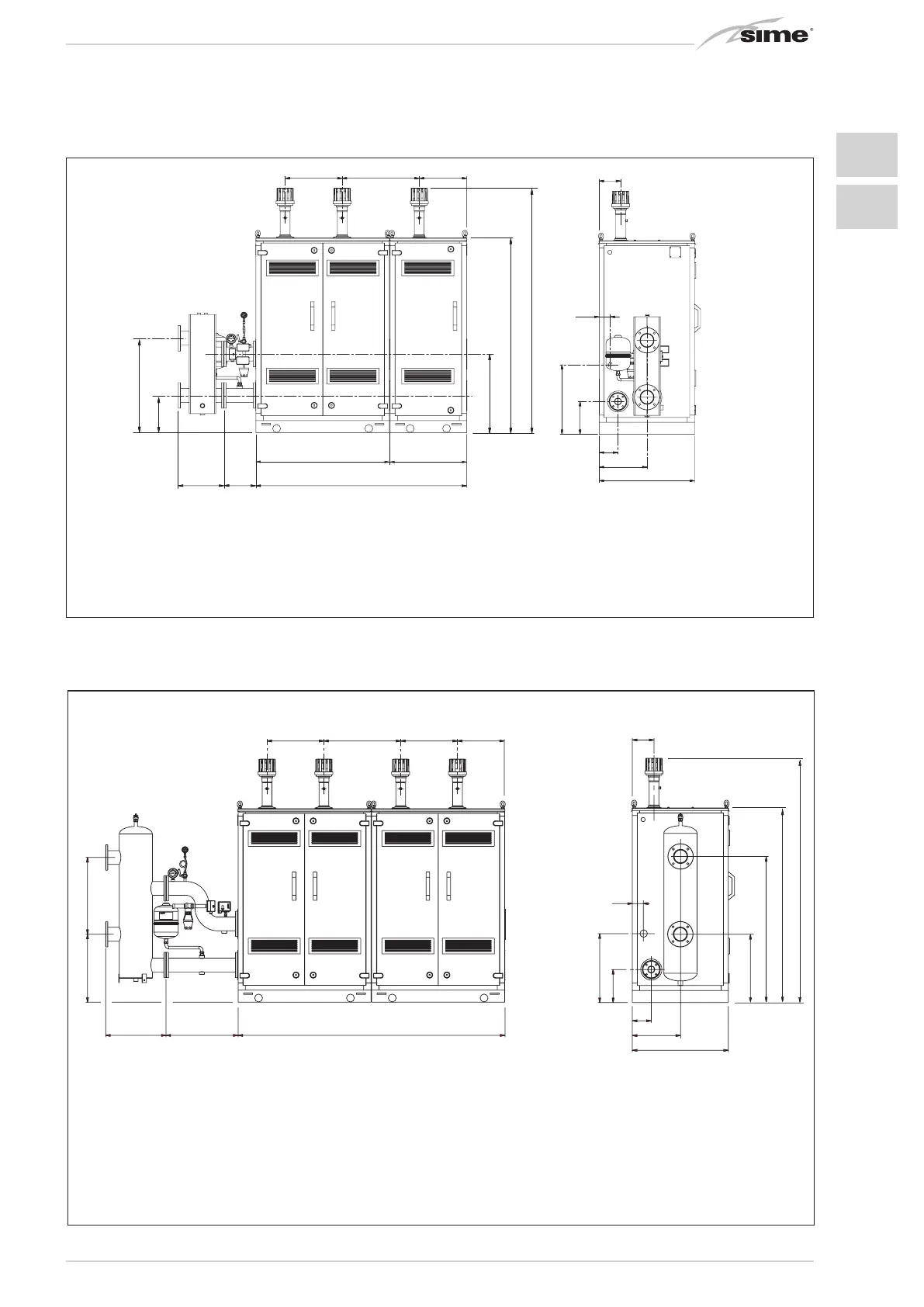
1.2.2 “MURELLE EQUIPE 330 BOX ErP” (fig. 1/a)
90
180
156
396
790
567
272
S3
G
MURELLE EQUIPE 280-330 BOX ErP
648
1600
2010
390
630
470
1730
380
260
307
777
M
R
1100 630
Fig. 1/a
CONEXIONES
M Ida instalación (Brida PN6-DN100)
R Retorno instalación (Brida PN6-DN100)
G Gas (Brida PN6-DN50)
S3 Descarga agua de condensación ø 40
NOTA: Es obligatorio montar un separador hidráulico o intercambiador de placas.
El separador hidráulico se suministra bajo pedido en el kit cód. 8101552 y los tubos
de conexión del separador hidráulico en el kit cód. 8101532. El montaje del sepa-
rador hidráulico está previsto del lado izquierdo, todavía existe la posibilidad de
montarlo del lado derecho desplazando las bridas ciegos de los colectores impul-
sión/retorno de la instalación.
1.2.3 “MURELLE EQUIPE 440 BOX ErP” (fig. 1/b)
Fig. 1/b
CONEXIONES
M Ida instalación (Brida PN6-DN100)
R Retorno instalación (Brida PN6-DN100)
G Gas (Brida PN6-DN50)
S3 Descarga agua de condensación ø 40
NOTA: Es obligatorio montar un separador hidráulico o intercambiador
de placas. El separador hidráulico se suministra bajo pedido en el kit cód.
8101553 y los tubos de conexión del separador hidráulico en el kit cód.
8101533. El montaje del separador hidráulico está previsto del lado izquier-
do, todavía existe la posibilidad de montarlo del lado derecho desplazando las
bridas ciegos de los colectores impulsión/retorno de la instalación.
180
790
396
156
567
90
272
562
1197
S3
M
R
G
1600
2010
2830
590
500
390
630
470
630
470
635
562
MURELLE EQUIPE 370-440 BOX ErP
180
790
396
156
567
90
272
562
1197
S3
M
R
G
1600
2010
2200
590
500
390
470
630
470
635
562
MURELLE EQUIPE 550 BOX ErP
Bekijk gratis de handleiding van Sime Murelle Equipe 220 BOX ErP, stel vragen en lees de antwoorden op veelvoorkomende problemen, of gebruik onze assistent om sneller informatie in de handleiding te vinden of uitleg te krijgen over specifieke functies.
Productinformatie
Merk | Sime |
Model | Murelle Equipe 220 BOX ErP |
Categorie | Niet gecategoriseerd |
Taal | Nederlands |
Grootte | 10629 MB |