Sime Murelle Equipe 100-150 BOX ErP handleiding
Handleiding
Je bekijkt pagina 8 van 68

8
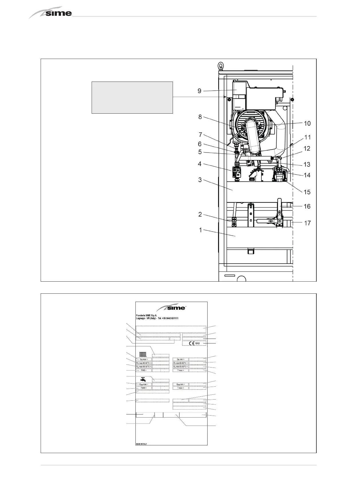
1.5 COMPONENTES PRINCIPALES (fig. 3)
Fig. 3
Codice/Code 8117010
Modello/Model MURELLE EQUIPE 100 BOX ErP
Matricola/Serial n. 9999999999
PAR 1 = 6 (G20) / 14 (G31)
PAR 2 = 9
LEGENDA
1 Colector retorno instalación
2 Grifo gas
3 Colector ida instalación
4 Válvula gas
5 Ventilador
6 Termostato seguridad 100°C
7 Sonda ida calefacción (SM)
8 Electrodo encendido
9 Panel de control
10 Electrodo detección
11 Transductor presión agua
12 Descarga módulo
13 Válvula seguridad 3,5 bar
14 Bomba instalación alta eficiencia
15 Válvula de retención
16 Grifo de descarga de tres vías
17 Colector gas
ATENCIÓN: Para acceder al panel de control (9) re-
tirar los dos tornillos que bloquean al soporte de
montaje y gire el panel hacia abajo.
MODELO
NÚMERO DE MATRÍCULA
AÑO DE CONSTRUCCIÓN
CONTENIDO DE AGUA CALDERA
CAUDAL TÉRMICA MAX
POTENCIA TÉRMICA MAX (80-60°C)
POTENCIA TÉRMICA MAX (50-30°C)
MAX PRESIÓN DE SERVICIO
CONTENIDO DE AGUA SANITARIA
CAUDAL TÉRMICA MAX SANITARIA
PRESIÓN SANITARIA MAX
CAUDAL SANITARIO ESPECÍFICO
TENSIÓN DE ALIMENTACIÓN
POTENCIA ELÉCTRICA ABSORBIDA
PAÍSES DE DESTINACIÓN
CATEGORÍA
TIPO
CÓDIGO
DIRECTIVA DE REFERENCIA
NÚMERO PIN
CAUDAL TÉRMICA MIN
POTENCIA TÉRMICA MIN (80-60°C)
POTENCIA TÉRMICA MIN (50-30°C)
TEMPERATURA MAX DE SERVICIO
CAUDAL TÉRMICA MIN SANITARIA
TEMPERATURA MAX DE SERVICIO SANITARIO
GRADO DE AISLAMIENTO ELÉCTRICO
CLASE NOx
CÓDIGO GAS COUNCIL NUMBER (UK)
CERTIFICACIÓN WRAS (UK)
TIPO DE GAS
PRESIÓN DE ALIMENTACIÓN
CLASIFICACIÓN
Fig. 3/a
1.6 PLACA DE DATOS TÉCNICOS (fig. 3/a)
Bekijk gratis de handleiding van Sime Murelle Equipe 100-150 BOX ErP, stel vragen en lees de antwoorden op veelvoorkomende problemen, of gebruik onze assistent om sneller informatie in de handleiding te vinden of uitleg te krijgen over specifieke functies.
Productinformatie
| Merk | Sime |
| Model | Murelle Equipe 100-150 BOX ErP |
| Categorie | Niet gecategoriseerd |
| Taal | Nederlands |
| Grootte | 9847 MB |







