Handleiding
Je bekijkt pagina 13 van 148

13
ENGLISH
NOTE
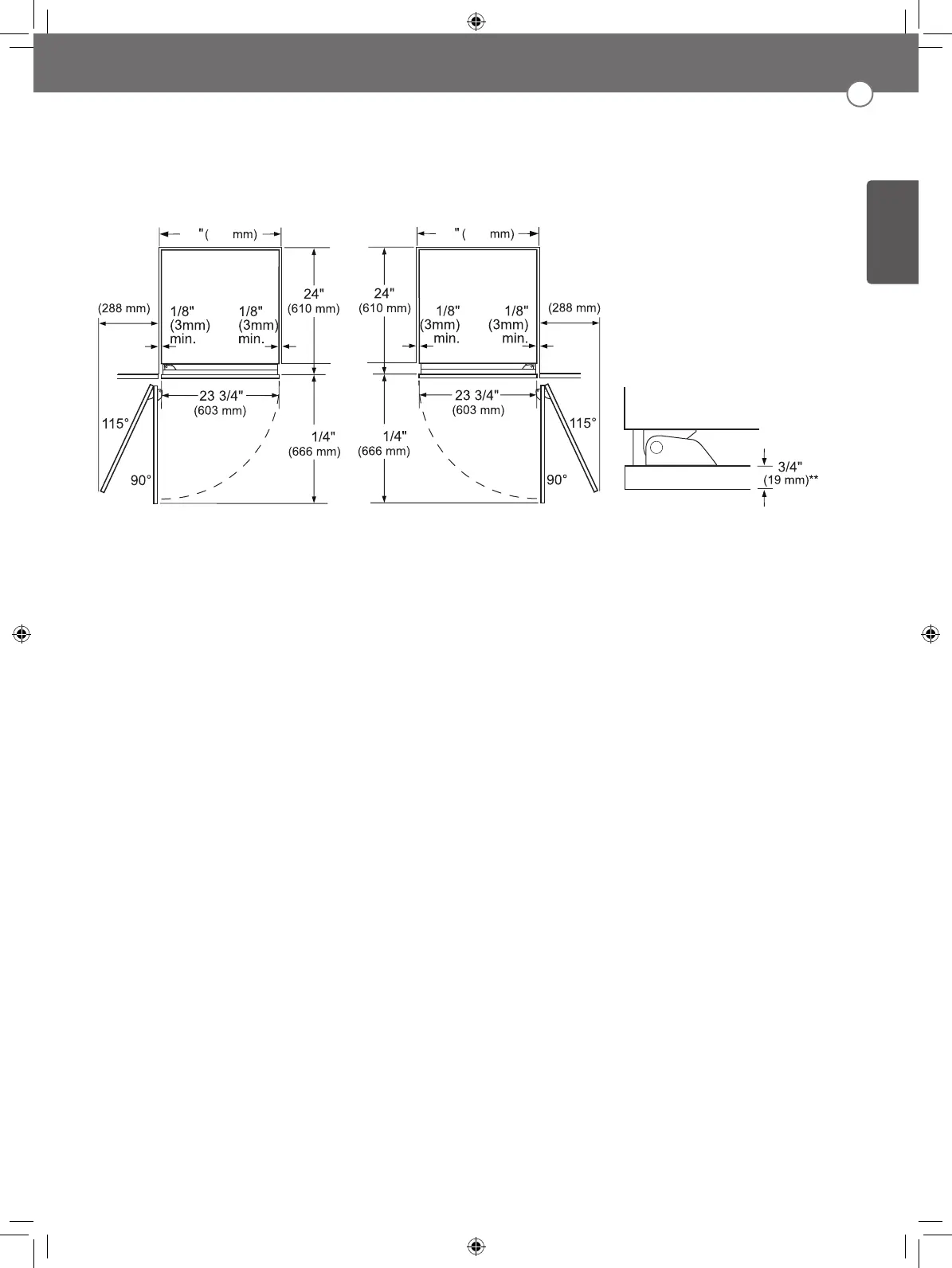
Door Swing Clearances
• The installation must allow for clearances to adjacent walls or cabinets. The appliances are
equipped with 2-position door stops.
• The factory-set 115° door swing can be adjusted to 90° if clearance to adjacent cabinets or walls is
restricted.
Door Handle Clearances
The door handle depth must be added to the dimension where noted to determine the total clearance
required from adjacent cabinets or walls. This clearance will vary depending on the custom handle
used. When using Signature Kitchen Suite handles or the Signature Kitchen Suite stainless steel
door panel kit with handles (optional accessories), the door handle clearance with the door open
115° is 14" (356 mm).
INSTALLATION CLEARANCES
TOP VIEW
26
24
11 3/8"*
11 3/8"*
610
26
24
610
**
Varies depending on the
thickness of the custom
cabinet panel. The door panels in
the optional Signature Kitchen Suite
stainless steel door panel kit are
3/4" (19 mm) thick.
Door handle must be added
to this dimension.
*
SKSCF2401P SKSCR2401P
SKSCW241RP
Bekijk gratis de handleiding van Signature SKSCW241RP, stel vragen en lees de antwoorden op veelvoorkomende problemen, of gebruik onze assistent om sneller informatie in de handleiding te vinden of uitleg te krijgen over specifieke functies.
Productinformatie
| Merk | Signature |
| Model | SKSCW241RP |
| Categorie | Koelkast |
| Taal | Nederlands |
| Grootte | 15733 MB |







