Scotsman HID312X handleiding
Handleiding
Je bekijkt pagina 34 van 55

HID312X, HID525X et HID540X
Manuel d’installation et d’utilisation
Janvier 2025
Page 5
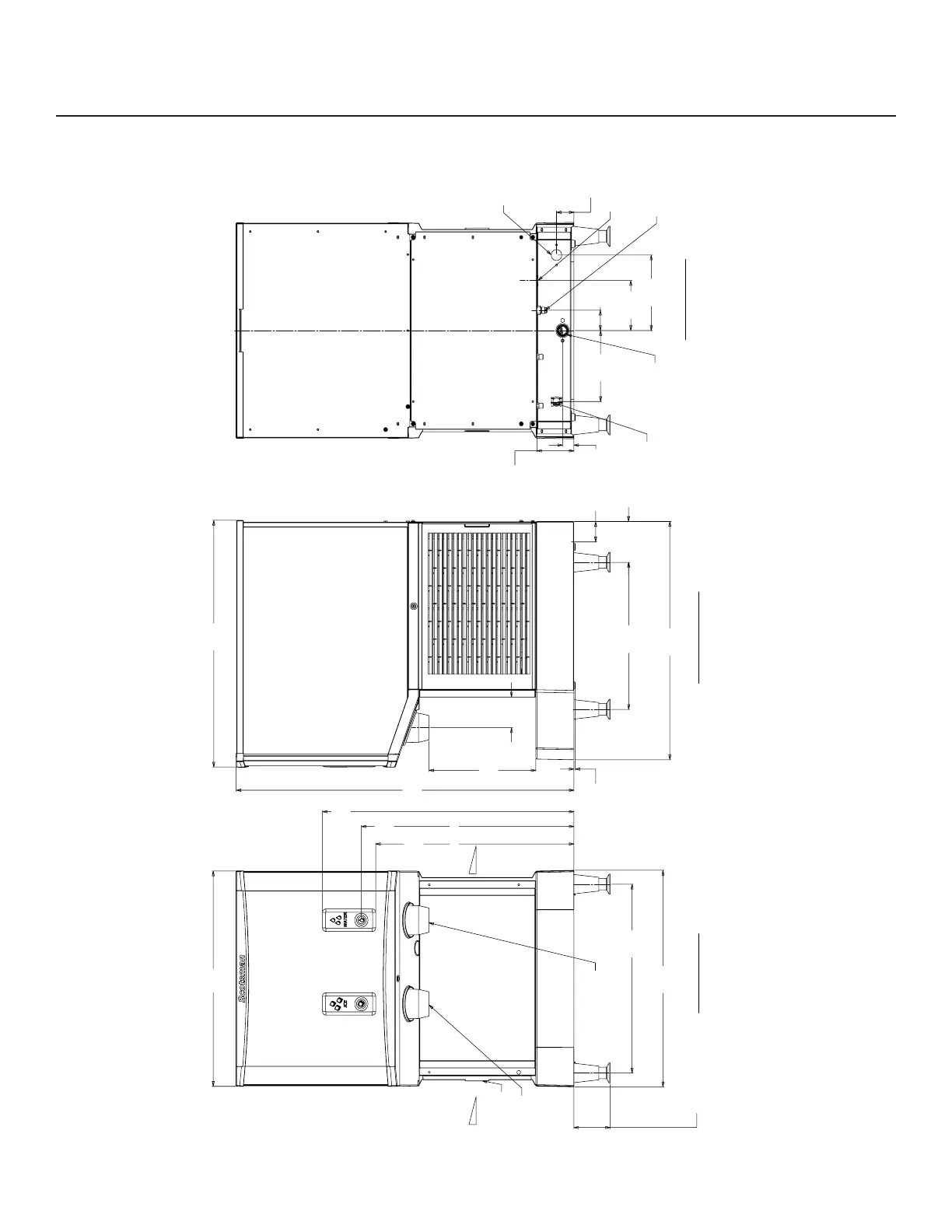
Dessin de l’armoire HID525X
54
[21,25]
54,2
[21,36]
66
[26,00]
55,9
[22,00]
52,1
[20,50]
47,3
[18,62]
FILTRE À AIR
AMOVIBLE
GOULOTTE
POUR LES
GLAÇONS
GOULOTTE
POUR L’EAU
CIRCULATION
D’AIR
61,9
[24,38]
59,7
[23,50]
0,3
[0,12]
88,6
[34,88]
27,9
[11,00]
7,7
[3,02]
36,8
[14,50]
10,2
[4,00]
4,6
[1,80]
3
[1,17]
5,1
[2,00]
18,9
[7,45]
12,5
[4,94]
17,8
[7,00]
CORDON
D’ALIMENTATION
ÉVACUATION
3/4 po FPT
VUE ARRIÈRE
VUE DE DROITE
VUE DE FACE
10,2
[4,00]
OPTION AVEC
PIEDS RÉGLABLES
9,7
[3,80]
CHÂSSIS
POUR LE
RÉSEAU
5,1
[2,01]
CHÂSSIS
POUR LE
RÉSEAU
3/8 po ÉVASEMENT
ARRIVÉE D’EAU
ARRIVÉE D’EAU
DU CONDENSEUR
3/8 po FPT
(REFROIDISSEMENT PAR
EAU UNIQUEMENT)
ÉVACUATION DU
CONDENSEUR
1/2 po FPT
(REFROIDISSEMENT
PAR EAU UNIQUEMENT)
CIRCULATION
D’AIR
Bekijk gratis de handleiding van Scotsman HID312X, stel vragen en lees de antwoorden op veelvoorkomende problemen, of gebruik onze assistent om sneller informatie in de handleiding te vinden of uitleg te krijgen over specifieke functies.
Productinformatie
Merk | Scotsman |
Model | HID312X |
Categorie | Niet gecategoriseerd |
Taal | Nederlands |
Grootte | 8352 MB |