Scotsman HID312X handleiding
Handleiding
Je bekijkt pagina 33 van 55

HID312X, HID525X et HID540X
Manuel d’installation et d’utilisation
Janvier 2025
Page 4
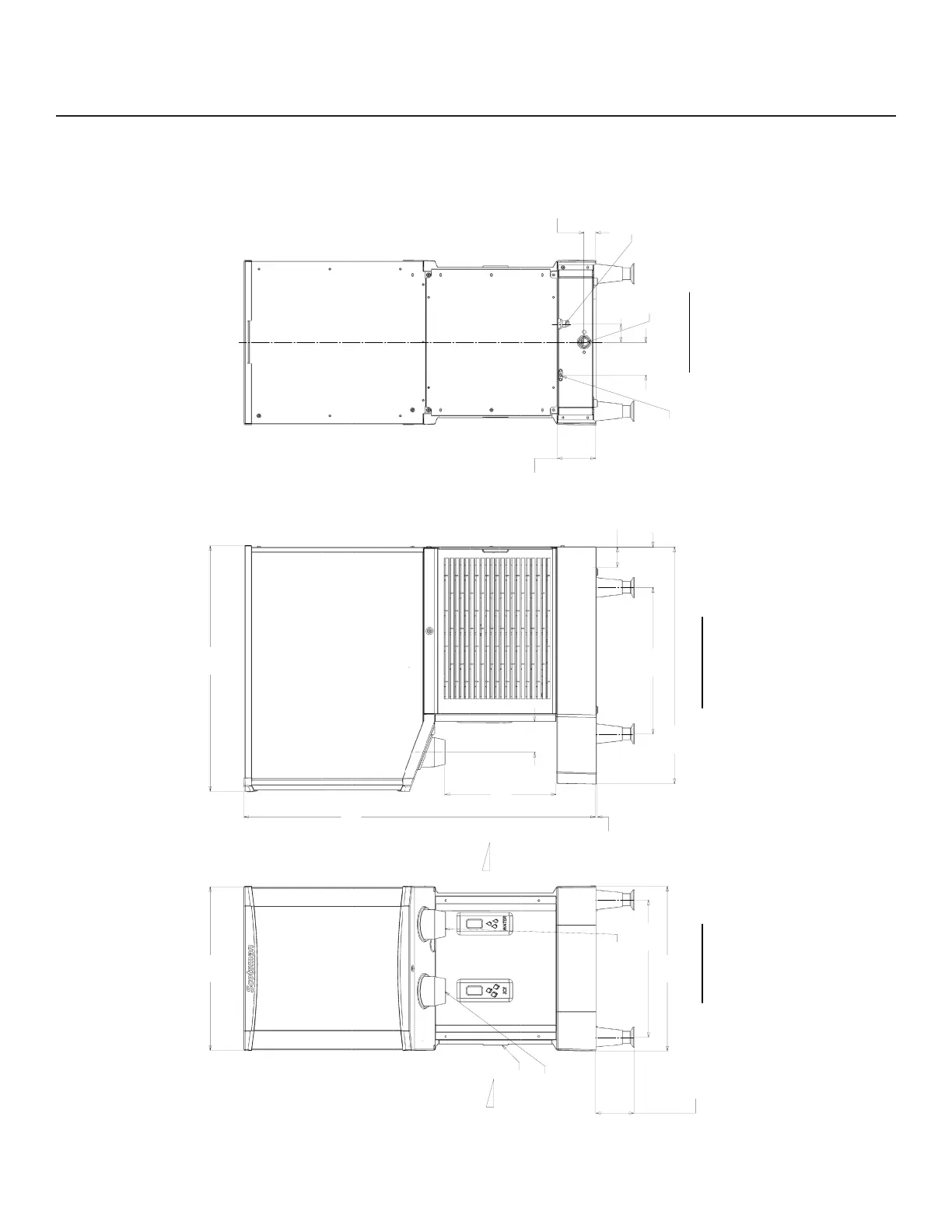
Dessin de l’armoire HID312X
41,5
[16,36]
41,3
[16,25]
34,6
[13,62]
CIRCULATION
D’AIR
GOULOTTE POUR
LES GLAÇONS
GOULOTTE
POUR L’EAU
88,6
[34,88]
0,3
[0,12]
27,9
[11,00]
61,9
[24,38]
59,7
[23,50]
7,7
[3,02]
10,2
[4,00]
36,8
[14,50]
3
[1,17]
4,6
[1,80]
8,3
[3,25]
VUE DE FACE
VUE DE DROITE
VUE ARRIÈRE
CIRCULATION D’AIR
FILTRE À AIR
AMOVIBLE
CORDON
D’ALIMENTATION
ÉVACUATION
3/4 po FPT
10,2
[4,00]
OPTION AVEC
PIEDS RÉGLABLES
9,7
[3,80]
CHÂSSIS POUR
LE RÉSEAU
3/8 po ÉVASEMENT
ARRIVÉE D’EAU
5,1
[2,01]
CHÂSSIS POUR
LE RÉSEAU
Bekijk gratis de handleiding van Scotsman HID312X, stel vragen en lees de antwoorden op veelvoorkomende problemen, of gebruik onze assistent om sneller informatie in de handleiding te vinden of uitleg te krijgen over specifieke functies.
Productinformatie
Merk | Scotsman |
Model | HID312X |
Categorie | Niet gecategoriseerd |
Taal | Nederlands |
Grootte | 8352 MB |