Handleiding
Je bekijkt pagina 31 van 54

31
Nederlands
Installatieprocedure
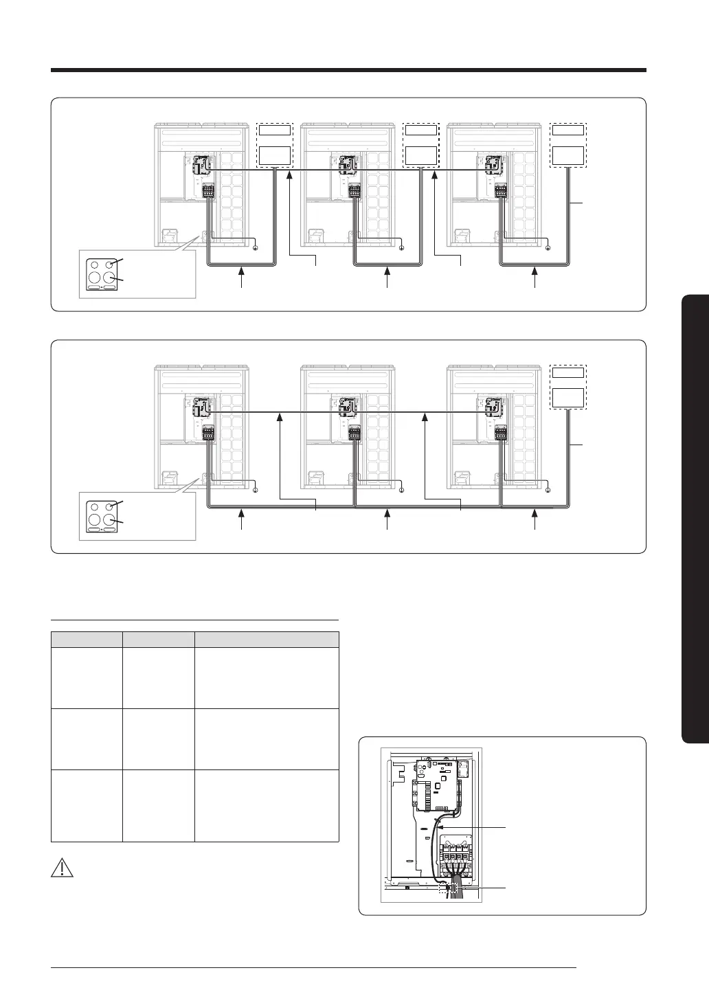
Beschermingsbuis
Hoofdeenheid Subeenheid Subeenheid
Stroomkabel Stroomkabel Stroomkabel
Communicatiekabel
tussen
buiteneenheden
Communicatiekabel
tussen
buiteneenheden
ELCB
MCCB+
ELB
of
ELCB
MCCB+
ELB
of
ELCB
MCCB+
ELB
of
AardkabelAardkabelAardkabel
Communicatiekabel
Stroom- • aardkabel
<Als de modulecombinatie in de tabel van “Combinaties buiteneenheden” wordt weergegeven>
Beschermingsbuis
Hoofdeenheid Subeenheid Subeenheid
Stroomkabel Stroomkabel Stroomkabel
Communicatiekabel
tussen
buiteneenheden
Communicatiekabel
tussen
buiteneenheden
ELCB
MCCB+
ELB
of
AardkabelAardkabelAardkabel
Communicatiekabel
Stroom- • aardkabel
※ Stroomsnoeren van onderdelen van apparatuur voor buitengebruik mogen niet lichter zijn dan flexibele polychloropreen-
mantelsnoeren. (Code IEC:60245 IEC 66 / CENELEC: H07RN-F)
Specificatie beschermingsbuis
Naam Hardingsgraad Condities van toepassing
Flexibele PVC-
geleiding
PVC
Als de beschermingsbuis binnen
wordt geïnstalleerd en niet aan
de buitenlucht wordt blootgesteld
omdat deze in een betonnen
structuur is geïntegreerd.
Klasse 1
flexibele leiding
Verzinkte
staalplaat
Als de beschermingsbuis binnen
wordt geïnstalleerd maar toch
wordt blootgesteld aan de
buitenlucht zodat er kans is op
schade aan de beschermingsbuis.
Klasse 1 PVC
flexibele leiding
met coating
Verzinkte
staalplaat en
zachte PVC-
samenstelling
Als de beschermingsbuis buiten
wordt geïnstalleerd en wordt
blootgesteld aan de buitenlucht
zodat er kans is op schade aan de
beschermingsbuis en er een extra
bescherming tegen water nodig is.
OPGELET
• Wees oplettend bij perforeren van de uitbreekpoort.
• Perforeer een uitbreekpoort door deze met een hamer te
bewerken.
• Breng roestbestendige verf rondom de poort aan nadat u de
uitbreekpoort hebt geperforeerd.
• Als u kabels door de uitbreekpoort moet voeren, moet
ubramen op de poort weghalen en de kabel beschermen
met beschermingstape of buis.
• Opletten bij het installeren van de communicatiekabel.
• Als u de kabel aansluit, dan kan deze inzakken en door
andere onderdelen worden ingedrukt. Daarom moet kabels
met een klem worden vastgemaakt zoals aangegeven in de
illustratie.
Pad voor het arrangeren van de
externe communicatiekabel.
De locatie voor het
bevestigen van de externe
communicatiekabel
Elektrische bedrading
Bekijk gratis de handleiding van Samsung AM120AXVDGH, stel vragen en lees de antwoorden op veelvoorkomende problemen, of gebruik onze assistent om sneller informatie in de handleiding te vinden of uitleg te krijgen over specifieke functies.
Productinformatie
Merk | Samsung |
Model | AM120AXVDGH |
Categorie | Airco |
Taal | Nederlands |
Grootte | 9368 MB |