Handleiding
Je bekijkt pagina 23 van 44

ENGLISH
23
English
102
700
650
1200
500
1300
534
1000
1236
(Suspension position)
(Suspension position)
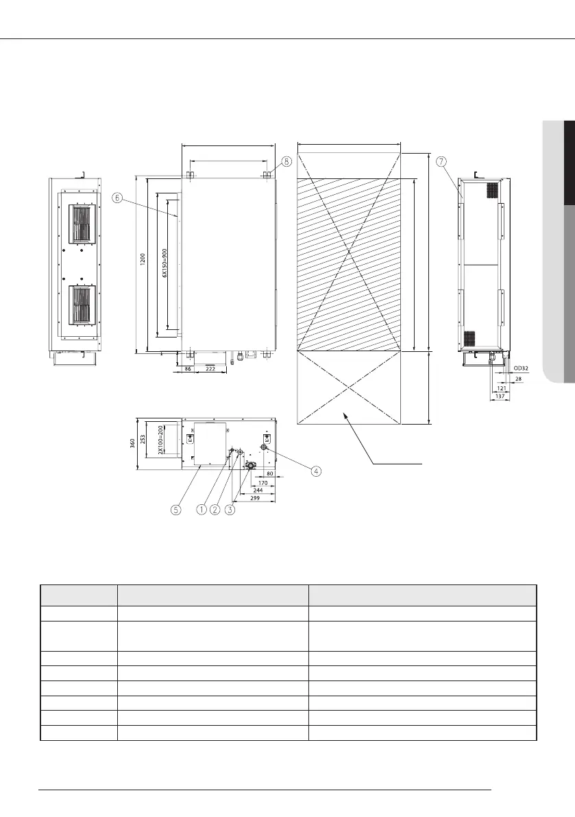
(Air outlet duct flange)
Inspection hole
Discharge side Suction side
Unit:mm
AC120NNMSEC / AC140NNMSEC / AC160NNMSEC
No. Name Description
1 Liquid pipe connection ø9.52(3/8")
2 Gas pipe connection
∗∗120/140∗∗ : ø15.88(5/8");
∗∗160∗∗ : ø19.05(3/4")
3 Drain pipe connection OD25 ID20(without drain pump)
4 Drain pipe connection Using drain pump (Optional)
5 Power supply connection
6 Air discharge flange
7 Air filter
8 Hook M8~M10
Bekijk gratis de handleiding van Samsung AC120NNMSEC, stel vragen en lees de antwoorden op veelvoorkomende problemen, of gebruik onze assistent om sneller informatie in de handleiding te vinden of uitleg te krijgen over specifieke functies.
Productinformatie
Merk | Samsung |
Model | AC120NNMSEC |
Categorie | Airco |
Taal | Nederlands |
Grootte | 5301 MB |