RTS WKP-1 handleiding
Handleiding
Je bekijkt pagina 16 van 26

16 Installation WKP-1
Bosch Security Systems, Inc.
User Manual
F.01U.193.272
Rev. 07
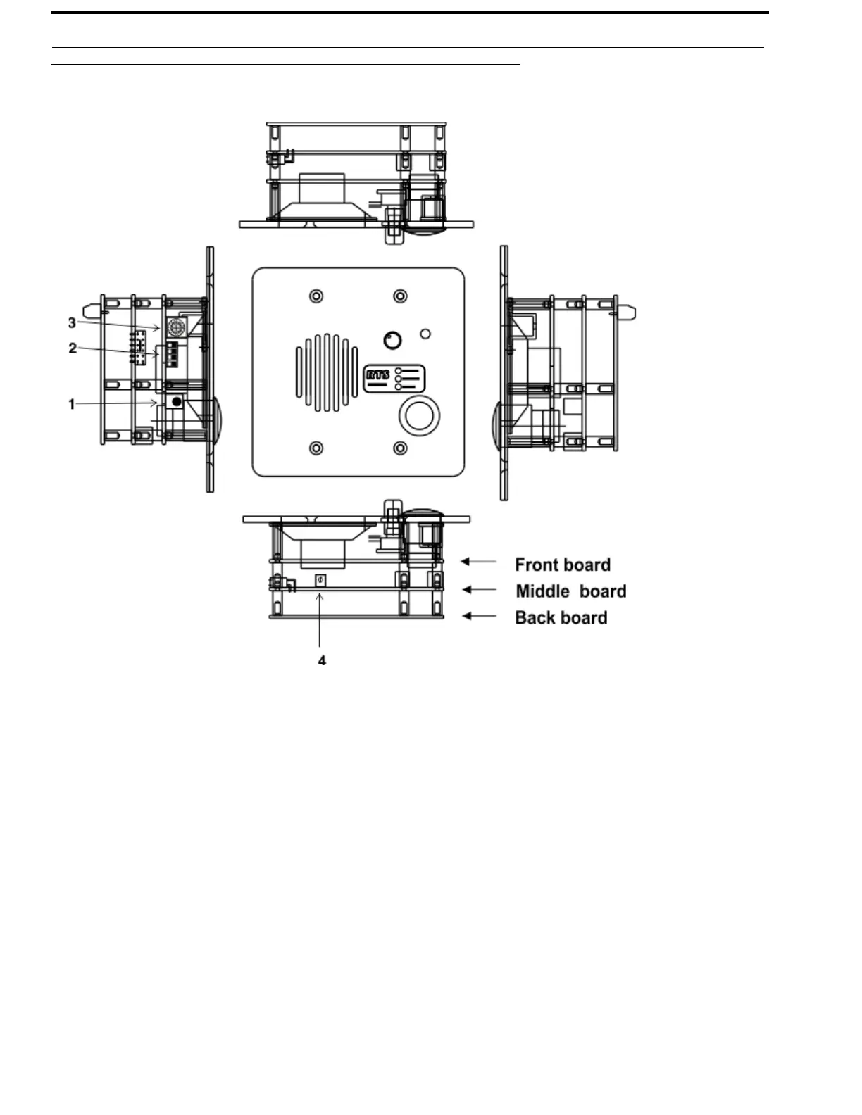
The Three (3) WKP-1 Boards
FIGURE 6. WKP-1 3-dimensional view of boards.
Contents
Front Board
1. Reset Button - The reset button provides a hardware reset to the processor.
2. Dip Switches - Set the dip switches to individual preferences (see “Dip Switches” on
page 12).
3. Rotary Address Switch - The rotary address switch assigns a port address in which to communicate with
the Matrix (see “Address Switch” on page 13).
Middle Board
4. 4-Internal Volume Setting
Pot (213) -
The internal volume pot is located on the middle board. It controls the lower
limit of the audio to the speaker.
Back Board
Connections - RJ-12, CAT-5 and local power (see Figure 5 on page 15).
Bekijk gratis de handleiding van RTS WKP-1, stel vragen en lees de antwoorden op veelvoorkomende problemen, of gebruik onze assistent om sneller informatie in de handleiding te vinden of uitleg te krijgen over specifieke functies.
Productinformatie
Merk | RTS |
Model | WKP-1 |
Categorie | Niet gecategoriseerd |
Taal | Nederlands |
Grootte | 4758 MB |