Handleiding
Je bekijkt pagina 5 van 16

3
Installation Instructions
• Kitchen furniture and cabinetry that is in direct contact with the appliance must be heat resistant to a
minimum temperature of 100°C.
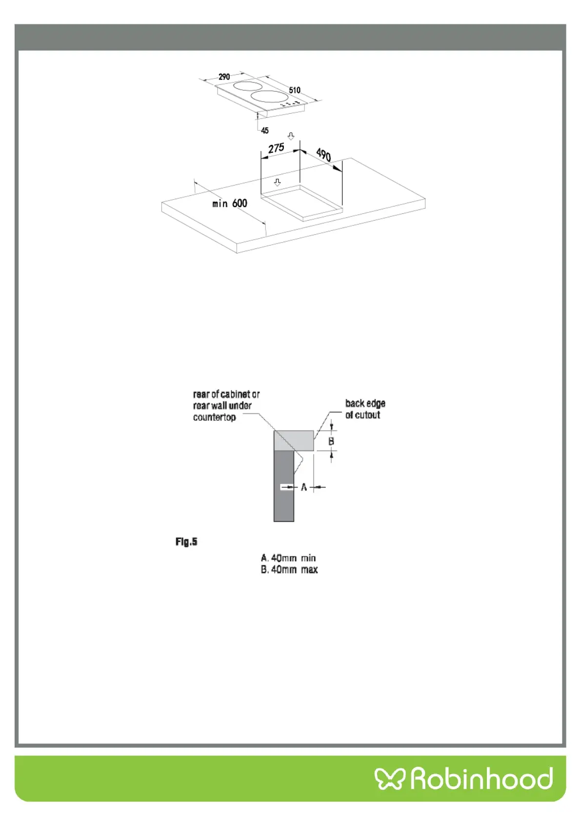
• The appliance can be installed on a work surface with a thickness of between 30 and 40 mm and near to
walls which are higher than the work surface, maintaining a minimum distance of 100 mm.
• Carry out all cutting of the unit and work surface then carefully remove shavings or sawdust before inserting
the appliance.
• To ensure correct ventilation of the hob please comply with the dimensions shows in the figures.
• Ensure that the surface is level and square and that nothing interferes with the space required for
installation.
• Prepare the cut as indicated (see installation dimensions).
Bekijk gratis de handleiding van Robinhood HEF302TCOM, stel vragen en lees de antwoorden op veelvoorkomende problemen, of gebruik onze assistent om sneller informatie in de handleiding te vinden of uitleg te krijgen over specifieke functies.
Productinformatie
Merk | Robinhood |
Model | HEF302TCOM |
Categorie | Fornuis |
Taal | Nederlands |
Grootte | 2606 MB |